Version: 8.25.1Navigation überspringen
CBRE GmbH
17 €
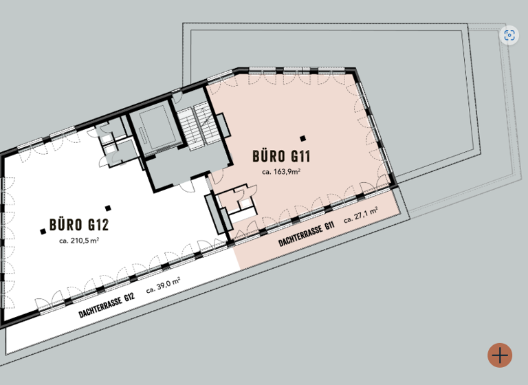
374,4 m² Bürofläche  •  teilbar ab 148,3 m²

Bürofläche zur Miete • provisionsfrei
17 €
/m²
374,4 m² Bürofläche  •  teilbar ab 148,3 m²

Kreative Neubau-Lofts - Ihr neuer Workspace! Provisionsfrei

Merkmale

  • Bezug: 4 Monate nach Vert
  • Erdgeschoss
  • Barrierefrei
  • voll klimatisiert
BELÜFTUNG/KLIMATISIERUNG
mechanische Be-/Entlüftung, öffenbare Fenster

SONNENSCHUTZ
außenliegender Sonnenschutz

EDV-VERKABELUNG
Brüstungskabelkanäle

BODENBELAG
nach Mieterwunsch, Teppichboden/-fliesen

WANDSYSTEME/TÜREN
Gipskartonwände

DECKE
unverkleidete Decke

BELEUCHTUNG
nach Mieterwunsch

AUFZUG
Lastenaufzug, Personenaufzug

SICHERHEIT
Brandmeldeanlage, Gegensprechanlage, Zugang via Transpondersystem

ANLIEFERUNG
barrierefreier Zugang

BLICK/BALKONE
Dachterrasse(n), Terrasse(n)

GEBÄUDESERVICES
nicht vorhanden

Grundrisse

Grundrisse
1 / 1

Realisiere Dein Projekt

Bausubstanz und Energie

Möchtest du Details zum Energieverbrauch?info_energy_calculation-icon
  • Baujahr2025
  • Zustand der ImmobilieGepflegt
MediumRectangleTop

Mietkosten

Monatliche Miete
17 €/m²
Nebenkosten
3,60 €
Provision für Mieter
provisionsfrei
Kaution
keine Angabe

Lage

address-icon
RothenburgsortHamburg (20539)
Der Anbieter hat die genaue Adresse nicht freigegeben
Angrenzend an Hammerbrook befindet sich das erweiterte Einzugsgebiet der City Süd und profitiert dabei von der gewachsenen Infrastruktur dieses Stadtteils mit zahlreichen Restaurants. Es besteht über die B5 eine ausgezeichnete Anbindung an die naheliegenden Bundesautobahnen. Diverse U-/S-Bahn Stationen und Busverbindungen zum Knotenpunkt "Berliner Tor" sorgen für eine gute ÖPNV Anbindung.

Weitere Informationen

Sonstiges Rodenworks, 4. OG: Diese Fläche verfügt über eine Terrasse von 66,00 m², welche bereits in der Fläche inkludiert ist.

CBRE Immobiliensuche Büro - https://www.cbre.de/immobiliensuche/buero

AGB - https://www.cbre.de/agb Stichworte Gesamtfläche: 3.025,40 m², 6 Etagen

Weitere Services

Lust auf eine Besichtigung?
Eine Frage zur Immobilie?
Mit einer persönlichen Nachricht hast du bessere Chancen auf eine Antwort.
Mit der Nutzung der oben angegebenen Telefonnummer oder durch Klicken auf „Kontaktieren“ akzeptierst Du die Allgemeinen Nutzungsbedingungen, denen Du jederzeit widersprechen kannst. Weitere Informationen zum Datenschutz

Über den Anbieter

Valentinskamp 70, 20355 Hamburg
Frau Kathrin Ratsch
Frau Kathrin RatschDein Kontakt
Online-ID: 25Z481MTK4F9
Referenznummer: 124238@13@0@219407
CBRE GmbH
title
CBRE GmbH
Mit einer persönlichen Nachricht hast du bessere Chancen auf eine Antwort.
Mit der Nutzung der oben angegebenen Telefonnummer oder durch Klicken auf „Kontaktieren“ akzeptierst Du die Allgemeinen Nutzungsbedingungen, denen Du jederzeit widersprechen kannst. Weitere Informationen zum Datenschutz
MediumRectangleTop
MediumRectangleBottom
MediumRectangleTop
Wie zufrieden bist du mit dieser Seite (nicht mit der Immobilie selbst)?