Ein modernes Haus im Bau steht in einem ruhigen Dorf unweit von Labin zum Verkauf. Die Lage bietet Privatsphäre und Ruhe abseits des Stadttrubels und liegt dennoch nah genug am Meer, Rabac und der Altstadt von Labin mit ihren zahlreichen Annehmlichkeiten.
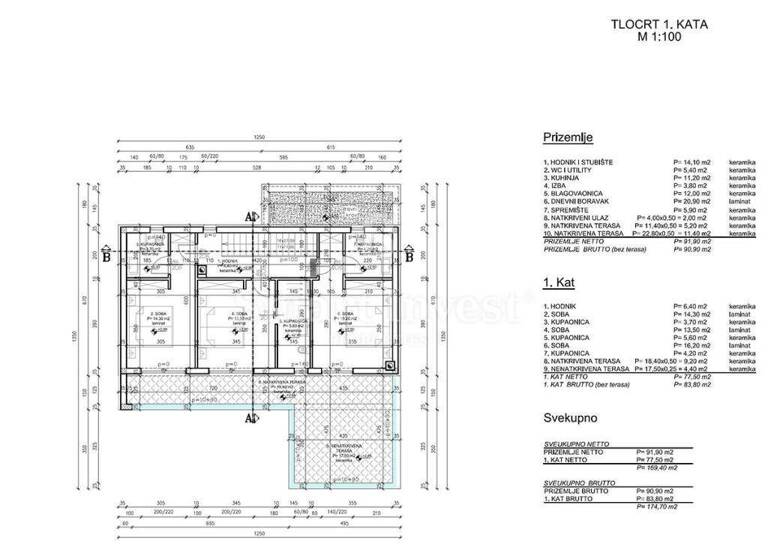
Das 175 m große Haus ist als Wohneinheit auf zwei Etagen konzipiert und bietet Eleganz, Funktionalität und Großzügigkeit.
Erdgeschoss: Wohnzimmer mit offener Küche und Esszimmer mit Zugang zu einer überdachten Terrasse mit Sommerküche, Gäste-WC und Abstellraum.
Obergeschoss: Eingangshalle, drei Schlafzimmer mit eigenen Bädern und eine teilweise überdachte Terrasse mit Blick auf die Umgebung.
Der Preis bezieht sich auf den Rohbau (bis zur Rohbauphase), der Vorarbeiten, Fundamente, Außen- und Trennwände, Dach- und Spenglerarbeiten sowie die Montage von Außenschreinereiarbeiten umfasst. Ausbauarbeiten, Landschaftsgestaltung und der Bau eines Swimmingpools sind nicht im Preis enthalten.
Dank der wunderschönen Lage und der durchdachten Innen- und Außenaufteilung ist diese Immobilie ideal für Familien oder als Investition in die touristische Vermietung.
Im Eigentum einer juristischen Person. Keine Belastungen.
Für weitere Informationen und einen Besichtigungstermin rufen Sie bitte an: +385/99/320-0011