

Wohnung zur Miete830 €3,5 Zimmer • 71 m² • Geschoss 1/2 • frei ab 01.05.2026
830 €
3,5 Zimmer • 71 m² • Geschoss 1/2 • frei ab 01.05.2026
Schöne helle 3,5-Zimmer-Wohnung in Ebersbach/Sulpach (1.OG)
Merkmale
- frei ab 01.05.2026
- Dachgeschoss, 1. Geschoss/2 Geschossen
- Haustiere nach Absprache
- Einbauküche
- Keller
- Außen-Stellplatz
- Balkon (gesamt 1 m²)
- Nicht möbliert
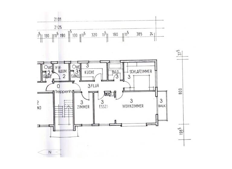
Grundrisse
Grundrisse
1 / 1
Realisiere Dein Projekt
Bausubstanz und Energie
Energieausweis
- Baujahr1956
- Zustand der ImmobilieGepflegt
- EnergieträgerÖl
Mietkosten
Warmmiete
1.010 €
Kaltmiete
11,69 €/m²
830 €
Nebenkosten
180 €
Heizkosten
in Nebenkosten enthalten
Miete pro Stellplatz
in Warmmiete enthalten
Kaution
2490 €
Lage

Sulpach, Ebersbach an der Fils (73061)
Der Anbieter hat die genaue Adresse nicht freigegeben
Weitere Services
Lust auf eine Besichtigung?
Eine Frage zur Immobilie?
Über den Eigentümer
Privater Anbieter
Keine Telefonnummer hinterlegt
Keine Telefonnummer hinterlegt
Online-ID: 261FU7BY5EVA
Privater Anbieter
Wie zufrieden bist du mit dieser Seite (nicht mit der Immobilie selbst)?

