

Bürofläche zur Miete25 €/m²1 Zimmer • 11 m² Bürofläche
25 €
/m²
1 Zimmer • 11 m² Bürofläche
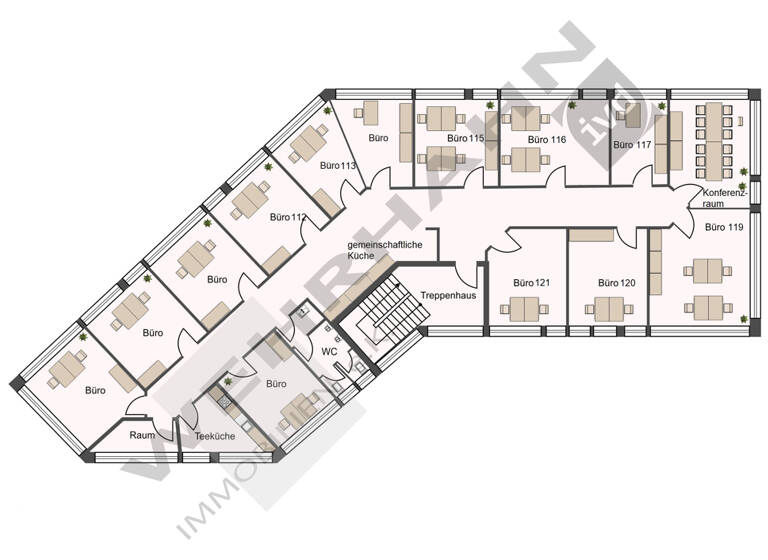
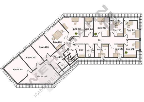
Kontorhaus Braak: 20 ansprechende Einzelbüros in verschiedenen Größen inklusive "Full-Service"
Merkmale
- Bezug: nach Vereinbarung
- Erdgeschoss
- EinbaukĂĽche, offene KĂĽche
- Kein Keller
- Bodenbelag: Kunststoff
Grundrisse
Grundrisse
1 / 2
Realisiere Dein Projekt
Bausubstanz und Energie
Energieausweis
Endenergieverbrauch (Wärme)
Endenergieverbrauch (Strom)
- Baujahr1999
- Zustand der ImmobilieMassivhaus, Gepflegt
Mietkosten
Warmmiete
405 €
Nettomiete zzgl. Nebenkosten
25 €/m²
275 €
Heizkosten
in Warmmiete enthalten
Provision fĂĽr Mieter
2 Monatsmieten zzgl. 19 % MwSt. (netto mind. 1.000,-- €) inkl. MwSt.
Kaution
810 €
Lage

Braaker Grund 7, Braak (22145)
Weitere Informationen
Weitere Services
Lust auf eine Besichtigung?
Eine Frage zur Immobilie?
Ăśber den Anbieter
Wehrhahn Immobilien e.K.MaklerbĂĽro
RathausstraĂźe 1 B, 22941 Bargteheide
Partnerschaft

Herr Jan-Vico StreeseDein Kontakt
Weitere Unterlagen
Online-ID: 2kj5m5s
Referenznummer: 6269


Wehrhahn Immobilien e.K.
Bewertung: 4,4 von 5 Sternen
Wie zufrieden bist du mit dieser Seite (nicht mit der Immobilie selbst)?

