

CBRE GmbH
Frau Kathrin Ratsch
040 ···
Nr. anzeigenPreise & Kosten
Provision für Mieter
provisionsfrei
Warum sehe ich diese Anzeige? – Du siehst diese Anzeige basierend auf Ihrer Navigation auf unserer Website und den Suchkriterien, die du verwendet hast.
Lage
Das Objekt ist im Hamburger Stadtteil Harburg gelegen. Der Standort bietet Hafenambiente gepaart mit moderner Architektur. Der CHANNEL ist ein aufstrebender Büroflächenstandort, an dem sich bereits namhafte Unternehmen niedergelassen haben.
Büro-/Praxisfläche
Kategorie
Bürofläche
Baujahr
2002
Bezug
kurzfristig
Geschoss
Erdgeschoss
Energie & Heizung
Warum sehe ich diese Anzeige? – Du siehst diese Anzeige basierend auf Ihrer Navigation auf unserer Website und den Suchkriterien, die du verwendet hast.
Wärme
Strom
Energieausweistyp
Bedarfsausweis
Gebäudetyp
Nicht-Wohngebäude
Wesentliche Energieträger
GAS
Gültigkeit
seit 26.01.2021
Endenergiebedarf (Wärme)
105,00 kWh/(m²·a)
Endenergiebedarf (Strom)
16,00 kWh/(m²·a)
Details
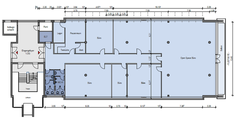
Objektbeschreibung
Die Büroflächen befinden sich in dem im Jahre 2000 komplett sanierten ehemaligen Speichergebäude im Herzen des sog. CHANNEL. Die solide Gebäudesubstanz aus Backstein bietet neben dem architektonischen Anspruch den Vorteil, nahezu immer sehr gute klimatische Bedingungen in den Büroräumen zu erreichen. Der Grundriss des...
Ausstattung
BELÜFTUNG/KLIMATISIERUNG
öffenbare Fenster
SONNENSCHUTZ
innenliegender Blendschutz
EDV-VERKABELUNG
Brüstungskabelkanäle, CAT-7-Verkabelung
BODENBELAG
PVC- Boden, Teppichboden/-fliesen
WANDSYSTEME/TÜREN
Gipskartonwände, teilweise...
Weitere Informationen
Sonstiges
Putzfassade
Stichworte
Gesamtfläche: 10.600,00 m²
Sonstiges: EDV-Verkabelung
Anbieter der Immobilie
CBRE GmbH
Valentinskamp 70, 20355 Hamburg

Online-ID: 2msy45k
Referenznummer: 17077@13@0@184745
Finde Angebote wie dieses
Hier geht es zu unserem Impressum, den Allgemeinen Geschäftsbedingungen, den Hinweisen zum Datenschutz und nutzungsbasierter Online-Werbung.