Modernes Apartment mit Wintergarten in Kitzingen
Willkommen in der Alemannenstraße in 97318 Kitzingen!
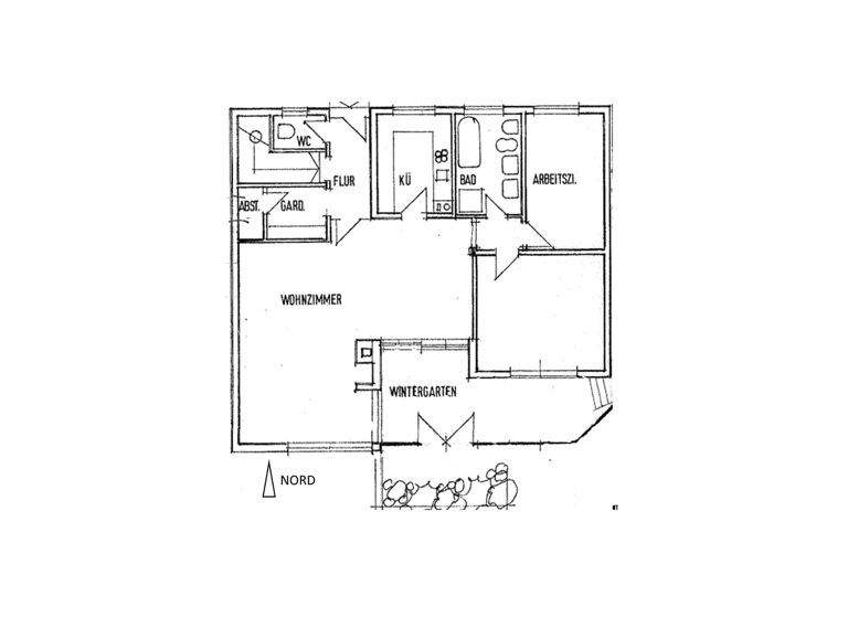
Diese großzügige Wohnung mit großzügigem Wohnbereich bietet Ihnen auf 124m² viel Platz zum Wohlfühlen. Mit drei hellen und freundlichen Zimmern sowie einem modernen Badezimmer ist dieser Wohnraum ideal für Paare oder kleine Familien. Genießen Sie die frische Luft auf dem eigenen Balkon oder in Ihrem kleinen Garten – perfekt für entspannende Stunden im Freien.
Die hervorragende Verkehrsanbindung ist ein weiteres Highlight dieser Lage. Die Bushaltestellen Kitzingen Alemannenstr. und Keltenstraße sind nur wenige Meter entfernt. Für den täglichen Bedarf finden Sie ALDI Süd, REWE und einen Müller Drogeriemarkt quasi um die Ecke in Laufweite.
+++ Objektbeschreibung +++
Zur befristeten Vermietung steht eine lichtdurchflutete Wohnung mit einer Wohnfläche von 124 m² in der Alemannenstraße in Kitzingen. Die Wohnung befindet sich in unmittelbarer Nähe zum Kreiskrankenhaus und besticht durch eine ausgezeichnete Wohnqualität in einer sehr ruhigen Lage. Das herausragende Merkmal ist der großzügige Wohn- und Essbereich, der durch einen beheizten, ganzjährig nutzbaren Wintergarten erweitert wird.
Alle Zimmer wurden ganz aktuell umfassend saniert, das Bad mit Bidet hat eine bodengleich geflieste Dusche erhalten. Darüber hinaus steht im Untergeschoss ein sanierter Heizraum zur Nutzung als Keller- und/oder Hauswirtschaftsraum mit Wasseranschluss und Trocknerabluft zur Verfügung.
Der vom Wintergarten aus begehbare Garten kann mitbenutzt werden.
+++ Ausstattung +++
• 3 Zimmer Wohnung: 124,00 m²
• Wohn- Esszimmer: ca. 47,00 m²
• Wintergarten: ca. 20,42 m²
• Schlafzimmer: ca. 17,36 m²
• Ankleide-/Arbeitszimmer: ca. 12,76 m²
• Einbauküche: ca. 8,88 m²
• Badezimmer: ca. 7,85 m²
• Garderobe: ca. 3,69 m²
• Gäste-WC: ca. 2,09 m²
• Abstellraum: ca. 1,66 m²
• Keller-, Waschküche
• Energieeffiziente Gas-Heizung
+++ Mietbedingungen +++
• Befristete Vermietung für max. 4 Jahre
• Mietpreis: 1.200 € monatlich zzgl. Nebenkosten
• Garage mit Stellplatz (Option) zusätzl. 80,00 €/mon.
• Gartenmitbenutzung möglich
• Haustiere nach Absprache
• Kaution: 3 Monatsmieten
• Verfügbar ab sofort
Kontaktieren Sie uns gerne für weitere Informationen oder um einen Besichtigungstermin zu vereinbaren. Ihr neues Zuhause freut sich schon auf Sie!