Version: 8.24.0Navigation überspringen
699.500 €
7 Zimmer  •  156 m²  •  309 m² Grundstück
Immowelt logo

Einfamilienhaus zum Kauf
699500 €
4.484 €/m²
7 Zimmer  •  156 m²  •  309 m² Grundstück

Sofort beziehbares EFH mit ELW in Friedrichshafen in Hafennähe

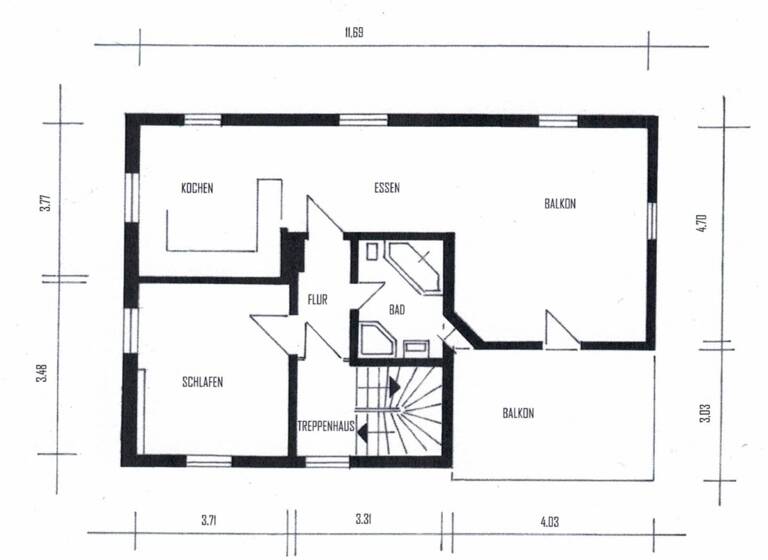
Dieses großzügige Einfamilienhaus in Friedrichshafen vereint modernes Wohnen mit gehobener Ausstattung und bietet eine einladende Wohlfühloase für Familien. Auf drei Etagen erstreckt sich eine Wohnfläche von 156 Quadratmetern, die ausreichend Platz für Entfaltung bietet. Mit insgesamt sieben Zimmern, darunter sechs Schlafzimmer, ist dieses Haus ein wahres Raumwunder. Die zwei stilvollen Badezimmer sind jeweils mit einer Dusche, einer Wanne und einem Fenster ausgestattet, sodass das Baden zu einem wahren Genuss wird. Durch das Fenster fällt herrliches Tageslicht herein, was den Aufenthalt in den hellen Räumen besonders angenehm gestaltet.

Die Aufteilung ist wie folgt :

EG : 3 Zimmer mit Einbauküche und Bad
1 OG: 2 Zimmer mit Einbauküche und Bad
2 DG : 2 Zimmer mit einer 1 Bühne

Merkmale

  • 309 m² Grundstück
  • Einbauküche
  • Keller
  • Carport, Garage
  • Balkon
  • Terrasse
  • Badezimmer: Badewanne, Bad mit Dusche, Bad mit Fenster
  • Bodenbelag: Fliesen, Parkett

Grundrisse

Grundrisse
1 / 4

Realisiere Dein Projekt

Bausubstanz und Energie

Energieausweis

G
  • Baujahr1928
  • Zustand der Immobilierenoviert / saniert
  • HeizungsartZentralheizung
  • EnergieträgerGas
Immowelt logo

Preisdetails

Kaufpreis
699500 €
4.483,97 €/m²
Provision für Käufer
1,785 inkl Mwst aus dem notariellem Kaufpreis
1,785 aus dem notariellem Kaufpreis
Weitere Preisinformationen
1 Carportplatz
1 Garagenstellplatz
Geschätzte Gesamtkosten
773.438 €1
Kaufpreis
699.500 €
Notarkosten (1,5%)
10.493 €
Grunderwerbsteuer (5%)
34.975 €
Provision für Käufer (3,57%)
24.972 €
Grundbucheintrag (0,5%)
3.498 €
1Der angezeigte Wert ist eine automatisch berechnete Schätzung von immowelt.
2Bei den Angaben handelt es sich um ortsübliche Werte. Individuelle Kosten können abweichen.

Lage

address-icon
Friedrichshafen (88046)
Der Anbieter hat die genaue Adresse nicht freigegeben
Friedrichshafen bietet eine exzellente Lage, eingebettet in eine lebendige Wohngegend mit umfassender Infrastruktur. In unmittelbarer Nähe befinden sich Apotheken, Schulen, Kindergärten sowie diverse Einkaufsmöglichkeiten wie Einkaufszentren. Die Anbindung an öffentliche Verkehrsmittel ist hervorragend - sowohl Bus als auch Bahnhof sind schnell erreichbar. Für Freizeitaktivitäten bieten sich zahlreiche Möglichkeiten: Ob ein entspannter Spaziergang im Wald oder ein Besuch im Kino oder Fitnessstudio - hier kommt jeder auf seine Kosten. Der nahegelegene Hafen lädt zu Bootsfahrten ein und eröffnet fantastische Ausblicke über den Bodensee.

Weitere Informationen

Stichworte Nutzfläche: 60,00 m², Anzahl der Schlafzimmer: 6, Anzahl der Badezimmer: 2, Anzahl Balkone: 1, Anzahl Terrassen: 2, 3 Etagen, Lage im Wohngebiet, modernisiert: 2018 Sonstiges/Wohnen: Dachboden

Weitere Services

Lust auf eine Besichtigung?
Eine Frage zur Immobilie?
Nachricht hinzufügen
Mit der Nutzung der oben angegebenen Telefonnummer oder durch Klicken auf „Kontaktieren“ akzeptierst Du die Allgemeinen Nutzungsbedingungen, denen Du jederzeit widersprechen kannst. Weitere Informationen zum Datenschutz

Über den Anbieter

Saulgauer Str. 31, 88400 Biberach
Hanspeter SchmidingerDein Kontakt
Online-ID: 2l7lz5w
Referenznummer: 04912
Schmidinger Immobilien
Schmidinger Immobilien
Bewertung: 3,8 von 5 Sternen
Nachricht hinzufügen
Mit der Nutzung der oben angegebenen Telefonnummer oder durch Klicken auf „Kontaktieren“ akzeptierst Du die Allgemeinen Nutzungsbedingungen, denen Du jederzeit widersprechen kannst. Weitere Informationen zum Datenschutz
Wie zufrieden bist du mit dieser Seite (nicht mit der Immobilie selbst)?