

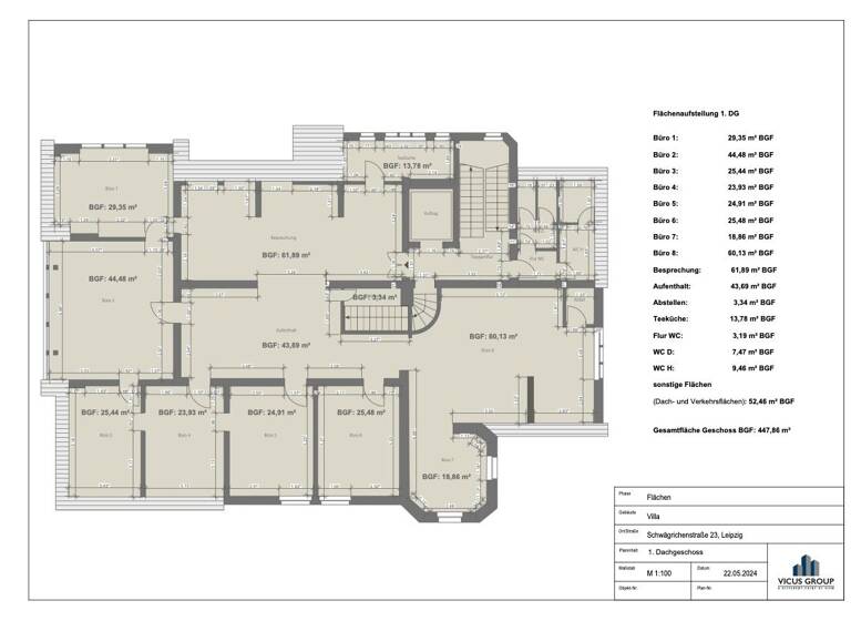
Büro zur Miete • provisionsfrei5.610 €8 Zimmer • 340 m² Bürofläche
5.610 €
8 Zimmer • 340 m² Bürofläche
Exklusive Büro-Villa im Leipziger Musikviertel – 340 m² Arbeiten in Ruhe, Stil & Bestlage
Grundrisse
Grundrisse
1 / 1
Realisiere Dein Projekt
Bausubstanz und Energie
Möchtest du Details zum Energieverbrauch?

- Baujahr1888
- Zustand der ImmobilieGepflegt
Mietkosten
Warmmiete
8.860 €
Nettomiete
5.610 €
Nebenkosten
3.250 €
Provision für Mieter
provisionsfrei
Kaution
3 NKM
Lage

Schwägrichenstraße 23, Zentrum-Süd, Leipzig (04107)
Weitere Services
Lust auf eine Besichtigung?
Eine Frage zur Immobilie?
Über den Eigentümer
Privater Anbieter
Online-ID: 265M9E27GAGC
Privater Anbieter
Wie zufrieden bist du mit dieser Seite (nicht mit der Immobilie selbst)?

