ENGLISH VERSION BELOW
Dieses moderne Endreihenhaus im beliebten Quartier Fischbeker Heidbrook in Hamburg-Neugraben überzeugt durch eine durchdachte Raumaufteilung, energieeffiziente Bauweise und familienfreundliches Wohnen im Grünen.
Das Haus wurde im KfW-40-Effizienzstandard errichtet und bietet dank Fernwärme und Fußbodenheizung hohen Wohnkomfort bei niedrigen Energiekosten. Große Fensterflächen sorgen für helle Räume und eine angenehme Wohnatmosphäre.
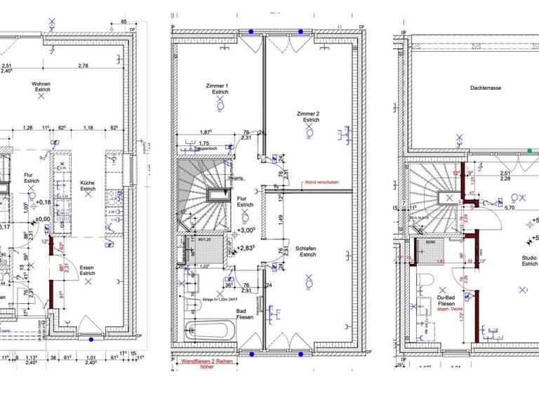
Im Erdgeschoss befindet sich der offene Wohn- und Essbereich mit Zugang zur Terrasse und zum Garten. In den oberen Etagen stehen mehrere flexibel nutzbare Zimmer – ideal als Schlaf-, Kinder- oder Arbeitszimmer – zur Verfügung. Ein besonderes Highlight ist die großzügige Dachterrasse, die zusätzlichen Freiraum im Alltag bietet.
Zum Haus gehören außerdem ein eigener Gartenbereich inkl. Biohort Gartenhütte sowie 2 ebenerdige PKW-Stellplätze inkl. Ladestation.
Die Lage im Quartier Fischbeker Heidbrook verbindet ruhiges Wohnen mit guter Infrastruktur und direkter Nähe zur Natur, insbesondere zur Fischbeker Heide.
Highlights auf einen Blick
• 5 Zimmer Endreihenhaus in ruhiger Wohnlage
• Mehrere Schlafzimmer / Arbeitszimmer
• Gäste-WC und 2 moderne Badezimmer
• 2 eigene PKW-Stellplätze + Ladestation
• Energieeffizienter KfW-40-Standard
• Fernwärme & Fußbodenheizung
• Heller Wohn- und Essbereich
• Terrasse mit Garten
• Biohort Gartenhaus
• Großzügige Dachterrasse
• Familienfreundliches Wohnquartier
• Sehr gute Anbindung an den Nahverkehr
• Kita, Ärzte & Nahversorgung in Laufweite
---
This modern end-terrace house in the popular Fischbeker Heidbrook district of Hamburg-Neugraben impresses with its well-designed layout, energy-efficient construction and family-friendly living surrounded by nature.
The house was built to the KfW-40 energy efficiency standard and offers high living comfort with low energy costs thanks to district heating and underfloor heating. Large windows create bright rooms and a pleasant living atmosphere.+
On the ground floor you will find the open-plan living and dining area with direct access to the terrace and garden. The upper floors provide several flexible rooms – ideal as bedrooms, children’s rooms or home offices. A special highlight is the spacious rooftop terrace, offering additional outdoor space for everyday living.
The property also includes a private garden area with a Biohort garden shed, as well as two ground-level parking spaces including an EV charging station.
The Fischbeker Heidbrook neighborhood combines quiet residential living with excellent infrastructure and immediate access to nature, especially the nearby Fischbeker Heide.
Key Features at a Glance:
• 5-room end-terrace house in a quiet residential area
• Several bedrooms / home office rooms
• Guest WC and two modern bathrooms
• Two private parking spaces + EV charging station
• Energy-efficient KfW-40 standard
• District heating & underfloor heating
• Bright living and dining area
• Terrace with garden
• Biohort garden shed
• Spacious rooftop terrace
• Family-friendly residential neighborhood
• Very good public transport connections
• Daycare, doctors and local amenities within walking distance
Merkmale
3 Geschosse
392 m² Grundstück
Haustiere nach Absprache
Einbauküche
2 Außen-Stellplätze
Balkon (gesamt 18 m²)
Garten
Terrasse (gesamt 16 m²)
Grundrisse
Grundrisse
1 / 1
Bausubstanz und Energie
Energieausweis
Der Energieausweis wird bei Besichtigung nachgereicht.
Baujahr2021
Zustand der Immobilieneuwertig
EnergieträgerFernwärme
Mietkosten
Warmmiete
2.800 €
Kaltmiete
19,23 €/m²
2.500 €
Nebenkosten
300 €
Heizkosten
in Nebenkosten enthalten
Kaution
7500€
Lage
Neugraben-Fischbek, Hamburg (21149)
Der Anbieter hat die genaue Adresse nicht freigegeben
Weitere Services
Lust auf eine Besichtigung?
Eine Frage zur Immobilie?
Über den Eigentümer
Privater Anbieter
Keine Telefonnummer hinterlegt
Keine Telefonnummer hinterlegt
Online-ID: 2664WBLYTLD3
Wie zufrieden bist du mit dieser Seite (nicht mit der Immobilie selbst)?