Version: 8.25.1Navigation überspringen
660 €
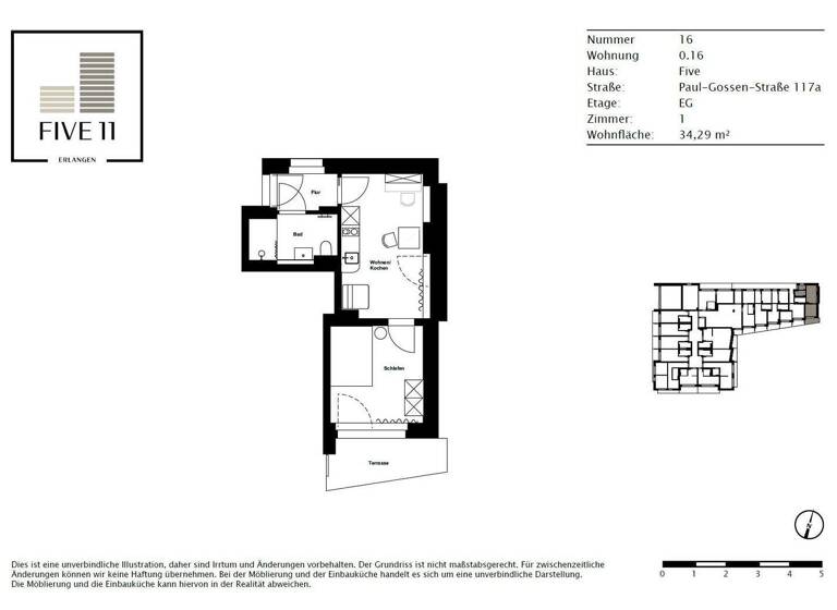
2 Zimmer  •  34,3 m²  •  EG  •  frei ab 01.05.2026
Immowelt logo

Wohnung zur Miete
660 €
2 Zimmer  •  34,3 m²  •  EG  •  frei ab 01.05.2026

Ihr neues Zuhause in Erlangen! Stilvoll möbliertes Apartment

Einladend und großzügig präsentiert sich das 2-Zimmer-Apartment mit kleinem Flur und weiträumigem Wohnbereich mit praktisch integrierter Küchenzone und Zugang zum Balkon. Ein gut geschnittenes Schlafzimmer und ein Bad mit Dusche machen die Wohnung perfekt für Paare oder Singles.

Merkmale

  • frei ab 01.05.2026
  • möbliert
  • Erdgeschoss
  • Personenaufzug
  • Einbauküche
  • Keller
  • Balkon
  • Außen-Stellplatz
Alle Besonderheiten des Five11 auf einen Blick:
- Hochwertige, zeitlose Möblierung
- Schränke, Bett, Sofa, Esstisch, Regalsystem mit integriertem Schreibtisch
- Einbauküche mit Elektrogeräten
- Moderne Badezimmer
- Große Fenster und teilweise Balkone
- Glattweiße Wände
- Vinylboden in den Wohnräumen
- Fliesenböden in den Bädern
- Bäder mit eingebauten LED-Downlights
- Fußbodenheizung in den Wohnräumen

- Waschlounge mit Waschmaschinen
- Überdachte Fahrradstellplätze im Außengelände

Grundrisse

Grundrisse
1 / 1

Realisiere Dein Projekt

Bausubstanz und Energie

Energieausweis

A+
  • Baujahr2024
  • Zustand der ImmobilieNeubau, neuwertig
  • EnergieträgerElektro
Immowelt logo

Mietkosten

Warmmiete
860 €
Kaltmiete
19,25 €/m²
660 €
Nebenkosten
200 €
Heizkosten
in Warmmiete enthalten
Zusätzliche Kosten
Miete pro Stellplatz
117 €
Kaution
1980 €
Weitere Preisinformationen
1 Stellplatz, Miete: 117,00 EUR

Lage

address-icon
Paul-Gossen-Straße 117aErlangen-SüdErlangen (91052)
Als kleinste der acht Großstädte in Bayern bildet Erlangen mit Nürnberg und Fürth die Europäische Metropolregion Nürnberg. Die fränkische "Hugenotten-Stadt" gilt als Hightech-Zentrum Nordbayerns und ist als Universitätsstadt vor allem durch die Friedrich-Alexander-Universität und den Technologiekonzern Siemens geprägt.

So ist die Friedrich-Alexander-Universität Erlangen-Nürnberg mit ca. 38.000 Studierenden nicht nur eine der größten und forschungsstärksten Universitäten des Landes, sondern auch wichtiger Arbeitgeber der Region. Prägend für die Siemens-Stadt war und ist außerdem die Ansiedlung des Siemens Konzerns und zahlreicher Siemens-Beteiligungen. Sie haben maßgeblich dazu beigetragen, dass Erlangen heute eine der wirtschaftstärksten Städte in Deutschland ist.

Mit zwei Naturschutzgebieten in Stadtnähe und 21 Landschaftsschutzgebieten in der Stadt verfügt Erlangen über ausgedehnte Wald- und Wasserflächen, Feuchtbiotope und Sandökosysteme. Der 934 ha große Tennenloher Forst und zahlreiche Ausflugsziele wie das Regnitztal, der Klosterwald oder der Große Bischofsweiher bieten pures Naturerleben und Erholung im Grünen.

Weitere Informationen

Sonstiges Wir bitten Sie Terminanfragen über das Kontaktformular zu senden.

Bei den Bildern handelt es sich um unverbindliche Visualisierungen und Bilder der Musterwohnung. Gerne können Sie sich im Zuge einer Besichtigung selbst vom Five11 überzeugen.

HAFTUNGSAUSSCHLUSS:
Diese Anzeige dient nur der ersten Information und stellt kein Vertragsangebot dar. Die Anzeige begründet keine vertraglichen Ansprüche. Der Inhalt und die Angaben wurden nach bestem Wissen und Gewissen ermittelt. Für Richtigkeit und Vollständigkeit wird keine Haftung übernommen. Stichworte Tiefgarage vorhanden, Anzahl der Schlafzimmer: 1, Anzahl der Badezimmer: 1, Anzahl Balkone: 1, 4 Etagen

Weitere Services

Lust auf eine Besichtigung?
Eine Frage zur Immobilie?
Mit einer persönlichen Nachricht hast du bessere Chancen auf eine Antwort.
Mit der Nutzung der oben angegebenen Telefonnummer oder durch Klicken auf „Kontaktieren“ akzeptierst Du die Allgemeinen Nutzungsbedingungen, denen Du jederzeit widersprechen kannst. Weitere Informationen zum Datenschutz

Über den Anbieter

Galileistraße 1, 69115 Heidelberg
partner badge
10 Jahre Partnerschaft
Frau Karola LoucasDein Kontakt
Keine Telefonnummer hinterlegt
Keine Telefonnummer hinterlegt
Online-ID: 26G48ACNRHUI
Referenznummer: er-Apartment 0.16#EpnLD
Müller Merkle Immobilien GmbH
Müller Merkle Immobilien GmbH
Bewertung: 4,2 von 5 Sternen
Mit einer persönlichen Nachricht hast du bessere Chancen auf eine Antwort.
Mit der Nutzung der oben angegebenen Telefonnummer oder durch Klicken auf „Kontaktieren“ akzeptierst Du die Allgemeinen Nutzungsbedingungen, denen Du jederzeit widersprechen kannst. Weitere Informationen zum Datenschutz
Wie zufrieden bist du mit dieser Seite (nicht mit der Immobilie selbst)?