Version: 8.25.1Navigation überspringen
59.900 €
3 Zimmer  •  58 m²  •  Geschoss 2/3
Immowelt logo

Wohnung zum Kauf • provisionsfrei
59900 €
1.033 €/m²
3 Zimmer  •  58 m²  •  Geschoss 2/3

Vermietete 3-Zimmer-Eigentumswohnung mit Balkon & Stellplatz

Zum Verkauf steht eine gepflegte, vermietete 3-Zimmer-Eigentumswohnung in Schmölln (Hermann-von-Helmholtz-Straße). Die Wohnung befindet sich im Dachgeschoss eines Mehrfamilienhauses und verfügt über einen Balkon mit Ausrichtung ins Grüne sowie einen zur Wohnung gehörenden Pkw-Stellplatz. Die Wohnung ist langfristig vermietet und eignet sich ideal als solide Kapitalanlage. Größere Investitionen am Gebäude wurden bereits vorgenommen. Ausstattung & Highlights ca. 57,6 m² Wohnfläche 3 Zimmer Balkon Pkw-Stellplatz Einbauküche Bad mit Wanne und Fenster Kellerabteil Parkettböden gepflegter Zustand Technischer Zustand des Hauses 2024: komplette energetische Erneuerung der Heizungsanlage im gesamten Wohnblock 2024: Strangsanierung → Keine absehbaren größeren Gemeinschaftsmaßnahmen Vermietung Wohnung ist aktuell vermietet Laufende Mieteinnahmen ab Übergang Geeignet für Anleger mit Fokus auf Bestand und Werterhalt Lage Ruhige Wohnlage in Schmölln mit guter Anbindung. Einkaufsmöglichkeiten, Ärzte, Schulen und öffentliche Verkehrsmittel sind in kurzer Zeit erreichbar. Eckdaten Wohnfläche: ca. 57,6 m² Zimmer: 3 Etage: Dachgeschoss Stellplatz: vorhanden Vermietet Kaufpreis: 60.000 € Hinweis Der Verkauf erfolgt privat. Weitere Unterlagen (Mietvertrag, WEG-Protokolle, Abrechnungen, Energieausweis) werden bei ernsthaftem Interesse gern zur Verfügung gestellt.

Merkmale

  • Dachgeschoss, 2. Geschoss/3 Geschossen
  • Einbauküche
  • Keller
  • Außen-Stellplatz
  • Balkon (gesamt 1 m²)
  • Garten
  • Badezimmer

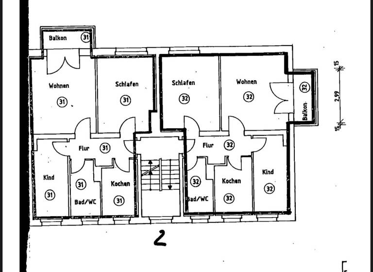
Grundrisse

Grundrisse
1 / 1

Realisiere Dein Projekt

Bausubstanz und Energie

Energieausweis

Der Energieausweis wird bei Besichtigung nachgereicht.
  • Baujahr1965
  • Zustand der Immobilieneuwertig
  • HeizungsartZentralheizung
  • EnergieträgerGas
Immowelt logo

Preisdetails

Kaufpreis
59900 €
1.032,76 €/m²
Preis pro Stellplatz
in Kaufpreis enthalten
Provision für Käufer
provisionsfrei
Geschätzte Gesamtkosten
64.094 €1
Kaufpreis
59.900 €
Notarkosten (1,5%)
899 €
Grunderwerbsteuer (5%)
2.995 €
Grundbucheintrag (0,5%)
300 €
1Der angezeigte Wert ist eine automatisch berechnete Schätzung von immowelt.
2Bei den Angaben handelt es sich um ortsübliche Werte. Individuelle Kosten können abweichen.

Lage

address-icon
Hermann-von-Helmholtz-Straße 2Schmölln (04626)

Weitere Services

Lust auf eine Besichtigung?
Eine Frage zur Immobilie?
Nachricht hinzufügen
Mit der Nutzung der oben angegebenen Telefonnummer oder durch Klicken auf „Kontaktieren“ akzeptierst Du die Allgemeinen Nutzungsbedingungen, denen Du jederzeit widersprechen kannst. Weitere Informationen zum Datenschutz

Über den Eigentümer

DanielPrivater Anbieter
Keine Telefonnummer hinterlegt
Keine Telefonnummer hinterlegt
Online-ID: 267A8CZ98WX6
Daniel
Nachricht hinzufügen
Mit der Nutzung der oben angegebenen Telefonnummer oder durch Klicken auf „Kontaktieren“ akzeptierst Du die Allgemeinen Nutzungsbedingungen, denen Du jederzeit widersprechen kannst. Weitere Informationen zum Datenschutz
Wie zufrieden bist du mit dieser Seite (nicht mit der Immobilie selbst)?