

Sven Arndt Immobilien
Herr Sven Arndt
043 ···
Nr. anzeigenPreise & Kosten
Provision für Käufer
5,95 % inkl. der gesetzl. MwSt.
Lage
Hansestadt Salzwedel - Baumkuchenstadt mit Tradition im Fachwerk. Salzwedel ist die nördlichste Kreisstadt Sachsen-Anhalts. Das angrenzende Bundesland Niedersachsen hervorheben ist nur wenige Kilometer entfernt.
Der Stadtkern von Salzwedel ist geprägt von mittelalterlicher Architektur, Fachwerkhäuser an malerischen...
Das Haus
Energie & Heizung
Warum sehe ich diese Anzeige? – Du siehst diese Anzeige basierend auf Ihrer Navigation auf unserer Website und den Suchkriterien, die du verwendet hast.
Energieausweis: für diesen Gebäudetyp nicht notwendig
Details
Objektbeschreibung
Haben Sie innovative Pläne und Ideen oder denken Sie groß und suchen besondere Lagen mit entsprechend raren und besonderen Baukörpern? Bei diesem Ensemble aus denkmalgeschütztem Fachwerkbau, altem Speicher und Baulücke mitten in der Altstadt können Sie Ihre Vorhaben umsetzen. Sei es Gewerbe, Wohnen oder denken Sie an eine...
Ausstattung
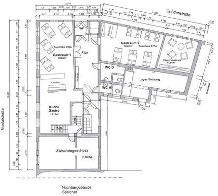
Starten wir die Beschreibung in der Chüdenstraße 2, dem Fachwerkhaus. Hier finden Sie ein teilweise unterkellertes Gebäude vor. Die Kellerdecken habe eine geringe Höhe von1,70 m bis 2,0 m, sie bestehen aus Holzbalken mit ausgemauerten Gewölben. Das Kellergeschoß ist mit dem benachbarten Speicher in der Nikolaistraße 1A...
Weitere Informationen
Sonstiges
Es gelten die allgemeinen Geschäftsbedingungen der Firma Sven Arndt Immobilien. Die Käufer-Provision ist verdient und fällig mit Beurkundung des notariellen Kaufvertrages. Alle Angaben in diesem Exposé sind ohne Gewähr und basieren ausschließlich auf Informationen, die uns von unserem Auftraggeber übermittelt...
Anbieter der Immobilie

Online-ID: 267p35s
Referenznummer: 915
Finde Angebote wie dieses
Hier geht es zu unserem Impressum, den Allgemeinen Geschäftsbedingungen, den Hinweisen zum Datenschutz und nutzungsbasierter Online-Werbung.