Version: 8.25.1Navigation überspringen
2.600 €
3 Zimmer  •  87,7 m²  •  4. Geschoss
Immowelt logo

Wohnung zur Miete
2.600 €
3 Zimmer  •  87,7 m²  •  4. Geschoss

Urbanes Wohnen mit eigenem Gäste- oder Arbeitsbereich

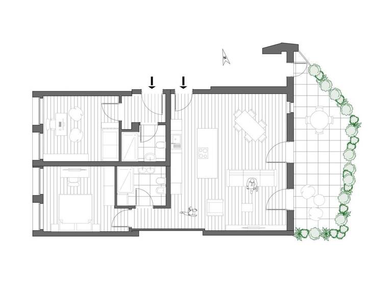
Vielseitig und durchdacht gestaltet, überzeugt diese Wohnung mit einem Wohnbereich, von dem man direkt auf die ca. 25?m² große Terrasse gelangt, sowie einem Schlafzimmer und einem Badezimmer. Zusätzlich verfügt die Wohnung über ein separates Zimmer mit eigenem Bad, das sowohl intern als auch über einen separaten Eingang zugänglich ist - perfekt für Gäste oder als Arbeitsbereich.

Das Sparkassenhaus steht für exklusives Wohnen im Herzen von Meran und vereint zeitlose Architektur mit höchstem Qualitätsanspruch. Die neu errichteten Wohnungen überzeugen durch klare Linien, edle Materialien und ein harmonisches Zusammenspiel von Design und moderner Technik. Großzügige Fensterflächen schaffen lichtdurchflutete Räume mit eindrucksvollen Ausblicken über die Stadt. Fußbodenheizung, moderne Klimatechnik zum Kühlen und Heizen sowie individuell regelbare Temperaturzonen sorgen ganzjährig für ein angenehmes Wohngefühl. Ein intelligentes Smart-Home-System ermöglicht die zentrale Steuerung von Heizung, Beleuchtung und Raffstores. Terrassen mit begrünten Pflanzbereichen und integrierter Bewässerung unterstreichen den exklusiven Charakter, während barrierefreie Zugänge und ein Lift bis in alle Wohngeschosse zusätzlichen Komfort bieten.

Merkmale

  • Bezug: 2026
  • 4. Geschoss
  • Personenaufzug
  • Terrasse
  • voll klimatisiert

Grundrisse

Grundrisse
1 / 1

Realisiere Dein Projekt

Bausubstanz und Energie

Möchtest du Details zum Energieverbrauch?info_energy_calculation-icon
  • Zustand der Immobilierenoviert / saniert
  • HeizungsartFußbodenheizung
  • EnergieträgerFernwärme, Luft-/Wasser-Wärmepumpe
Immowelt logo

Mietkosten

Kaltmiete
29,66 €/m²
2.600 €
Provision für Mieter
Bitte beachte, das Angebot kann bei Vertragsabschluss die Zahlung einer Provision beinhalten. Weitere Informationen erhältst Du vom Anbieter.
Kaution
keine Angabe

Lage

address-icon
Sparkassenstraße 2Meran (39012)

Weitere Informationen

Stichworte Verkaufsfläche: 112,44 m², Anzahl der Schlafzimmer: 2, Anzahl der Badezimmer: 2, Anzahl Terrassen: 1, Balkon-Terrassen-Fläche: 25,62 m², 7 Etagen

Weitere Services

Lust auf eine Besichtigung?
Eine Frage zur Immobilie?
Mit einer persönlichen Nachricht hast du bessere Chancen auf eine Antwort.
Mit der Nutzung der oben angegebenen Telefonnummer oder durch Klicken auf „Kontaktieren“ akzeptierst Du die Allgemeinen Nutzungsbedingungen, denen Du jederzeit widersprechen kannst. Weitere Informationen zum Datenschutz

Über den Anbieter

Trattengasse 7, 37042 Brixen (BZ)
partner badge
6 Jahre Partnerschaft
Firma Castellanum Meran - MeranoDein Kontakt
Online-ID: 26SES139154F
Referenznummer: ME13499_W03
Castellanum
Castellanum
Mit einer persönlichen Nachricht hast du bessere Chancen auf eine Antwort.
Mit der Nutzung der oben angegebenen Telefonnummer oder durch Klicken auf „Kontaktieren“ akzeptierst Du die Allgemeinen Nutzungsbedingungen, denen Du jederzeit widersprechen kannst. Weitere Informationen zum Datenschutz
Wie zufrieden bist du mit dieser Seite (nicht mit der Immobilie selbst)?