Attraktive Erdgeschoss-Gewerbefläche im Ferienappartementkomplex THE VIEW
In der touristisch prominenten Lage an der Nordseestraße, direkt gegenüber vom Veranstaltungsort "Deichtorplatz" entsteht das Neubauprojekt "THE VIEW", bestehend aus insgesamt 48 Ferienwohnungen sowie 4 Gewerbeeinheiten im Erdgeschoss.
Hier besteht für Sie die einmalige Gelegenheit, an diesem Standort eine ausgesprochen attraktive Gewerbefläche zu erwerben.
Sprechen Sie uns gerne an hinsichtlich näherer Details zu Ausstattung und z.B. Nutzungsmöglichkeiten des Standortes
THE VIEW besteht insgesamt aus 4 Gebäuden, welche durch eine ansprechende Außenanlage mit eindrucksvollen Details und angenehmen Rückzugsmöglichkeiten miteinander verbunden sind.
Die Gebäude sind nach den neuesten Standards gebaut und mit Solarzellen ausgestattet. dies tragen nicht nur zur Energiegewinnung bei, sondern setzen auch ein Statement für Nachhaltigkeit und Umweltbewusstsein.
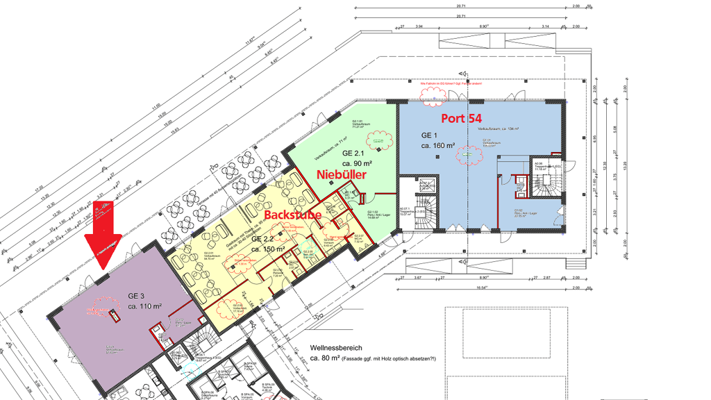
THE VIEW umfasst insgesamt 48 Ferienappartements verteilt auf 3 Hauptgebäude sowie ein weiteres separates Gebäude; die letzte zum Verkauf stehende Gewerbefläche G3 befindet sich im Gebäudeteil 3. 3 weitere Gewerbeflächen sind bereits verkauft; Gewerbeeinheit 1 an den namhaften Ferienwohnungsverwalter "Port54", Gewerbeeinheit 2 an die "Niebüller Backstube" und Gewerbeeinheit 4 an eine Gastronomie.
Attraktiv belegene Stellplätze direkt vor der Tür des Ladenlokals sind vorhanden.
Merkmale
Bezug: Ostern 2026
Realisiere Dein Projekt
Bausubstanz und Energie
Energieausweis
Ein Energieausweis ist für diesen Gebäudetyp nicht notwendig.
Baujahr2026
Zustand der ImmobilieErstbezug
HeizungsartZentralheizung
EnergieträgerElektro
Preisdetails
Kaufpreis
299900 €299.900 €
Provision für Käufer
provisionsfrei; prov.frei
Geschätzte Gesamtkosten
299.900 €1
Kaufpreis
299.900 €
1Der angezeigte Wert ist eine automatisch berechnete Schätzung von immowelt.
Lage
Dagebüll (25899)
Der Anbieter hat die genaue Adresse nicht freigegeben
Dagebüll das "Fenster zur Nordsee". Diese Aussage trifft auf Dagebüll Hafen ohne Übertreibung zu. Der gesamte Fährverkehr findet hier statt. Von hier aus starten die Fähren zu den Inseln Föhr und Amrum, die Bäderschiffe nach Helgoland. Mit seinem sandfreien und immergrünen Badestrand, der zur Flutzeit bewacht ist, ist Dagebüll das Tor zum Nationalpark Wattenmeer. Der durch die DLRG bewachte grüne Badestrand, inklusive Hundestrand lädt zum Baden und Verweilen ein. Die Freizeit hat hier einen hohen Stellenwert. Kleinkinder können direkt am Badestrand im Sandkasten spielen, ebenso besteht die Möglichkeit an Wattwanderungen teilzunehmen, oder eine der angebotenen Ausflugsfahrten zu nutzen. Einen besonderen Reiz bietet auch die Möglichkeit mit dem Fahrrad am Deich entlang eine Radtour über Schlüttsiel und der Hamburger Hallig bis Husum zu unternehmen. Auch das Angeln im Meer und an den Binnengewässern ist möglich. Zusätzlich stehen Sport- und Tennisplätze und ein Trimm-Pfad zur Verfügung. Wer gerne auf eigene Faust loszieht, dem bieten sich vielfältige Möglichkeiten wie Besichtigungen auf Bauernhöfen, Reiten oder ausgedehnte Fahrradtouren und eindrucksvolle Vogelbeobachtungen im Vogelschutzgebiet des Hauke-Haien-Kooges. Der Ortsteil Dagebüll-Hafen ist der touristische Schwerpunkt der Gemeinde. In den letzten Jahren entstanden in diesem Ortsteil ca. 80 neue Ferienhäuser. Eine neue Ladenzeile und die bereits seit vielen Jahren etablierten Gewerbebetriebe und Hotels laden zum Flanieren ein.
Weitere Informationen
Stichworte
Gesamtfläche: 110,00 m², Bundesland: Schleswig-Holstein