

Maisonette zur Miete1.150 €3 Zimmer • 103 m² • Geschoss 1/3 • frei ab sofort
1.150 €
3 Zimmer • 103 m² • Geschoss 1/3 • frei ab sofort
Schöne Maisonettewohnung im Grünen
Merkmale
- 1. Geschoss/3 Geschossen
- Haustiere nach Absprache
- Einbauküche
- Keller
- Carport
- Terrasse (gesamt 12 m²)
- Nicht möbliert
- 2 Badezimmer
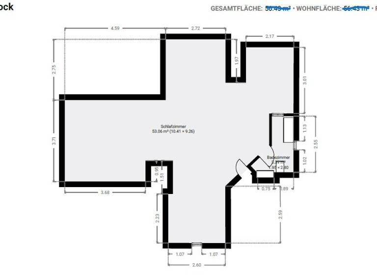
Grundrisse
Grundrisse
1 / 1
Realisiere Dein Projekt
Bausubstanz und Energie
Energieausweis
- Zustand der ImmobilieGepflegt
- HeizungsartZentralheizung
- EnergieträgerGas
Mietkosten
Warmmiete
1.340 €
Kaltmiete
11,17 €/m²
1.150 €
Nebenkosten
190 €
Heizkosten
in Nebenkosten enthalten
Zusätzliche Kosten
Miete pro Stellplatz
60 €
Kaution
3450 €
Lage

Elmshorn (25336)
Der Anbieter hat die genaue Adresse nicht freigegeben
Weitere Services
Lust auf eine Besichtigung?
Eine Frage zur Immobilie?
Über den Eigentümer
Privater Anbieter
Keine Telefonnummer hinterlegt
Keine Telefonnummer hinterlegt
Online-ID: 26BPE26RDHPB
Privater Anbieter
Wie zufrieden bist du mit dieser Seite (nicht mit der Immobilie selbst)?

