Version: 8.22.4Navigation überspringen
Winegg Makler GmbH
1.932 €
3,5 Zimmer  •  138 m²  •  2. Geschoss

Wohnung zur Miete
1932 €
Nettokaltmiete
3,5 Zimmer  •  138 m²  •  2. Geschoss

Wunderschöner Stil-Altbau mit Erker! 3 Zimmer plus separate Küche nächst Kunst Haus

Die 1915 erbaute Liegenschaft in der Unteren Weißgerberstraße wurde in den letzten Jahren liebevoll saniert und verbindet gekonnt traditionelle Architektur mit modernem Wohnkomfort. Ein Personenlift ist vorhanden. Fahrräder können im Innenhof abgestellt werden. Die ruhige Gasse parallel zur Hundertwasser Promenade und dem Donaukanal sowie zwischen Prater und Wien Mitte ist eine ideale Citylage kombiniert mit viel Grünflächen rundherum.

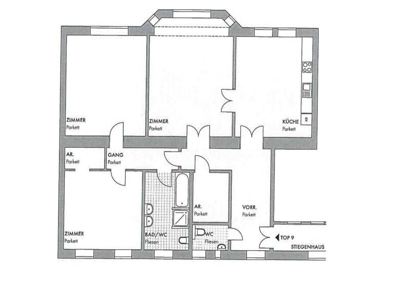
GRUNDRISS

Der 3-Zimmer-Stilaltbau plus extra Küchenbereich mit ca. 138 qm befindet sich im 1. Liftstock und ist südwestlich zur Straße hin und nordöstlich Richtung Innenhof ausgerichtet.

Über den Vorraum mit Fenster sind alle Räume zentral begehbar: 

* Wohnzimmer mit charmantem Erker
* Koch-/Essbereich mit Einbauküche
* straßenseitiges Schlafzimmer
* hofseitiges Schlafzimmer mit Schrankraum
* Badezimmer mit Fenster (ausgestattet mit Dusche, Wanne, WC, zwei Waschbecken, Waschmaschinenanschluss)
* Gäste-WC
* Abstellraum

AUSSTATTUNG

Holzkastenfenster, teilweise elektrische Rollos, Flügeltüren, Fischgrät-Parkettböden, Gasetagenheizung

KONDITIONEN

Monatliche Gesamtmiete: EUR 2.435,86 (inkl. Betriebskosten, Liftkosten und 10 % USt) 

Energiekosten: Strom und Gas sind im Mietpreis nicht inkludiert und somit separat zu entrichten.

Kaution: 3 BMM (EUR 7.307,58)

Mietbeginn: ab sofort möglich

Mietverhältnis: unbefristet

 

Dieses Objekt wird Ihnen unverbindlich und freibleibend zur Miete angeboten.?Oben angeführte Angaben basieren auf Informationen und Unterlagen der Eigentümerin und sind unsererseits ohne Gewähr.? Wir möchten noch darauf hinweisen, dass wir in einem wirtschaftlichen Naheverhältnis zur Vermieterin stehen.

Wir weisen darauf hin, dass zwischen dem Vermittler und dem zu vermittelnden Dritten ein familiäres oder wirtschaftliches Naheverhältnis besteht.

Der Immobilienmakler erklärt, dass er - entgegen dem in der Immobilienwirtschaft üblichen Geschäftsgebrauch des Doppelmaklers - einseitig nur für den Vermieter tätig ist.

Infrastruktur / Entfernungen

Gesundheit
Arzt <250m
Apotheke <250m
Klinik <1.000m
Krankenhaus <1.000m

Kinder & Schulen
Schule <500m
Kindergarten <250m
Universität <500m
Höhere Schule <1.250m

Nahversorgung
Supermarkt <250m
Bäckerei <250m
Einkaufszentrum <750m

Sonstige
Geldautomat <250m
Bank <250m
Post <250m
Polizei <750m

Verkehr
Bus <250m
U-Bahn <750m
Straßenbahn <250m
Bahnhof <750m
Autobahnanschluss <2.250m

Angaben Entfernung Luftlinie / Quelle: OpenStreetMap

Merkmale

  • 2. Geschoss
  • Einbauküche
  • Personenaufzug
  • Gäste-WC
  • Badezimmer: Badewanne, Bad mit Dusche
  • WG-geeignet
  • Bodenbelag: Fliesen, Parkett

Grundrisse

Grundrisse
1 / 1

Realisiere Dein Projekt

Bausubstanz und Energie

Heizwärmebedarf (HWB)

D

Gesamtenergieeffizienz (fGEE)

D
  • Baujahr1915
  • Zustand der ImmobilieAltbau (bis 1945), Gepflegt
  • HeizungsartEtagenheizung
  • EnergieträgerGas

Mietkosten

Gesamtmiete
2.435,86 €
Nettokaltmiete
14 €/m²
1.932 €
Betriebskosten
245,06 €
Kaution
7.307,58 €
Weitere Preisinformationen
Nettokaltmiete: 1.932,00 EUR

Lage

address-icon
Untere WeißgerberstraßeWien (1030)
Der Standort vereint städtische Zentrumsnähe mit guter Verkehrsanbindung und einem wohnfreundlichen Umfeld. Das Weißgerber-Viertel ist geprägt von stilvollen Altbauten, kleinen Geschäften und vielfältiger Infrastruktur - eine ruhige Lage innerhalb der Stadt, aber dennoch mittendrin. Nur wenige Schritte entfernt befindet sich das Kunst Haus Wien - Hundertwasser Museum.

Grünflächen und Parks:
Auf der gegenüberliegenden Seite des Donaukanals liegt der Prater mit der Zirkuswiese und der Praterwiese und natürlich auch dem Vergnügungspark.
Auch der Stadtpark und das Schloss Belvedere sind nicht weit entfernt.

Shopping:
Die Landstraßer Hauptstraße und "The Mall" in Wien Mitte bieten zahlreiche Einkaufsmöglichkeiten und Shoppingerlebnisse.

Folgende öffentlichen Verkehrsmittel befinden sich in der näheren Umgebung:
Straßenbahn 1 (Haltestellen Radetzkyplatz oder Hetzgasse)
Straßenbahn 0 (Haltestelle Radetzkyplatz)
Buslinien 4A und N29 (Haltestelle Löwengasse)
Bahnhof Wien Mitte mit U3 und U4 (in ca. 10 Minuten zu Fuß erreichbar)

Weitere Informationen

Stichworte Anzahl der Badezimmer: 1, Anzahl der separaten WCs: 2, Bundesland: Wien, 7 Etagen

Weitere Services

Lust auf eine Besichtigung?
Eine Frage zur Immobilie?
Nachricht hinzufügen
Mit der Nutzung der oben angegebenen Telefonnummer oder durch Klicken auf „Kontaktieren“ akzeptierst Du die Allgemeinen Nutzungsbedingungen, denen Du jederzeit widersprechen kannst. Weitere Informationen zum Datenschutz

Über den Anbieter

Herrengasse 1-3 / 4. Stockwerk, 1010 WIEN
Frau Sandra Weichesmiller
Frau Sandra WeichesmillerDein Kontakt
Online-ID: 2mjys53
Referenznummer: OBGC2025102916293588202efcdfd2a
Winegg Makler GmbH
title
Winegg Makler GmbH
Nachricht hinzufügen
Mit der Nutzung der oben angegebenen Telefonnummer oder durch Klicken auf „Kontaktieren“ akzeptierst Du die Allgemeinen Nutzungsbedingungen, denen Du jederzeit widersprechen kannst. Weitere Informationen zum Datenschutz
Wie zufrieden bist du mit dieser Seite (nicht mit der Immobilie selbst)?