Version: 8.25.1Navigation überspringen
1.380 €
5 Zimmer  •  139 m²  •  frei ab sofort
Immowelt logo

Doppelhaushälfte zur Miete
1.380 €
5 Zimmer  •  139 m²  •  frei ab sofort

Moderne Doppelhaushälfte zur Miete (Neubau- Rechte Hälfte)

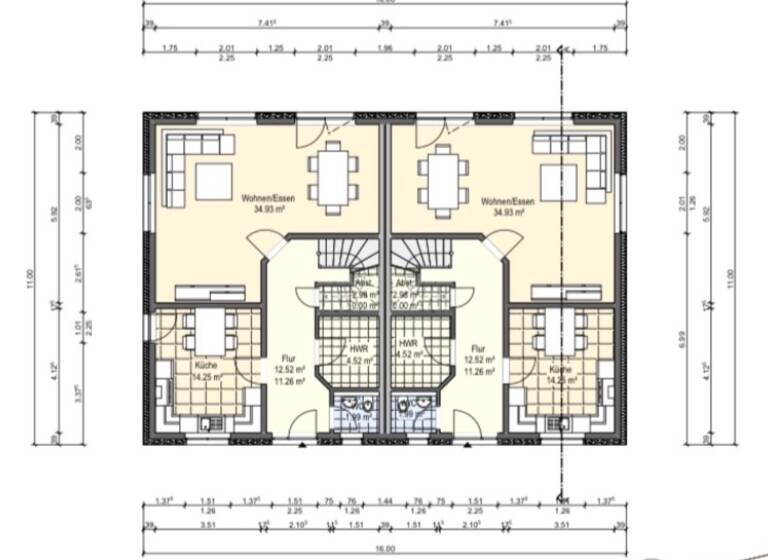
Moderne Doppelhaushälfte – Erstbezug 2026 in Eggermühlen (Bockraden) ⸻ Zur Vermietung steht eine hochwertige Doppelhaushälfte in ruhiger Neubausiedlung in Eggermühlen (Bockraden) – ideal für Familien oder Paare mit Platzbedarf. Erstbezug ab 2026 – moderne Ausstattung, energieeffizient (KfW), mit Wärmepumpe, PV-Anlage, Fußbodenheizung und Lüftung. ⸻ Eckdaten: • Kaltmiete: 1380€ • Nebenkosten ca. 250€ (je nach Personen Anzahl) • Haushaltsstrom: ca. 60 € • Wohnfläche: 139 m² (Die Wohnfläche wurde auf Grundlage der Baupläne ermittelt) • Zimmer: 5 • Etagen: EG + OG • Baujahr: 2026 • Verfügbar ab: 01.04.2026 • Stellplatz: 1 • Energieausweis: folgt • Kaution: 2 Kaltmieten ⸻ Ausstattung: ✅ KfW-Effizienzhaus (Neubau) ✅ Wärmepumpe + Photovoltaikanlage (ca. 5.400 kWh, ohne Speicher) ✅ Fußbodenheizung & Lüftungsanlage ✅ Gäste-WC im EG ✅ Eigener Hauswirtschaftsraum ✅ Abstellraum ✅ Garten ✅ Dachboden ✅ Stellplatz ⸻ Grundrissaufteilung: EG: Wohnzimmer mit offener Küche (keine Einbauküche vorhanden), HWR, Gäste-WC, Abstellraum, Flur OG: 4 Zimmer, 1 Badezimmer ⸻ Lage: Ruhige Neubausiedlung in Eggermühlen (Bockraden) Gute Erreichbarkeit: • Ankum: ca. 6 km • Bersenbrück: ca. 12 km • Fürstenau: ca. 15 km • Quakenbrück: ca. 20 km ⸻ Sonstiges: Nichtraucher, Haustiere nach Absprache. Langfristige Mieter gesucht. Besichtigungen nach Vereinbarung möglich. ⸻ Kontakt: Bitte schreiben Sie mir ein paar kurze Infos zu Ihrer Person (z. B. Anzahl der Personen, Beruf, gewünschtes Einzugsdatum etc.). Ich melde mich schnellstmöglich zurück!

Merkmale

  • frei ab sofort
  • 2 Geschosse
  • Haustiere nach Absprache
  • 2 Außen-Stellplätze
  • Garten
  • Terrasse
  • Nicht möbliert
  • Badezimmer

Grundrisse

Grundrisse
1 / 2

Realisiere Dein Projekt

Bausubstanz und Energie

Energieausweis

Der Energieausweis wird bei Besichtigung nachgereicht.
  • Baujahr2026
  • Zustand der Immobilieneuwertig
  • Heizungsartindividuell
  • EnergieträgerSolar, Luft-/Wasser-Wärmepumpe
Immowelt logo

Mietkosten

Warmmiete
1.630 €
Kaltmiete
9,93 €/m²
1.380 €
Nebenkosten
250 €
Heizkosten
in Nebenkosten enthalten
Miete pro Stellplatz
in Warmmiete enthalten
Kaution
2760 €

Lage

address-icon
Eggermühlen (49577)
Der Anbieter hat die genaue Adresse nicht freigegeben

Weitere Services

Lust auf eine Besichtigung?
Eine Frage zur Immobilie?
Mit einer persönlichen Nachricht hast du bessere Chancen auf eine Antwort.
Mit der Nutzung der oben angegebenen Telefonnummer oder durch Klicken auf „Kontaktieren“ akzeptierst Du die Allgemeinen Nutzungsbedingungen, denen Du jederzeit widersprechen kannst. Weitere Informationen zum Datenschutz

Über den Eigentümer

MirsadPrivater Anbieter
Keine Telefonnummer hinterlegt
Keine Telefonnummer hinterlegt
Online-ID: 26DAB9FXRAGF
Mirsad
Mit einer persönlichen Nachricht hast du bessere Chancen auf eine Antwort.
Mit der Nutzung der oben angegebenen Telefonnummer oder durch Klicken auf „Kontaktieren“ akzeptierst Du die Allgemeinen Nutzungsbedingungen, denen Du jederzeit widersprechen kannst. Weitere Informationen zum Datenschutz
Wie zufrieden bist du mit dieser Seite (nicht mit der Immobilie selbst)?