Version: 8.25.1Navigation überspringen
1.560 €
2 Zimmer  •  64 m²  •  Geschoss 1/5  •  frei ab 05.04.2026
Immowelt logo

Wohnung zur Miete
1.560 €
2 Zimmer  •  64 m²  •  Geschoss 1/5  •  frei ab 05.04.2026

Helle 2-Zimmer Wohnung mit Balkon im 1. OG in Berlin-Weißensee

Wir suchen neue Mieter für diese schöne 2-Zimmer-Wohnung in Weißensee, Pistoriusstraße 35, da wir innerhalb Berlins in eine größere Wohnung umziehen. Das Gebäude ist neu (Baujahr 2023), sehr gut isoliert und verfügt über Parkettboden sowie Fußbodenheizung. Die Wohnung besteht aus einem großen Wohnzimmer mit moderner Küche (im Preis inbegriffen), einem sonnigen Schlafzimmer und einem großen Balkon, auf dem wir viele Sommerabende verbracht haben. Das Haus verfügt außerdem über einen Aufzug, einen barrierefreien Zugang sowie einen Keller. Verfügbar ab dem 5. April. Bei Interesse schreibt uns gerne eine Nachricht, dann können wir einen Besichtigungstermin vereinbaren :) ______________ We’re looking for new tenants to take over this nice 2-room apartment in Weißensee, Pistoriusstraße 35, as we’re moving to a bigger place within Berlin. The building is new (2023), very well insulated, with parquet floors and underfloor heating. The apartment has a big living room with a modern kitchen (included in price), a sunny bedroom, and a large balcony where we spent many evenings during the summer. The building also has an elevator, step-free access and a cellar. Available from April 5. If you’re interested, send us a message and we can arrange a viewing:)

Merkmale

  • frei ab 05.04.2026
  • 1. Geschoss/5 Geschossen
  • Haustiere erlaubt
  • Einbauküche
  • Personenaufzug
  • Keller
  • Terrasse (gesamt 4 m²)
  • Nicht möbliert

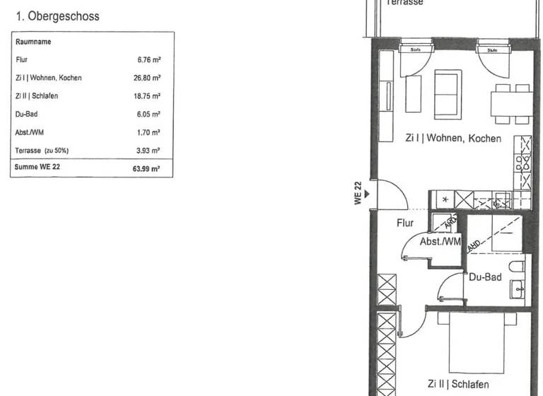
Grundrisse

Grundrisse
1 / 1

Realisiere Dein Projekt

Bausubstanz und Energie

Energieausweis

Der Anbieter hat keine Daten zum Energieausweis hinterlegt.
  • Baujahr2023
  • HeizungsartZentralheizung
  • EnergieträgerFernwärme
Immowelt logo

Mietkosten

Warmmiete
1.760 €
Kaltmiete
24,38 €/m²
1.560 €
Nebenkosten
200 €
Heizkosten
in Nebenkosten enthalten
Kaution
4680 €

Lage

address-icon
Pistoriusstraße 35WeißenseeBerlin (13086)

Weitere Services

Lust auf eine Besichtigung?
Eine Frage zur Immobilie?
Mit einer persönlichen Nachricht hast du bessere Chancen auf eine Antwort.
Mit der Nutzung der oben angegebenen Telefonnummer oder durch Klicken auf „Kontaktieren“ akzeptierst Du die Allgemeinen Nutzungsbedingungen, denen Du jederzeit widersprechen kannst. Weitere Informationen zum Datenschutz

Über den Eigentümer

ElmiraPrivater Anbieter
Keine Telefonnummer hinterlegt
Keine Telefonnummer hinterlegt
Online-ID: 26DAJ1NKKYEX
Elmira
Mit einer persönlichen Nachricht hast du bessere Chancen auf eine Antwort.
Mit der Nutzung der oben angegebenen Telefonnummer oder durch Klicken auf „Kontaktieren“ akzeptierst Du die Allgemeinen Nutzungsbedingungen, denen Du jederzeit widersprechen kannst. Weitere Informationen zum Datenschutz
Wie zufrieden bist du mit dieser Seite (nicht mit der Immobilie selbst)?