Version: 8.25.1Navigation überspringen
750.000 €
4 Zimmer  •  168 m²
Immowelt logo

Haus zum Kauf
750000 €
4.464 €/m²
4 Zimmer  •  168 m²

Villa 168m2 zum Kauf - Sibensko-Kninska, Rogoznica

Eine Immobilie mit großem Potenzial befindet sich in ausgezeichneter Lage in Rogoznica. Die Lage auf leicht erhöhtem Gelände ist von Vorteil, da man vom Grundstück aus einen wunderschönen und unverbaubaren Blick auf das Meer hat.

Dank seiner Lage und Aufteilung stellt das Anwesen eine hervorragende Möglichkeit dar, in den Tourismus zu investieren, gleichzeitig ist es aber auch eine ideale Möglichkeit, das Wohnungsproblem zu lösen.



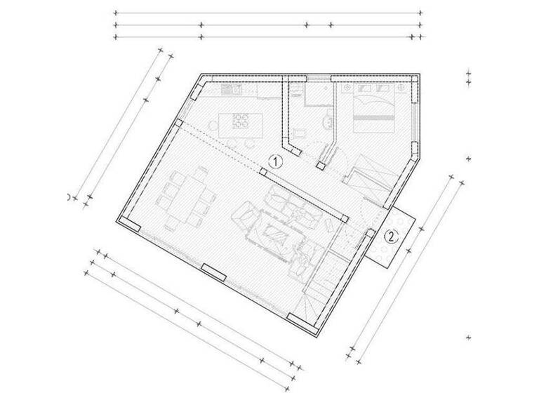
Das Anwesen befindet sich auf einem Grundstück von 597 m2 und verfügt über eine Gesamtwohnfläche von 168 m2, verteilt auf zwei Etagen.

Im Erdgeschoss befinden sich ein Schlafzimmer, ein Badezimmer, eine Küche, ein Esszimmer und ein Wohnzimmer mit Zugang zum Innenhof des Hauses, wo sich ein Swimmingpool mit Liegewiese befindet. Über eine Innentreppe gelangt man in den ersten Stock, wo sich drei Schlafzimmer mit jeweils eigenem Bad befinden und ein Zimmer Zugang zu einem eigenen Balkon mit Meerblick hat.

Ein zusätzlicher Vorteil dieser Villa ist der großzügige Garten und der Parkplatz, der für mehrere Autos zur Verfügung steht.



Die Villa befindet sich in Rogoznica. Es ist ein ruhiges Fischerdorf an der Adriaküste, ideal für einen Sommerurlaub für alle, die vor allem Schwimmen und Sonnenbaden möchten.



Die Villa wird schlüsselfertig und mit maßgefertigten Möbeln verkauft.

Grundrisse

Grundrisse
1 / 2

Realisiere Dein Projekt

Bausubstanz und Energie

Möchtest du Details zum Energieverbrauch?info_energy_calculation-icon
Immowelt logo

Preisdetails

Kaufpreis
750000 €
4.464,29 €/m²
Provision für Käufer
Bitte beachte, das Angebot kann bei Vertragsabschluss die Zahlung einer Provision beinhalten. Weitere Informationen erhältst Du vom Anbieter.

Lage

address-icon
Rogoznica
Der Anbieter hat die genaue Adresse nicht freigegeben

Weitere Informationen

Stichworte Anzahl der Badezimmer: 4, 1 Etagen

Weitere Services

Lust auf eine Besichtigung?
Eine Frage zur Immobilie?
Nachricht hinzufügen
Mit der Nutzung der oben angegebenen Telefonnummer oder durch Klicken auf „Kontaktieren“ akzeptierst Du die Allgemeinen Nutzungsbedingungen, denen Du jederzeit widersprechen kannst. Weitere Informationen zum Datenschutz

Über den Anbieter

Crozilla.com - Das Immobilienportal in Kroatien, Bitte kontaktieren Sie den Ansprechpartner
partner badge
Partnerschaft
BROKER-GRUPA d.o.o.Dein Kontakt
Online-ID: 266F4IIAWLHM
Referenznummer: 19412385_0
Gewerblicher Anbieter
Nachricht hinzufügen
Mit der Nutzung der oben angegebenen Telefonnummer oder durch Klicken auf „Kontaktieren“ akzeptierst Du die Allgemeinen Nutzungsbedingungen, denen Du jederzeit widersprechen kannst. Weitere Informationen zum Datenschutz
Wie zufrieden bist du mit dieser Seite (nicht mit der Immobilie selbst)?