

Terrassenwohnung zur Miete630 €1 Zimmer • 40 m² • frei ab 01.05.2026
630 €
1 Zimmer • 40 m² • frei ab 01.05.2026
Über diese Immobilie
Merkmale
- frei ab 01.05.2026
- Haustiere nach Absprache
- Einbauküche
- Personenaufzug
- Keller
- Tiefgarage
- Garten
- Terrasse
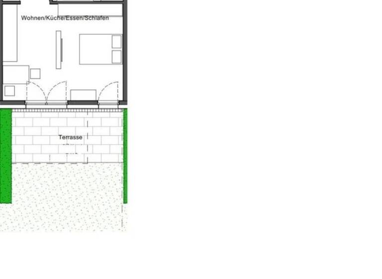
Grundrisse
Grundrisse
1 / 1
Realisiere Dein Projekt
Bausubstanz und Energie
Energieausweis
- Baujahr2020
Mietkosten
Warmmiete
780 €
Kaltmiete
15,75 €/m²
630 €
Nebenkosten
150 €
Heizkosten
in Nebenkosten enthalten
70 €
Miete pro Stellplatz
in Warmmiete enthalten
Kaution
2000 €
Lage

Tennenlohe, Erlangen (91058)
Der Anbieter hat die genaue Adresse nicht freigegeben
Weitere Services
Lust auf eine Besichtigung?
Eine Frage zur Immobilie?
Über den Eigentümer
Privater Anbieter
Keine Telefonnummer hinterlegt
Keine Telefonnummer hinterlegt
Online-ID: 26DG9QK3Q7WH
Privater Anbieter
Wie zufrieden bist du mit dieser Seite (nicht mit der Immobilie selbst)?

