

Wohnung zur Miete2.350 €3 Zimmer • 79 m² • Geschoss 1/3 • frei ab 01.04.2026
2.350 €
3 Zimmer • 79 m² • Geschoss 1/3 • frei ab 01.04.2026
Helle 3-Zimmer Wohnung mit 2 Balkonen in Bad Wiessee
Merkmale
- frei ab 01.04.2026
- 1. Geschoss/3 Geschossen
- Haustiere nach Absprache
- Einbauküche
- Personenaufzug
- Keller
- Tiefgarage
- Balkon (gesamt 1 m²)
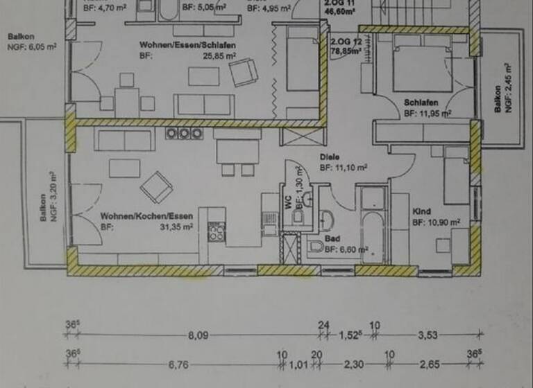
Grundrisse
Grundrisse
1 / 1
Realisiere Dein Projekt
Bausubstanz und Energie
Energieausweis
- Baujahr2015
- Zustand der Immobilieneuwertig
- HeizungsartZentralheizung
- EnergieträgerGas
Mietkosten
Warmmiete
2.600 €
Kaltmiete
29,75 €/m²
2.350 €
Nebenkosten
250 €
Kaution
4975 €
Lage

Bad Wiessee (83707)
Der Anbieter hat die genaue Adresse nicht freigegeben
Weitere Services
Lust auf eine Besichtigung?
Eine Frage zur Immobilie?
Über den Eigentümer
DorotheaPrivater Anbieter
Online-ID: 26DH14XBFPRT
Dorothea
Wie zufrieden bist du mit dieser Seite (nicht mit der Immobilie selbst)?

