

Mehrfamilienhaus zum Kauf • als Kapitalanlage geeignet449500 €1.850 €/m²9 Zimmer • 243 m² • 627 m² Grundstück
449500 €
1.850 €/m²
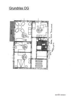
9 Zimmer • 243 m² • 627 m² Grundstück
Gepflegtes Mehrfamilienhaus in bester Lage, Pettstadt, 3-Parteien, 4 Garagen, ca. 245 qm. Wohnfläche, voll vermietet
Merkmale
- Bezug: nach Vereinbarung
- 3 Geschosse
- 627 m² Grundstück
- Einbauküche
- Keller
- 4 Stellplätze
- Gäste-WC
Realisiere Dein Projekt
Bausubstanz und Energie
Energieausweis
- Baujahr1966
- Zustand der Immobilierenoviert / saniert
- HeizungsartZentralheizung
- EnergieträgerÖl
Preisdetails
Kaufpreis
449500 €
1.849,79 €/m²
Provision für Käufer
3,57% aus dem Kaufpreis inkl. ges. MwSt. fällig nach notariellem
Kauf.
Kauf.
Geschätzte Gesamtkosten
490.271 €1
Kaufpreis
449.500 €
Kaufnebenkosten
40.771 €
2Notarkosten (1,5%)
6.743 €
Grunderwerbsteuer (3,5%)
15.733 €
Provision für Käufer (3,57%)
16.047 €
Grundbucheintrag (0,5%)
2.248 €
1Der angezeigte Wert ist eine automatisch berechnete Schätzung von immowelt.
2Bei den Angaben handelt es sich um ortsübliche Werte. Individuelle Kosten können abweichen.
Lage

Kaulberg 11, Pettstadt (96175)
Weitere Informationen
Weitere Services
Lust auf eine Besichtigung?
Eine Frage zur Immobilie?
Über den Anbieter
Weitere Unterlagen
Online-ID: 26dj957

J.ZENKER IMMOBILIEN
Wie zufrieden bist du mit dieser Seite (nicht mit der Immobilie selbst)?

