Wismar ist eine aufstrebende Stadt Mecklenburgs, die in den letzten zwei Jahrzehnten vor allem wirtschaftlich und kulturell auf sich aufmerksam machte.
Sie liegt unmittelbar an der Ostsee, zwischen den Städten Lübeck, Rostock und Schwerin. Die Stadt lebt das typische Flair einer alten Hansestadt mit einem Stadthafen und Fischmarkt. Die restaurierte Altstadt (UNESCO-Welterbe) mit seiner gastronomischen Vielfalt lädt zum Verweilen ein.
Das neu erschlossene Wohngebiet „Lübsche Burg Ost“ ist im Mietspiegel der Stadt mit einer guten Wohnlage (höchste Kategorie) ausgewiesen. Es liegt zentrumsnah, man gelangt von hier aus fußläufig, mit dem Rad oder den Nahverkehrsmitteln zügig in die Innenstadt. In unmittelbarer Nachbarschaft befinden sich der Bürgerpark (Gelände der Landesgartenschau 2002), der Tierpark und das Köppernitztal. Auch die Werft und die Hochschule sind innerhalb weniger Gehminuten erreicht.
In der Nähe befinden sich zahlreiche Einkaufsmöglichkeiten, zwei Ärztehäuser und soziale Einrichtungen (Kitas, Pflegezentrum für Senioren) sowie das Phantechnikum und das Wonnemar (Spaßbad mit Saunawelt und Sportangeboten).
Das in 2020 fertiggestellte Mehrfamilienhaus verfügt über vier modern und individuell geschnittene Wohnungen.
Das Haus steht am grünen Rand des Wohngebietes, direkt angrenzend an das Köppernitztal. Die interessanten Grundrisse der Wohneinheiten eignen sich u.a. für Familien oder Menschen, die einfach etwas mehr Platz zum Leben wollen. Auch das Mehrgenerationen-Wohnen kann hier realisiert werden. Für Fahrräder und Kinderwagen gibt es einen separat zugänglichen Abstellraum im Erdgeschoss. PKW-Stellplätze stehen selbstverständlich zur Verfügung.
Alle Räumlichkeiten bieten durch die Fenster ausreichend Tageslicht. Die Böden sind mit Fliesen belegt. Jede Wohneinheit ist mit einem Abstellraum ausgestattet und verfügt über ein zusätzliches Gäste-WC oder sogar ein zweites Vollbad. Terrasse bzw. Balkone runden die Grundrisse ab. In allen Wohnungen ist modernstes Internet verfügbar (Glasfaser mit 1.000 Mbit/s möglich).
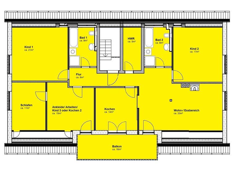
Die Vorzüge dieser Wohnung liegen auf der Hand: sie ist großzügig geplant und verfügt über fünf Räume unterschiedlicher Größen sowie über eine etwa 15m² große Küche, die mit einer modernen Einbauküche (ohne Kühlschrank!) ausgestattet ist. Die bodentiefen Fenster in Westrichtung sorgen für eine lichtdurchflutete Atmosphäre. Die drei Dachfenster sind mit einer Außenjalousie ausgestattet. Von drei Räumen kann der große Balkon erreicht werden. Der Gaskamin ermöglicht aufgrund seiner unkomplizierten Bedienung jederzeit ein besonders gemütliches Flair. Auch gehören zwei Vollbäder jeweils mit WC, ebenerdiger und geräumiger Dusche sowie Badewanne zu den Annehmlichkeiten. Außerdem bieten zwei kleine Türen in den Abseiten zusätzlichen Stauraum.
Die Kaltmiete beträgt 1.600€ pro Monat.
Je nach Belegung sind zusätzliche Kosten für Heizung und Betriebskosten in Höhe von ca. 450€ zu erwarten.
Die Warmmiete beträgt also min. 2.050€/ Monat.
Bei Interesse melden Sie sich bitte mit vollständigem Namen, einer Telefonnnummer sowie einer kurzen Beschreibung der Mietinteressenten.
Merkmale
frei ab sofort
Dachgeschoss, 2. Geschoss/3 Geschossen
Einbauküche
Außen-Stellplatz
Balkon (gesamt 16 m²)
Garten
Nicht möbliert
2 Badezimmer
Grundrisse
Grundrisse
1 / 2
Realisiere Dein Projekt
Bausubstanz und Energie
Energieausweis
A
Baujahr2020
Zustand der ImmobilieGepflegt
EnergieträgerGas
Mietkosten
Warmmiete
2.050 €
Kaltmiete
11,11 €/m²
1.600 €
Nebenkosten
450 €
Heizkosten
in Nebenkosten enthalten
Zusätzliche Kosten
Miete pro Stellplatz
40 €
Kaution
4800 €4.800 €
Lage
Wismar-West, Wismar (23966)
Der Anbieter hat die genaue Adresse nicht freigegeben
Weitere Services
Lust auf eine Besichtigung?
Eine Frage zur Immobilie?
Über den Eigentümer
Privater Anbieter
Keine Telefonnummer hinterlegt
Keine Telefonnummer hinterlegt
Online-ID: 26EW92WLW7N4
Privater Anbieter
Wie zufrieden bist du mit dieser Seite (nicht mit der Immobilie selbst)?