Version: 8.25.1Navigation überspringen
2.400 €
6 Zimmer  •  200 m²  •  Geschoss 3/4  •  frei ab sofort
Immowelt logo

Penthouse zur Miete
2.400 €
6 Zimmer  •  200 m²  •  Geschoss 3/4  •  frei ab sofort

Traumhaftes 200qm Maisonette-Penthouse in ruhiger Bestlage Haunstetten-Nord

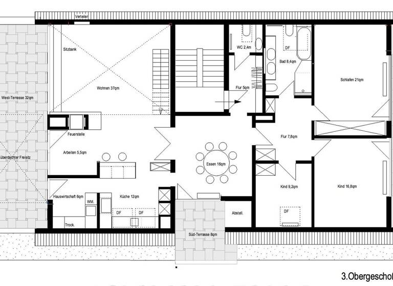
Unter dem gesamten bergenden Satteldach des klar und zeitlos gestalteten, gepflegten Wohnhauses aus den 70er-Jahren verbirgt sich diese einzigartige lichtdurchflutete Wohnung, die den Begriff Penthouse wirklich verdient. Hier lebt es sich tatsächlich wie in einem Haus. Die Hauptebene: Der geniale Grundriss vereinbart selten zu findende Funktionalität mit vernünftiger Großzügigkeit. Der strikt abgetrennte Schlaftrakt mit 2-3 Schlafzimmern nach Osten zur Morgensonne garantiert absolute Ruhe und Intimität. Das luxuriöse Bad verwöhnt die Sinne. Der imposante, bis zu 5m hohe Wohnraum, raumhoch verglast nach Westen. besticht durch seine bergende Zeltform und den weiten Blick über die Dachterrasse bis zum Stadion und die westlichen Wälder. Zentral zwischen Wohn- und Schlafbereich der Eingang sowie das leuchtende Esszimmer samt Südterrasse als funktionalem Dreh-und Angelpunkt und kommunikativem Zentrum des Familienlebens. Die sonnige Küche mit angeschlossenem Hauswirtschaftsraum öffnet sich zum Wohnraum, ist aber dennoch räumlich klar ablesbar und bei Bedarf temporär zu schliessen. Die grossen Dachfenster lassen die Sonne tief in den Wohnraum dringen. Die ganztägige Lichtqualität dieser Wohnung ist wirklich einzigartig. Die obere Ebene: Über dem bis unter das Dach reichenden Wohnraum thront die Galerie, die sich als Arbeitszimmer oder Bibliothek mit weitem Blick über die Dächer anbietet. Die Treppe des Wohnraumes erschliesst zudem ein weiteres Highlight der Wohnung: ein intimes Apartment, komplett ausgestattet mit eigenem Duschbad, Schlafbereich mit Einbauschränken sowie großzügigem zeltartigen Wohnbereich. Die Räume erstrecken sich über den Esszimmer- und Schlafbereich bis zur Ostseite des Hauses. Die komplette Verglasung des Giebels bietet - wie schon im Wohnzimmer- einen weiten Blick über die Dächer und in den Himmel. Hier kann man sich auch gut ein Homeoffice, oder auch Meditations- oder Yogastudio vorstellen, das gelegentlich als Gästewohnung fungieren könnte. Ausstattung: - komplett ausgestattete moderne Einbauküche mit viel Stauraum, - Hauswirtschaftsraum mit Platz für Waschmaschine und Trockner -neues Masterbad in fugenloser Mikrozement-Spachteltechnik, samtweichen Jura-Marmor und warmen Einbauten aus massiver Eiche - mit Dusche, Badewanne, Doppelwaschtisch, WC und Bidet -offener Kamin - Fußbodenheizung im Wohnraum, ansonsten Heizkörper - diverse Einbauschränke - Gäste-WC mit Fenster und großem Waschtisch -3 Terrassen nach Ost, Süd und West in Naturstein -überdachter Freisitz auf der 33qm großen Westterrasse -die Verglasung wurde größtenteils durch modernes Wärmedämmglas ersetzt. - Eichenparkett im Schlaftrakt - restliche Flächen der Hauptebene in Mikrozement - motorisch gesteuerte Aussenjalousien als Sonnenschutz - Viele Einbau-Deckenstrahler - Apartment im DG mit Wand-/Deckenheizung - motorisch betriebene Dachfenster samt Sonnenschutz - Einzelgarage samt Vorplatz = 2 Stellplätze Lage Die absolut ruhige Lage in Haunstetten-Nord ist bestechend: die Nähe zur Uni, die quasi vor dem Haus liegende Tram- und Bushaltestelle Haunstetten-Nord (20min. zum Königsplatz), der in 5 Min. fußläufig erreichbare Siebentischwald sowie vielfältige Einkaufsmöglichkeiten, die benachbarte Schule und Kindergarten sowie eine Reihe renommierter Restaurants decken viele Aspekte städtischen Lebens sowie der Freizeitgestaltung ab. Sonstiges Die Wohnung wird von privat vermietet. Bitte senden Sie Ihre Anfrage mit Beschreibung Ihrer Person, Arbeitsverhältnis sowie Gehaltsnachweis. Makleranfragen werden nicht beantwortet. Wir legen viel Wert auf ein partnerschaftliches, langfristiges Mietverhältnis.

Merkmale

  • Dachgeschoss, 3. Geschoss/4 Geschossen
  • Haustiere nach Absprache
  • Einbauküche
  • Keller
  • Garage
  • 3 Terrassen (gesamt 50 m²)
  • Nicht möbliert
  • 2 Badezimmer

Grundrisse

Grundrisse
1 / 1

Realisiere Dein Projekt

Bausubstanz und Energie

Energieausweis

Der Energieausweis wird bei Besichtigung nachgereicht.
  • Baujahr1974
  • Zustand der Immobilieneuwertig
  • HeizungsartZentralheizung
  • EnergieträgerGas
Immowelt logo

Mietkosten

Warmmiete
2.900 €
Kaltmiete
12 €/m²
2.400 €
Nebenkosten
500 €
Kaution
7200 €

Lage

address-icon
Carl-Hüber-Straße 7HaunstettenAugsburg (86179)

Weitere Services

Lust auf eine Besichtigung?
Eine Frage zur Immobilie?
Mit einer persönlichen Nachricht hast du bessere Chancen auf eine Antwort.
Mit der Nutzung der oben angegebenen Telefonnummer oder durch Klicken auf „Kontaktieren“ akzeptierst Du die Allgemeinen Nutzungsbedingungen, denen Du jederzeit widersprechen kannst. Weitere Informationen zum Datenschutz

Über den Eigentümer

AgnesPrivater Anbieter
Keine Telefonnummer hinterlegt
Keine Telefonnummer hinterlegt
Online-ID: 26G5RLBLMC7C
Agnes
Mit einer persönlichen Nachricht hast du bessere Chancen auf eine Antwort.
Mit der Nutzung der oben angegebenen Telefonnummer oder durch Klicken auf „Kontaktieren“ akzeptierst Du die Allgemeinen Nutzungsbedingungen, denen Du jederzeit widersprechen kannst. Weitere Informationen zum Datenschutz
Wie zufrieden bist du mit dieser Seite (nicht mit der Immobilie selbst)?