Version: 8.25.1Navigation überspringen
1.500 €
9 Zimmer  •  193 m²  •  895 m² Grundstück  •  frei ab 01.06.2026
Immowelt logo

Haus zur Miete
1.500 €
9 Zimmer  •  193 m²  •  895 m² Grundstück  •  frei ab 01.06.2026

Wohnhaus in Lüdersburg

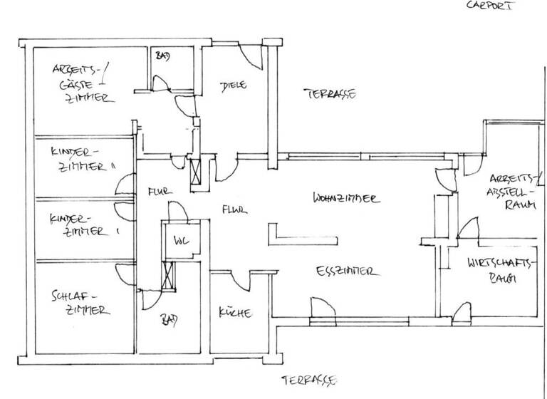
Das ungewöhliche Haus in Lüdersburg war einmal die Grundschule des schönen Ortes, der ideal für Familien ist. Dieses großzügige Einfamilienhaus bietet mit ca. 193 Quadratmetern Wohnfläche und insgesamt 9 Zimmern reichlich Platz zum Wohlfühlen. Es verfügt über 2 Badezimmer, eine Gäste-WC und 2 einladende Terrassen, perfekt für entspannte Stunden im Freien. Ein schöner Garten lädt zum Spielen ein. Carport und eine Stellfläche für Autos sind vorhanden. Die Umgebung bietet zahlreiche Vorteile. In der näheren Umgebung finden Sie eine Bushaltestelle mit verschiedenen Buslinien und eine Bahnstation ist im Nachbarort Echem hinter dem Golfplatz von Lüdersburg für den Verkehrsanschluss nach Hamburg schnell zu erreichen. Kindergarten, Golfplatz und die Kirche sind zu Fuß erreichbar. Grund- und weiterführende Schulen befinden sich in Nachbarorten. Dort gibt es auch zahlreiche Versorgungsmöglichkeiten. Das Haus wird seit 2025 über eine Wärmepumpe und einen wasserführenden Kamin beheizt. (Die Heizkosten sind nicht in der "Warmmiete" enthalten.) Ein altes Gartenhaus mit Gewächshaus werden auf dem Grundstück belassen. Auch das Küchenmobiliar und einige Geräte verbleiben im Haus.

Merkmale

  • frei ab 01.06.2026
  • 1 Geschoss
  • 895 m² Grundstück
  • Haustiere erlaubt
  • Einbauküche
  • Carport
  • Garten
  • 2 Terrassen (gesamt 40 m²)

Grundrisse

Grundrisse
1 / 2

Realisiere Dein Projekt

Bausubstanz und Energie

Energieausweis

Der Energieausweis wird bei Besichtigung nachgereicht.
  • EnergieträgerHolz, Luft-/Wasser-Wärmepumpe
Immowelt logo

Mietkosten

Warmmiete
1.620 €
Kaltmiete
7,77 €/m²
1.500 €
Nebenkosten
120 €
Zusätzliche Kosten
Heizkosten
Kaution
4500 €

Lage

address-icon
Eschenweg 1Lüdersburg (21379)

Weitere Services

Lust auf eine Besichtigung?
Eine Frage zur Immobilie?
Mit einer persönlichen Nachricht hast du bessere Chancen auf eine Antwort.
Mit der Nutzung der oben angegebenen Telefonnummer oder durch Klicken auf „Kontaktieren“ akzeptierst Du die Allgemeinen Nutzungsbedingungen, denen Du jederzeit widersprechen kannst. Weitere Informationen zum Datenschutz

Über den Eigentümer

RomanPrivater Anbieter
Keine Telefonnummer hinterlegt
Keine Telefonnummer hinterlegt
Online-ID: 26MXLXGWCAGM
Roman
Mit einer persönlichen Nachricht hast du bessere Chancen auf eine Antwort.
Mit der Nutzung der oben angegebenen Telefonnummer oder durch Klicken auf „Kontaktieren“ akzeptierst Du die Allgemeinen Nutzungsbedingungen, denen Du jederzeit widersprechen kannst. Weitere Informationen zum Datenschutz
Wie zufrieden bist du mit dieser Seite (nicht mit der Immobilie selbst)?