

Wohnung zur Miete950 €3,5 Zimmer • 79 m² • Geschoss 3/4 • frei ab 01.05.2026
950 €
3,5 Zimmer • 79 m² • Geschoss 3/4 • frei ab 01.05.2026
Attraktive 3 ½ Zimmer Wohnung mit Südbalkon & Stellplatz in der Innenstadt Tiengen
Merkmale
- frei ab 01.05.2026
- Dachgeschoss, 3. Geschoss/4 Geschossen
- Haustiere nach Absprache
- Einbauküche
- Keller
- Außen-Stellplatz
- Balkon (gesamt 6 m²)
- Nicht möbliert
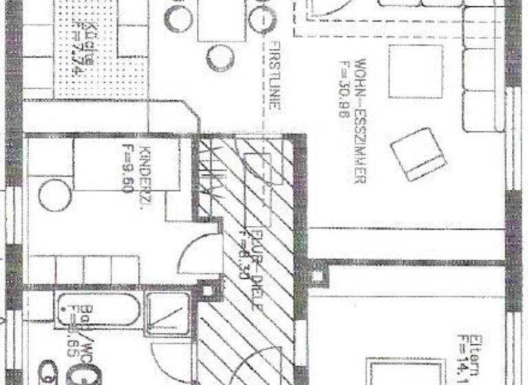
Grundrisse
Grundrisse
1 / 1
Realisiere Dein Projekt
Bausubstanz und Energie
Energieausweis
C
- Zustand der ImmobilieGepflegt
- Heizungsartindividuell
- EnergieträgerGas
Mietkosten
Warmmiete
1.150 €
Kaltmiete
12,03 €/m²
950 €
Nebenkosten
200 €
Miete pro Stellplatz
in Warmmiete enthalten
Zusätzliche Kosten
Heizkosten
Kaution
2850 €
Lage

Tiengen, Waldshut-Tiengen (79761)
Der Anbieter hat die genaue Adresse nicht freigegeben
Weitere Services
Lust auf eine Besichtigung?
Eine Frage zur Immobilie?
Über den Eigentümer
Privater Anbieter
Keine Telefonnummer hinterlegt
Keine Telefonnummer hinterlegt
Online-ID: 26S72UBLITMT
Privater Anbieter
Wie zufrieden bist du mit dieser Seite (nicht mit der Immobilie selbst)?

