

Wohnung zur Miete1.245 €5,5 Zimmer • 141 m² • Geschoss 1/2 • frei ab sofort
1.245 €
5,5 Zimmer • 141 m² • Geschoss 1/2 • frei ab sofort
5 1/2 Zi-Whg., in Bogen, 1.OG, Balkon, im Grünen, ruhig
Merkmale
- Dachgeschoss, 1. Geschoss/2 Geschossen
- Haustiere nach Absprache
- Einbauküche
- Garage, Außen-Stellplatz
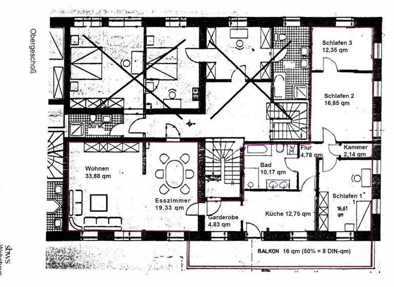
- Balkon (gesamt 16 m²)
- Garten
- Nicht möbliert
- Badezimmer
Grundrisse
Grundrisse
1 / 1
Realisiere Dein Projekt
Bausubstanz und Energie
Energieausweis
D
- Zustand der Immobilieneuwertig
- HeizungsartZentralheizung
- EnergieträgerGas
Mietkosten
Warmmiete
1.425 €
Kaltmiete
8,83 €/m²
1.245 €
Nebenkosten
180 €
Heizkosten
in Nebenkosten enthalten
Miete pro Stellplatz
45 €
Kaution
3700 €
Lage

Ödhof 3, Bogenberg, Bogen (94327)
Weitere Services
Lust auf eine Besichtigung?
Eine Frage zur Immobilie?
Über den Eigentümer
ThomasPrivater Anbieter
Keine Telefonnummer hinterlegt
Keine Telefonnummer hinterlegt
Online-ID: 26UAK1U9VV3I
Thomas
Wie zufrieden bist du mit dieser Seite (nicht mit der Immobilie selbst)?

