

Villa zum Kauf - Erstbezug1490000 €12.482 €/m²4 Zimmer • 129,8 m² • 275 m² Grundstück
1490000 €
12.482 €/m²
4 Zimmer • 129,8 m² • 275 m² Grundstück
Unique living in Döbling
Merkmale
- Bezug: Q4 2023
- 275 m² Grundstück
- Kein Keller
- Carport
- Balkon
- Terrasse
- voll klimatisiert
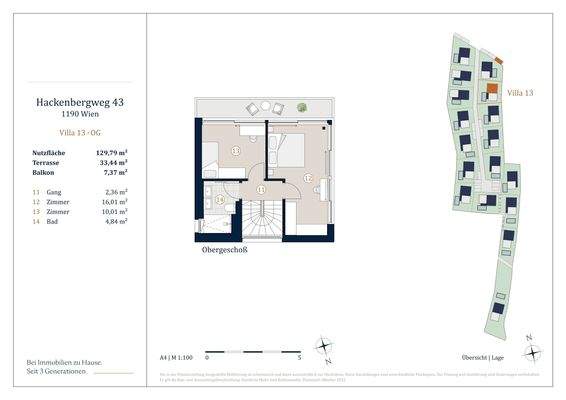
Grundrisse
Verschaffe dir einen genauen Überblick über die Raumaufteilung.

Realisiere Dein Projekt
Bausubstanz und Energie
Heizwärmebedarf (HWB)
B
Gesamtenergieeffizienz (fGEE)
- Baujahr2022
- Zustand der ImmobilieErstbezug
- HeizungsartFußbodenheizung
- EnergieträgerLuft-/Wasser-Wärmepumpe
Preisdetails
Kaufpreis
1490000 €
12.481,70 €/m²
Provision für Käufer
3% des Kaufpreises zzgl. 20% USt.
Weitere Preisinformationen
1 Carportplatz
Lage

Wien (1190)
Der Anbieter hat die genaue Adresse nicht freigegeben
Weitere Informationen
Weitere Services
Lust auf eine Besichtigung?
Eine Frage zur Immobilie?
Über den Anbieter
Online-ID: 23QXNADGGWFR
Referenznummer: IVW-22-04656/13

OTTO Immobilien
Bewertung: 4,8 von 5 Sternen
Wie zufrieden bist du mit dieser Seite (nicht mit der Immobilie selbst)?

