

Wohnung zur Miete440 €3 Zimmer • 68 m² • Geschoss 2/3 • frei ab 01.05.2026
440 €
3 Zimmer • 68 m² • Geschoss 2/3 • frei ab 01.05.2026
Helle Drei-Zimmer-Wohnung im Dachgeschoss mit 68 qm und Garten
Merkmale
- frei ab 01.05.2026
- Dachgeschoss, 2. Geschoss/3 Geschossen
- Haustiere nach Absprache
- Einbauküche
- Keller
- Außen-Stellplatz
- Garten
- Nicht möbliert
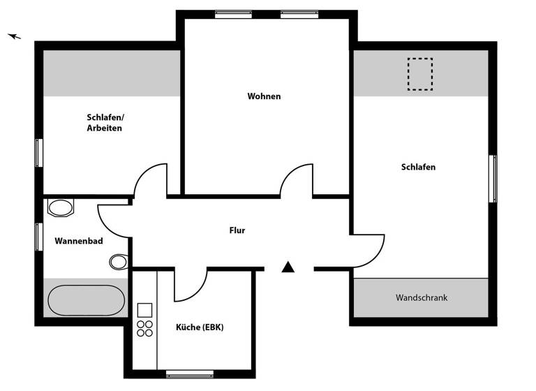
Grundrisse
Grundrisse
1 / 1
Realisiere Dein Projekt
Bausubstanz und Energie
Energieausweis
- Zustand der ImmobilieGepflegt
- Heizungsartindividuell
- EnergieträgerGas
Mietkosten
Warmmiete
580 €
Kaltmiete
6,47 €/m²
440 €
Nebenkosten
140 €
Miete pro Stellplatz
in Warmmiete enthalten
Zusätzliche Kosten
Heizkosten
Kaution
1320 €
Lage

Greene, Einbeck (37574)
Der Anbieter hat die genaue Adresse nicht freigegeben
Weitere Services
Lust auf eine Besichtigung?
Eine Frage zur Immobilie?
Über den Eigentümer
Privater Anbieter
Keine Telefonnummer hinterlegt
Keine Telefonnummer hinterlegt
Online-ID: 26XYESCI2G71
Privater Anbieter
Wie zufrieden bist du mit dieser Seite (nicht mit der Immobilie selbst)?

