




Einfamilienhaus zum Kauf178000 €1.348 €/m²5 Zimmer • 132 m² • 1.181 m² Grundstück
178000 €
1.348 €/m²
5 Zimmer • 132 m² • 1.181 m² Grundstück
idyllisches Einfamilienhaus in Kemberg OT Schleesen - Wohnen direkt am Waldrand
Merkmale
- 1.181 m² Grundstück
- Keller
- Carport, Tiefgarage
- Gäste-WC
- Terrasse
- Bad mit Dusche
- Bodenbelag: Fliesen, Holzdielen, Laminat
- Fenster: Kunststoff
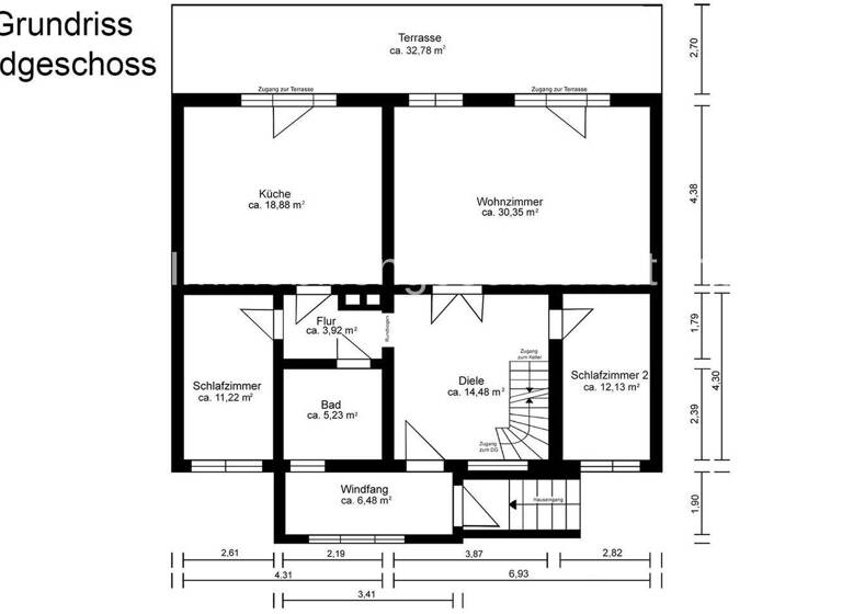
Grundrisse
Grundrisse
1 / 3
Realisiere Dein Projekt
Bausubstanz und Energie
Energieausweis
E
- Baujahr1983
- Zustand der ImmobilieGepflegt
- EnergieträgerÖl
Preisdetails
Kaufpreis
178000 €
1.348,48 €/m²
Provision für Käufer
Die Provision beträgt 3,5 % vom Kaufpreis (zzgl. der geltenden MwSt.).
Geschätzte Gesamtkosten
196.690 €1
Kaufpreis
178.000 €
Kaufnebenkosten
18.690 €
2Notarkosten (1,5%)
2.670 €
Grunderwerbsteuer (5%)
8.900 €
Provision für Käufer (3,5%)
6.230 €
Grundbucheintrag (0,5%)
890 €
1Der angezeigte Wert ist eine automatisch berechnete Schätzung von immowelt.
2Bei den Angaben handelt es sich um ortsübliche Werte. Individuelle Kosten können abweichen.
Lage

Schleesen, Kemberg (06901)
Der Anbieter hat die genaue Adresse nicht freigegeben
Weitere Informationen
Weitere Services
Lust auf eine Besichtigung?
Eine Frage zur Immobilie?
Über den Anbieter
Heinz-Röttger-Straße 10, 06846 Dessau
10 Jahre Partnerschaft

Herr Paul-Ludwig BlümelDein Kontakt
Weitere Unterlagen
Online-ID: 26FYFRKNHK2P
Referenznummer: 2043
Wie zufrieden bist du mit dieser Seite (nicht mit der Immobilie selbst)?




