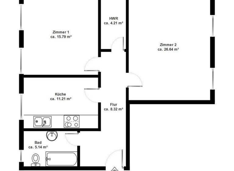
Die zu Verkauf stehende Eigentumswohnung mit effizientem Grundriss, befindet sich in der obersten Etage einer gepflegten Wohnanlage im beliebten Hamburger Stadtteil Ohlsdorf . Die ca. 71 m² Wohnfläche verteilen sich auf 2 Zimmer und befinden sich im dritten Obergeschoss eines im Jahre 1928 errichteten und denkmalgeschützten Wohnensembles. Die Eigentümergemeinschaft besteht aus 137 Wohneinheiten, aufgeteilt auf drei Flurstücke mit einer Grundstücksgröße von insgesamt ca. 8.699 m². Neben dem großen Wohn- und Esszimmer, steht ein Schlafzimmer, eine separate Küche, ein Wannenbad sowie ein Hauswirtschaftsraum zur Verfügung. Die Wohnung wird im vermieteten Zustand verkauft. Das Mietverhältnis besteht seit 2007 und wird übernommen. Die Nettomieteinnahmen betragen € 7.728,00 / Jahr. Im Mietvertrag ist keine Regelung zur Mieterhöhung vereinbart - dementsprechend greift die gesetzliche Regelung. Das Wohngeld liegt aktuell bei 311 € pro Monat. Weiterführende Unterlagen, wie die Protokolle der Eigentümerversammlung, Abrechnungen und die TE lassen wir Ihnen gerne auf Wunsch nach einer Besichtigung zukommen.
Merkmale
Bezug: vermietet
vermietet
3. Geschoss
Einbauküche
Badezimmer: Badewanne, Bad mit Fenster
Bodenbelag: Fliesen, Laminat
Denkmalschutz-Afa
Die gesamte Wohnanlage präsentiert sich insgesamt als modern und sehr gepflegt. Das Gebäude wird über eine Gaszentralheizung aus dem Jahr 2022 mit Wärme und Warmwasser versorgt.
Diese helle 2-Zimmer-Wohnung auf der Endetage umfasst u.a. ein Wannenbad mit Tageslicht, eine Einbauküche mit Sitzmöglichkeit sowie ein geräumiges Schlafzimmer und ein Wohn-Esszimmer. Elektrik, Leitungen sowie das Badezimmer als auch Böden und Wände datieren eines älteren Baujahres. Die Küche und die Bäder sind gefliest. Renovierungsarbeiten innerhalb der Immobilie fanden in den letzten Jahren nicht statt. Die doppelverglasten Kunststofffenster stammen aus 2008.
Die Wohnung ist mit 71 m² sehr großzügig geschnitten und bietet viel Potential. Stauraum bietet ein Abstellraum in der Wohnung sowie ein Kellerraum, der zu diesem Objekt zählt.
Grundrisse
Grundrisse
1 / 1
Realisiere Dein Projekt
Bausubstanz und Energie
Der Anbieter hat keine Informationen zum Energieverbrauch bereit gestellt.
Baujahr2022
Zustand der ImmobilieGepflegt
Preisdetails
Kaufpreis
265000 €265.000 €
3.489,35 €/m²
Hausgeld
311 €311 €
Provision für Käufer
3,57 % inkl. MwSt.
Geschätzte Gesamtkosten
294.335 €1
Kaufpreis
265.000 €
Kaufnebenkosten
29.335 €
2
Notarkosten (1,5%)
3.975 €
Grunderwerbsteuer (5,5%)
14.575 €
Provision für Käufer (3,57%)
9.460 €
Grundbucheintrag (0,5%)
1.325 €
1Der angezeigte Wert ist eine automatisch berechnete Schätzung von immowelt.
2Bei den Angaben handelt es sich um ortsübliche Werte. Individuelle Kosten können abweichen.
Lage
Ohlsdorf, Hamburg (22337)
Der Anbieter hat die genaue Adresse nicht freigegeben
Die Immobilie befindet sich im beliebten Hamburger Stadtteil Ohlsdorf. Das Wohnensemble "Im Grünen Grunde 3a bis 6" bilden ein nach Osten offenes "U" mit einem gepflegten, grünen Innenhof und werden im Westen L-förmig vom Justus-Strandes-Weg 5 bis 8, parallel zum Alsterlauf, ergänzt. Die kurzen Wege zum Eppendorfer Moor oder zum Stadtpark unterstreichen den hohen Freizeitwert dieser wassernahen Lage. Ohlsdorf bietet darüber hinaus eine gute Infrastruktur. Einkaufsmöglichkeiten des täglichen Bedarfs, Schulen, Ärzte und teils ausgezeichnete Restaurants befinden sich im näheren Umfeld, beispielsweise direkt in der Alsterdorfer Straße, am Alsterdorfer Markt sowie in den nahe gelegenen Stadtteilen Winterhude und Eppendorf. Eine gute Anbindung an den ÖPNV ist hier gegeben. Eine Haltestelle der Buslinien 172, 174, 179 und 274 befindet sich in kurzer Entfernung und auch die S/U-Bahn-Station "Ohlsdorf" (S1, S11 und U1) ist fußläufig in ca. 3 Minuten erreichbar.
Weitere Informationen
Sonstiges
Energieausweis: Angaben nach GEG: Nach § 79 Abs. 4 GEG können Baudenkmäler und Gebäude mit sonstiger besonders erhaltenswerter Bausubstanz generell von der Anwendung des GEG 2020 ausgenommen werden.
Stichworte
Anzahl der Badezimmer: 1, Bundesland: Hamburg, 3 Etagen, Distanz zum Kindergarten: 0.20, Distanz zur Grundschule: 0.50, Distanz zum Gymnasium: 0.60, Distanz zum Flughafen: 2.90, Distanz zur Autobahn: 6.90, Distanz zu U-/S-Bahn: 0.40, Distanz zum Bus: 0.40, Distanz vom Zentrum: 8.30