


1 / 58



1 / 58
Lagerhalle zum Kauf1396 Euro pro Quadratmeter1.396 €/m²1.550 m² Lagerfläche
1396 Euro pro Quadratmeter1.396 €/m²
1.550 m² Lagerfläche
VHB // Hochwertiger und Ansprechender Gewerbestandort mit Halle, Showroom, Büro & Außenfläche | Tweelbäke | Oldenburg
Sie sind auf der Suche nach einem neuen Gewerbe-Standort für Ihr Unternehmen? Sie suchen etwas hochwertiges und architektonisch Ansprechendes in guter Lage? Dazu benötigen Sie einen guten Mix aus Büro, Showroom und Lagerflächen? Dann ist diese Gewerbeimmobilie im Oldenburger Stadtteil Tweelbäke vielleicht schon genau das Richtige für Sie!
Wir verkaufen hier eine Liegenschaft, die nicht nur mit ihrer äußeren Anmutung punkten kann. Auf einem insgesamt ca. 3.533 großen Grundstück ist in 2014 diese durchdachte und vielseitig Nutzbare Immobilie mit insgesamt ca. 1.550 m² nutzbarer Fläche entstanden.
Von der Straße fällt einem direkt das ca. 9 Meter hohe, gestalterisch prägende, Treppenhaus ins Auge, welches Kunden und Mitarbeiter mit seiner voll verglasten Front zum Eintreten einlädt. Der kubistisch gestaltete Straßenbereich und die dahinter gelegenen Gebäudekörper unterstreichen den gepflegten Gesamteindruck.
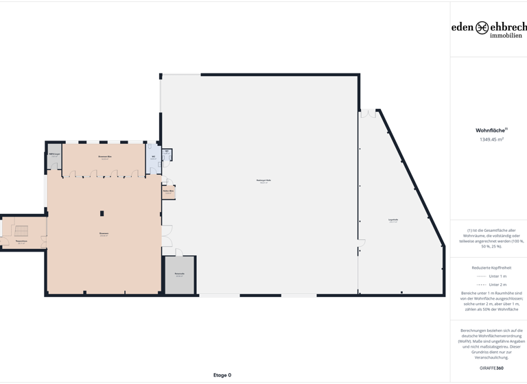
Der vordere Gebäudekörper ist besonders interessant für Unternehmen, die Ihre Waren und Produkte in dem über 250 m² großen Showroom präsentieren möchten. Mit ca. 5 Meter Deckenhöhe bietet der Raum eine ideale Grundlage, um verschiedenste Angebote ins perfekte Licht zu rücken! Auch ihr Vertriebs-Team findet hier direkt seinen Platz. Im vollverglasten ca. 50 m² großen Büroteil können Ihre Mitarbeiter Aufträge direkt nach dem Kundengespräch ins System eingeben. Zur Bewirtung finden Sie hier natürlich auch eine kleine Küchenzeile mit Bartresen, sowie ein großzügiges WC. Im vorderen Bereich finden Sie dann auch noch den Hausanschlussraum. Hier befindet sich neben Strom-, Gas- und Telefonanschluss auch die Brandmelde-Zentrale, die das gesamte Gebäude überwacht. Dazu finden Sie hier noch ausreichend Platz für Getränke & Co., um Ihre Mitarbeiter und Gäste zu versorgen.
Um möglichst flexibel in der Warenpräsentation zu sein oder auch, um den Showroom ggf. anderweitig zu nutzen, schließt sich der erste Hallenbereich über eine zweiflügelige 3 x 3 Meter große Brandschutztür an. Einen weiteren Hallenzugang finden Sie im Bürobereich.
Der erste Hallenbereich verfügt über eine Größe von ca. 767 m² mit einer Höhe von ca. 6 Metern. Die Halle ist mit einem mit 5 Tonnen Punkt- und Spitzlast belastbaren Industrieboden ausgelegt. Insgesamt finden Sie hier derzeit 3 Reihen fast deckenhohe Hochregallager mit 2 Regalböden. In der Fläche finden Sie noch ein ca. 20 m² großes "Fotostudio", wo neu eingetroffene Waren und Produkte direkt für den Vertrieb aufgenommen werden können. Dazu gibt es selbstverständlich noch ein Büro für den Hallenmeister, sowie ein WC. Hauptzugang zu Halle bietet das 5 x 4,5 Meter große Sektionaltor. Ein weiteres, gleichgroßes Sektionaltor bietet Ihnen im hinteren Hallenbereich Zugang zum zweiten Hallenbereich.
Der zweite Hallenbereich wurde angebaut, nachdem weitere Lagerflächen benötigt wurden. Die Halle hat eine Größe von ca. 210 m² und eine Deckenhöhe von ca. 7 Metern. Da hier kein weiteres Hochregal untergebracht werden sollte, wurde hier ein belastbarer Boden mit Pflastersteinen hergestellt. Von der Halle haben Sie Zugang zu dem hinter der Halle gelegenen, eingezäunten Außenbereich. Dieser hat eine Größe von mehreren hundert Quadratmetern und bietet Lagerflächen in dem gepflasterten Bereich oder weiteres Potenzial auf den jetzigen Rasenflächen.
Die eingezäunte Außenfläche ist auch von der ca. 1.800 m² großen Pflasterfläche zugänglich. Der gepflasterte Außenbereich dient als Rangier- und Verkehrsfläche und bietet dazu 10 PKW-Außenstellplätze für Mitarbeiter und Kunden.
Zu guter Letzt stehen Ihnen im 1. Obergeschoss des Gebäudes noch ca. 149 m² Bürofläche zur Verfügung. Hier finden Sie in der derzeitigen Aufteilung 4 Büroräume, einen Konferenzraum, Küche, Technikraum, sowie Damen- und Herren-WC. Das Obergeschoss verfügt in den Flurbereichen über 2 Klima-Splitgeräte, so dass die Flächen bei hohen Außentemperaturen entsprechend runtergekühlt werden können. Ein zusätzliches Highlight ist sicherlich die ca. 60 m² große Dachterrasse, die für Meetings oder Pausen zum entspannten Verweilen einlädt.
Alles in Allem, ein wirklich ansprechendes, modernes und gepflegtes Gewerbeobjekt, welches Ihnen einen hervorragenden, neuen Standort für Ihr Unternehmen bietet.
/// HINWEIS ÜBERWEGUNGSRECHT
Die Liegenschaft wird mit einem dinglich eingetragenen Überwegungsrecht verkauft. Den Eigentümern gehört noch eine Halle auf dem Nachbargrundstück links. Diese ist für bestimmte Anlieferungen nur über die Rangierfläche dieser Liegenschaft erreichbar. Das sollte aber grundsätzlich zu keinen Einschränkungen führen.
Wir verkaufen hier eine Liegenschaft, die nicht nur mit ihrer äußeren Anmutung punkten kann. Auf einem insgesamt ca. 3.533 großen Grundstück ist in 2014 diese durchdachte und vielseitig Nutzbare Immobilie mit insgesamt ca. 1.550 m² nutzbarer Fläche entstanden.
Von der Straße fällt einem direkt das ca. 9 Meter hohe, gestalterisch prägende, Treppenhaus ins Auge, welches Kunden und Mitarbeiter mit seiner voll verglasten Front zum Eintreten einlädt. Der kubistisch gestaltete Straßenbereich und die dahinter gelegenen Gebäudekörper unterstreichen den gepflegten Gesamteindruck.
Der vordere Gebäudekörper ist besonders interessant für Unternehmen, die Ihre Waren und Produkte in dem über 250 m² großen Showroom präsentieren möchten. Mit ca. 5 Meter Deckenhöhe bietet der Raum eine ideale Grundlage, um verschiedenste Angebote ins perfekte Licht zu rücken! Auch ihr Vertriebs-Team findet hier direkt seinen Platz. Im vollverglasten ca. 50 m² großen Büroteil können Ihre Mitarbeiter Aufträge direkt nach dem Kundengespräch ins System eingeben. Zur Bewirtung finden Sie hier natürlich auch eine kleine Küchenzeile mit Bartresen, sowie ein großzügiges WC. Im vorderen Bereich finden Sie dann auch noch den Hausanschlussraum. Hier befindet sich neben Strom-, Gas- und Telefonanschluss auch die Brandmelde-Zentrale, die das gesamte Gebäude überwacht. Dazu finden Sie hier noch ausreichend Platz für Getränke & Co., um Ihre Mitarbeiter und Gäste zu versorgen.
Um möglichst flexibel in der Warenpräsentation zu sein oder auch, um den Showroom ggf. anderweitig zu nutzen, schließt sich der erste Hallenbereich über eine zweiflügelige 3 x 3 Meter große Brandschutztür an. Einen weiteren Hallenzugang finden Sie im Bürobereich.
Der erste Hallenbereich verfügt über eine Größe von ca. 767 m² mit einer Höhe von ca. 6 Metern. Die Halle ist mit einem mit 5 Tonnen Punkt- und Spitzlast belastbaren Industrieboden ausgelegt. Insgesamt finden Sie hier derzeit 3 Reihen fast deckenhohe Hochregallager mit 2 Regalböden. In der Fläche finden Sie noch ein ca. 20 m² großes "Fotostudio", wo neu eingetroffene Waren und Produkte direkt für den Vertrieb aufgenommen werden können. Dazu gibt es selbstverständlich noch ein Büro für den Hallenmeister, sowie ein WC. Hauptzugang zu Halle bietet das 5 x 4,5 Meter große Sektionaltor. Ein weiteres, gleichgroßes Sektionaltor bietet Ihnen im hinteren Hallenbereich Zugang zum zweiten Hallenbereich.
Der zweite Hallenbereich wurde angebaut, nachdem weitere Lagerflächen benötigt wurden. Die Halle hat eine Größe von ca. 210 m² und eine Deckenhöhe von ca. 7 Metern. Da hier kein weiteres Hochregal untergebracht werden sollte, wurde hier ein belastbarer Boden mit Pflastersteinen hergestellt. Von der Halle haben Sie Zugang zu dem hinter der Halle gelegenen, eingezäunten Außenbereich. Dieser hat eine Größe von mehreren hundert Quadratmetern und bietet Lagerflächen in dem gepflasterten Bereich oder weiteres Potenzial auf den jetzigen Rasenflächen.
Die eingezäunte Außenfläche ist auch von der ca. 1.800 m² großen Pflasterfläche zugänglich. Der gepflasterte Außenbereich dient als Rangier- und Verkehrsfläche und bietet dazu 10 PKW-Außenstellplätze für Mitarbeiter und Kunden.
Zu guter Letzt stehen Ihnen im 1. Obergeschoss des Gebäudes noch ca. 149 m² Bürofläche zur Verfügung. Hier finden Sie in der derzeitigen Aufteilung 4 Büroräume, einen Konferenzraum, Küche, Technikraum, sowie Damen- und Herren-WC. Das Obergeschoss verfügt in den Flurbereichen über 2 Klima-Splitgeräte, so dass die Flächen bei hohen Außentemperaturen entsprechend runtergekühlt werden können. Ein zusätzliches Highlight ist sicherlich die ca. 60 m² große Dachterrasse, die für Meetings oder Pausen zum entspannten Verweilen einlädt.
Alles in Allem, ein wirklich ansprechendes, modernes und gepflegtes Gewerbeobjekt, welches Ihnen einen hervorragenden, neuen Standort für Ihr Unternehmen bietet.
/// HINWEIS ÜBERWEGUNGSRECHT
Die Liegenschaft wird mit einem dinglich eingetragenen Überwegungsrecht verkauft. Den Eigentümern gehört noch eine Halle auf dem Nachbargrundstück links. Diese ist für bestimmte Anlieferungen nur über die Rangierfläche dieser Liegenschaft erreichbar. Das sollte aber grundsätzlich zu keinen Einschränkungen führen.
Merkmale
- Bezug: Nach Vereinbarung
- Einbauküche
- 10 Stellplätze: 10 Außen-Stellplätze
- Raumaufteilung flexibel
- voll klimatisiert
- Bodenbelag: Fliesen, Kunststoff, Granit, Stein, Teppich
Unsere Fotodokumentation in Verbindung mit der 360° Tour gibt Ihnen bereits einen ersten Eindruck darüber, wie hochwertig, modern und gepflegt diese Liegenschaft geplant, errichtet und betrieben wird. Dazu finden Sie hier die wichtigsten technischen Informationen und Ausstattungsmerkmale.
/// Die wichtigsten Ausstattungsmerkmale im Überblick
Grundsätzlich verfügt das Objekt über eine gehobene Ausstattung mit Klimageräten im oberen Büro, Einbauküchen oben und unten, exklusiven Beleuchtungskörpern im Treppenhaus, Brandmeldeanlage, Kameraüberwachung, Außenjalousien inklusive E-Anrieb, LED-Beleuchtung, hochwertigen Sanitäranlagen uvm..
- Baujahr: 2014
- Büro & Showroom: Massivbau
- Büro: mit Klimaanlage, Einbauküche & WCs
- Showroom: mit Büros, Einbauküche & WC
- Büro & Showroom: Massivbau
- Lagerhallen: Sandwich-Paneele mit Dämmung
- Lagerhallen: mit Heizung, elektrischen Rolltoren, Industrieboden
- Heizung: Gasheizung und Luft/Luft Heizung, inkl. Klimaanlage oben
- Beleuchtung: innen und außen mit LED-Leuchten ausgestattet
- Aussenstellplätze: 10
Der vordere Gebäudekörper, bestehend aus Treppenhaus, Showroom und Büro im Obergeschoss wurde in Massivbauweise errichtet. Die zum Parkplatz gelegene Fassade wurde in Teilen verklinkert, der Großteil mit Fassadenplatten in verschiedenen Ausführungen belegt.
/// Wandaufbau vorderer Gebäudekörper Links:
- 11,50 cm Verblender
- 16 cm Kerndämmung
- 17.50 cm KSA
- Stahlbetonstützen gemäß Statik
- mit umlaufendem Ringbalken
- 1,5 cm Putz
bzw.
/// Wandaufbau vorderer Gebäudekörper:
- Fassadenplatte auf UK
- 16 cm Kerndämmung bzw. Dämmung gemäß ENEV
- 17.50 cm KSA
- Stahlbetonstützen gemäß Statik
- mit umlaufendem Ringbalken
- 1,5 cm Putz
bzw.
/// Wandaufbau vorderer Gebäudekörper:
- Sandwichelemente WLG 045 d = 18 cm
- Verlegung waagerecht
- umlaufender Ringbalken gemäß Statik
- Betonstütze mit HTU Schiene - verzinkt - gemäß Statik
/// Dachaufbau vorderer Gebäudekörper:
- Abklebungen bzw. Terrassenbelag
- 20 cm Gefälledämmung
- Trapezblech gemäß Statik
- auf Stahlpfetten gemäß Statik
/// Bodenaufbau vorderer Gebäudekörper EG:
- GVG - Fugenlos-System-Polynet d = gemäß Statik
- Schotter 0-32 mm d = 20 cm
- Füllsand lagenweise verdichtet
/// Dachaufbau Lagerhallen
- Isodach WLG 045 d= 8cm
- Z-Profile gemäß Statik
- Stahlträger zur Aufnahme der Z -Profile
- Stahlbetonfundamente gemäß Statik
/// Wandaufbau Lagerhallen
- Sandwichelemente WLG 045 d = 8 cm
- Verlegung waagerecht
- IPE Stahlträger - verzinkt - gemäß Statik
- Ankerplatte gemäß Statik
- Streifenfundament frostsicher gegründet gemäß Statik
- mit Anschlussbewehrung
- Fertigteilsockel d=20 cm wärmegedämmt
- Füllsand lagenweise verdichtet
/// Bodenaufbau Lagerhalle groß
- GVG - Fugenlos-System-Polynet d = gemäß Statik
- Schotter 0-32 mm d = 30 cm
- Füllsand lagenweise verdichtet
/// Bodenaufbau Lagerhalle klein
- GVG - Fugenlos-System-Polynet d = gemäß Statik
- RC Schotter d = 15 cm
- Brechsand lagenweise verdichtet
/// Sektionaltore
- Iso Sektionaltore d = 60 mm
- h= 5 m
- b= 4,50 m m
- ohne Fenster
/// Pflasterflächen außen
- Pflaster 8 cm o.Fase
- 5 cm Brechsand
- 25 cm Trag - Filterschicht 0-32 Korn
- Füllsand lagenweise verdichtet
/// Klimaanlage Büro oben
/// Split-Inverter
- Mitsubishi Electric Multi Split Inverter Außengerät R32
- Kälteleistung: 7,2 kW
- Heizleistung: 8,6 kW
- Energieeffizienzklasse Kühlen: A++ /Heizen: A+
- Luftvolumenstrom: 2526 m3/h
- Schalldruckpegel Kühlen: 46 dB(A) / Heizen: 54 dB(A)
/// 2 Stck. Deckenkassetten
- Mitsubishi Electric 4-Wege-Deckenkassette
- Kälteleistung: 3,5 (0,7 - 3,9) kW
- Heizleistung: 4,0 (1,0 - 5,0) kW
- Energieeffizienzklasse Kühlen: A++/Heizen: A+
- Luftvolumenstrom im Kühlbetrieb
- Niedrig: 390 m3/h
- Mittel: 480 m3/h
- Hoch: 570 m3/h
- Schalldruckpegel Niedrig: 25 dB(A)/Hoch: 34 dB(A)
/// Die wichtigsten Ausstattungsmerkmale im Überblick
Grundsätzlich verfügt das Objekt über eine gehobene Ausstattung mit Klimageräten im oberen Büro, Einbauküchen oben und unten, exklusiven Beleuchtungskörpern im Treppenhaus, Brandmeldeanlage, Kameraüberwachung, Außenjalousien inklusive E-Anrieb, LED-Beleuchtung, hochwertigen Sanitäranlagen uvm..
- Baujahr: 2014
- Büro & Showroom: Massivbau
- Büro: mit Klimaanlage, Einbauküche & WCs
- Showroom: mit Büros, Einbauküche & WC
- Büro & Showroom: Massivbau
- Lagerhallen: Sandwich-Paneele mit Dämmung
- Lagerhallen: mit Heizung, elektrischen Rolltoren, Industrieboden
- Heizung: Gasheizung und Luft/Luft Heizung, inkl. Klimaanlage oben
- Beleuchtung: innen und außen mit LED-Leuchten ausgestattet
- Aussenstellplätze: 10
Der vordere Gebäudekörper, bestehend aus Treppenhaus, Showroom und Büro im Obergeschoss wurde in Massivbauweise errichtet. Die zum Parkplatz gelegene Fassade wurde in Teilen verklinkert, der Großteil mit Fassadenplatten in verschiedenen Ausführungen belegt.
/// Wandaufbau vorderer Gebäudekörper Links:
- 11,50 cm Verblender
- 16 cm Kerndämmung
- 17.50 cm KSA
- Stahlbetonstützen gemäß Statik
- mit umlaufendem Ringbalken
- 1,5 cm Putz
bzw.
/// Wandaufbau vorderer Gebäudekörper:
- Fassadenplatte auf UK
- 16 cm Kerndämmung bzw. Dämmung gemäß ENEV
- 17.50 cm KSA
- Stahlbetonstützen gemäß Statik
- mit umlaufendem Ringbalken
- 1,5 cm Putz
bzw.
/// Wandaufbau vorderer Gebäudekörper:
- Sandwichelemente WLG 045 d = 18 cm
- Verlegung waagerecht
- umlaufender Ringbalken gemäß Statik
- Betonstütze mit HTU Schiene - verzinkt - gemäß Statik
/// Dachaufbau vorderer Gebäudekörper:
- Abklebungen bzw. Terrassenbelag
- 20 cm Gefälledämmung
- Trapezblech gemäß Statik
- auf Stahlpfetten gemäß Statik
/// Bodenaufbau vorderer Gebäudekörper EG:
- GVG - Fugenlos-System-Polynet d = gemäß Statik
- Schotter 0-32 mm d = 20 cm
- Füllsand lagenweise verdichtet
/// Dachaufbau Lagerhallen
- Isodach WLG 045 d= 8cm
- Z-Profile gemäß Statik
- Stahlträger zur Aufnahme der Z -Profile
- Stahlbetonfundamente gemäß Statik
/// Wandaufbau Lagerhallen
- Sandwichelemente WLG 045 d = 8 cm
- Verlegung waagerecht
- IPE Stahlträger - verzinkt - gemäß Statik
- Ankerplatte gemäß Statik
- Streifenfundament frostsicher gegründet gemäß Statik
- mit Anschlussbewehrung
- Fertigteilsockel d=20 cm wärmegedämmt
- Füllsand lagenweise verdichtet
/// Bodenaufbau Lagerhalle groß
- GVG - Fugenlos-System-Polynet d = gemäß Statik
- Schotter 0-32 mm d = 30 cm
- Füllsand lagenweise verdichtet
/// Bodenaufbau Lagerhalle klein
- GVG - Fugenlos-System-Polynet d = gemäß Statik
- RC Schotter d = 15 cm
- Brechsand lagenweise verdichtet
/// Sektionaltore
- Iso Sektionaltore d = 60 mm
- h= 5 m
- b= 4,50 m m
- ohne Fenster
/// Pflasterflächen außen
- Pflaster 8 cm o.Fase
- 5 cm Brechsand
- 25 cm Trag - Filterschicht 0-32 Korn
- Füllsand lagenweise verdichtet
/// Klimaanlage Büro oben
/// Split-Inverter
- Mitsubishi Electric Multi Split Inverter Außengerät R32
- Kälteleistung: 7,2 kW
- Heizleistung: 8,6 kW
- Energieeffizienzklasse Kühlen: A++ /Heizen: A+
- Luftvolumenstrom: 2526 m3/h
- Schalldruckpegel Kühlen: 46 dB(A) / Heizen: 54 dB(A)
/// 2 Stck. Deckenkassetten
- Mitsubishi Electric 4-Wege-Deckenkassette
- Kälteleistung: 3,5 (0,7 - 3,9) kW
- Heizleistung: 4,0 (1,0 - 5,0) kW
- Energieeffizienzklasse Kühlen: A++/Heizen: A+
- Luftvolumenstrom im Kühlbetrieb
- Niedrig: 390 m3/h
- Mittel: 480 m3/h
- Hoch: 570 m3/h
- Schalldruckpegel Niedrig: 25 dB(A)/Hoch: 34 dB(A)
Grundrisse
Grundrisse
1 / 3
Virtueller Rundgang
3D tour

Realisiere Dein Projekt
Bausubstanz und Energie
Der Anbieter hat keine Informationen zum Energieverbrauch bereit gestellt.
- Baujahr2014
- Zustand der ImmobilieGepflegt
Preisdetails
Kaufpreis
1396 Euro pro Quadratmeter1.396 €/m²
Provision für Käufer
2,975% vom Kaufpreis inklusive gesetzlicher Mehrwertsteuer von derzeit 19%. inkl. MwSt.
Die Provision ist verdient durch Nachweis oder Vermittlung und ist fällig bei Notarvertragsunterzeichnung.
Die Provision ist verdient durch Nachweis oder Vermittlung und ist fällig bei Notarvertragsunterzeichnung.
Weitere Preisinformationen
10 Stellplätze
Lage

Tweelbäke, Oldenburg (26135)
Der Anbieter hat die genaue Adresse nicht freigegeben
Die angebotene Liegenschaft befindet sich in dem Oldenburger Gewerbegebiet Tweelbäke im süd-östlichen Stadtgebiet und überzeugt durch seine hervorragende Anbindung an die nahegelegene Autobahn.
Die Nutzerstruktur ist geprägt durch zahlreiche Klein- und Mittelunternehmen mit einem entsprechend vielfältigen Branchenmix aus Dienstleistungen und Handwerk. Insgesamt haben sich hier ca. 300 Unternehmen mit ca. 6.000 Mitarbeitern angesiedelt.
Das Gewerbegebiet zeichnet sich durch seine gute Anbindung an Stadt und Umland aus.
/// Entfernungen
Stadtzentrum Oldenburg: ca. 5,00 km
Autobahn A 28: ca. 1,00 km
Autobahn A 29: ca. 1,00 km
Bundesstraße B 401: ca. 6,00 km
Internationaler Flughafen Bremen: ca. 45,00 km
Bahnhof Oldenburg: ca. 5,00 km
//// OLDENBURG // Gut für gute Geschäfte!
Arbeiten in Oldenburg - Universitätsstadt und ehemalige Residenzstadt in der Metropolregion Bremen/Oldenburg.
Oldenburg ist mit inzwischen über 170.000 Einwohnern drittgrößte Stadt und eines der Oberzentren des Landes Niedersachsen. Oldenburg gehört deutschlandweit zu den wenigen Großstädten dieser Größenordnung, die prognostiziert noch über die nächsten zehn Jahre wachsen werden. Alleine in den letzten 10 Jahren ist die Einwohnerzahl um ca. 10.000 Personen gestiegen. Ein positives Zeichen für den dynamischen Wirtschaftsstandort an der Hunte.
Oldenburg ist Universitätsstadt mit fast 16.000 Studenten und ehemalige Residenzstadt bzw. Hauptstadt der Grafschaft, des Herzogtums, des Großherzogtums und des Landes Oldenburg. Seit 2005 gehört Oldenburg zur Metropolregion Bremen/Oldenburg.
Mit über 15.000 Gewerbebetrieben, drei großen Klinikstandorten, Universität, Fachhochschule, Hanse Law School, European Medical School, Polizeiakademie sowie Niederlassungen diverser Banken und Versicherungen hat sich Oldenburg kontinuierlich zu einem attraktiven Gewerbestandort in Deutschlands Norden entwickelt.
Die Oldenburger Fußgängerzone gehört zu den ältesten Deutschlands und hat mit seinen über 4.500 Metern Länge ein Einzugsgebiet bis hinein in die Niederlande. Auch kulturell hat Oldenburg einiges aufzuwarten. Mit über 2.000 Sitzplätzen in diversen Theatern und Kleinkunstbühnen und dem ganzen Areal um Weser-Ems Halle und EWE Arena ist Oldenburg Austragungsort für zahlreiche Theaterstücke, Konzerte & Co.
Eingerahmt wird Oldenburg von über 280 Hektar Grün- und Parkanlagen, die der Stadt nicht umsonst den Titel "Grüne Stadt im Norden" verliehen haben!
Die Nutzerstruktur ist geprägt durch zahlreiche Klein- und Mittelunternehmen mit einem entsprechend vielfältigen Branchenmix aus Dienstleistungen und Handwerk. Insgesamt haben sich hier ca. 300 Unternehmen mit ca. 6.000 Mitarbeitern angesiedelt.
Das Gewerbegebiet zeichnet sich durch seine gute Anbindung an Stadt und Umland aus.
/// Entfernungen
Stadtzentrum Oldenburg: ca. 5,00 km
Autobahn A 28: ca. 1,00 km
Autobahn A 29: ca. 1,00 km
Bundesstraße B 401: ca. 6,00 km
Internationaler Flughafen Bremen: ca. 45,00 km
Bahnhof Oldenburg: ca. 5,00 km
//// OLDENBURG // Gut für gute Geschäfte!
Arbeiten in Oldenburg - Universitätsstadt und ehemalige Residenzstadt in der Metropolregion Bremen/Oldenburg.
Oldenburg ist mit inzwischen über 170.000 Einwohnern drittgrößte Stadt und eines der Oberzentren des Landes Niedersachsen. Oldenburg gehört deutschlandweit zu den wenigen Großstädten dieser Größenordnung, die prognostiziert noch über die nächsten zehn Jahre wachsen werden. Alleine in den letzten 10 Jahren ist die Einwohnerzahl um ca. 10.000 Personen gestiegen. Ein positives Zeichen für den dynamischen Wirtschaftsstandort an der Hunte.
Oldenburg ist Universitätsstadt mit fast 16.000 Studenten und ehemalige Residenzstadt bzw. Hauptstadt der Grafschaft, des Herzogtums, des Großherzogtums und des Landes Oldenburg. Seit 2005 gehört Oldenburg zur Metropolregion Bremen/Oldenburg.
Mit über 15.000 Gewerbebetrieben, drei großen Klinikstandorten, Universität, Fachhochschule, Hanse Law School, European Medical School, Polizeiakademie sowie Niederlassungen diverser Banken und Versicherungen hat sich Oldenburg kontinuierlich zu einem attraktiven Gewerbestandort in Deutschlands Norden entwickelt.
Die Oldenburger Fußgängerzone gehört zu den ältesten Deutschlands und hat mit seinen über 4.500 Metern Länge ein Einzugsgebiet bis hinein in die Niederlande. Auch kulturell hat Oldenburg einiges aufzuwarten. Mit über 2.000 Sitzplätzen in diversen Theatern und Kleinkunstbühnen und dem ganzen Areal um Weser-Ems Halle und EWE Arena ist Oldenburg Austragungsort für zahlreiche Theaterstücke, Konzerte & Co.
Eingerahmt wird Oldenburg von über 280 Hektar Grün- und Parkanlagen, die der Stadt nicht umsonst den Titel "Grüne Stadt im Norden" verliehen haben!
Weitere Informationen
Sonstiges
///// ANFRAGE
Wir stehen Ihnen per Email unter ingo.eden@eden-ehbrecht-immobilien.de oder telefonisch unter 0441-95079877 zur Verfügung, um über das Objekt zu sprechen. Besichtigungen können wir in Abstimmung mit dem Eigentümer in der Regel zeitnah anbieten!
Wir freuen uns auf Ihre Anfrage!
///// 25 JAHRE EDEN-EHBRECHT IMMOBILIEN
Seit 1999 sind wir bereits auf dem Oldenburger Immobilienmarkt tätig. Nutzen Sie unsere Erfahrung bei Verkauf, Vermietung und Vermarktung von Gewerbeimmobilien, Wohnimmobilien oder Anlageimmobilien.
///// AUSZEICHNUNGEN
P5 - Aktuell wurden wir in Frankfurt am Main auf dem diesjährigen P5 The Property Kongress mit dem P5 Property Agent Award 2025 ausgezeichnet!
IDA AWARD 2025 - In 2025 sind wir bereits zum fünften Mal mit der begehrten Branchen-Auszeichnung IDA Award ausgezeichnet worden!
Top 50 Immobilienmakler Deutschlands - In 2017 sind wir vom BVFI - Bundesverband für die Immobilienwirtschaft mit dem IDA Award für besondere Verdienste und innovative Dienstleistungen ausgezeichnet worden!
Mit derzeit über 600 Kundenbewertungen sind wir Oldenburgs meist- und bestbewerteter Immobilienmakler.
Unsere Schwerpunkte sind der Verkauf und die Vermietung von Wohnimmobilien und Gewerbeimmobilien in Oldenburg und Umgebung. Egal ob Immobilien zur Kapitalanlage oder Eigennutzung, hochwertige Appartements in besten Lagen oder moderne Gastronomie-, Büro- oder Praxisflächen an attraktiven Standorten.
Seit 1999 unterstützen wir unsere Kunden bei Kauf, Verkauf, Vermietung und Anmietung von Immobilien aller Art. In den letzten 25 Jahren haben wir viele hundert große und kleine Objekte erfolgreich vermittelt.
Wann testen Sie unseren Service? Wir freuen uns auf Sie!
///// HAFTUNGSAUSCHLUSS
Alle Angaben des Angebotes basieren auf Informationen des Auftraggebers oder Dritter. Für die Richtigkeit und Vollständigkeit und Aktualität der gemachten Angaben übernehmen wir keine Gewähr. Das Angebot erfolgt freibleibend. Zwischenverkauf vorbehalten. Stichworte Stellplatz vorhanden, Gesamtfläche: 1.550,00 m², Bürofläche: 149,00 m², Anzahl der separaten WCs: 4, 2 Etagen, Lage im Gewerbegebiet Sonstiges: EDV-Verkabelung
Wir stehen Ihnen per Email unter ingo.eden@eden-ehbrecht-immobilien.de oder telefonisch unter 0441-95079877 zur Verfügung, um über das Objekt zu sprechen. Besichtigungen können wir in Abstimmung mit dem Eigentümer in der Regel zeitnah anbieten!
Wir freuen uns auf Ihre Anfrage!
///// 25 JAHRE EDEN-EHBRECHT IMMOBILIEN
Seit 1999 sind wir bereits auf dem Oldenburger Immobilienmarkt tätig. Nutzen Sie unsere Erfahrung bei Verkauf, Vermietung und Vermarktung von Gewerbeimmobilien, Wohnimmobilien oder Anlageimmobilien.
///// AUSZEICHNUNGEN
P5 - Aktuell wurden wir in Frankfurt am Main auf dem diesjährigen P5 The Property Kongress mit dem P5 Property Agent Award 2025 ausgezeichnet!
IDA AWARD 2025 - In 2025 sind wir bereits zum fünften Mal mit der begehrten Branchen-Auszeichnung IDA Award ausgezeichnet worden!
Top 50 Immobilienmakler Deutschlands - In 2017 sind wir vom BVFI - Bundesverband für die Immobilienwirtschaft mit dem IDA Award für besondere Verdienste und innovative Dienstleistungen ausgezeichnet worden!
Mit derzeit über 600 Kundenbewertungen sind wir Oldenburgs meist- und bestbewerteter Immobilienmakler.
Unsere Schwerpunkte sind der Verkauf und die Vermietung von Wohnimmobilien und Gewerbeimmobilien in Oldenburg und Umgebung. Egal ob Immobilien zur Kapitalanlage oder Eigennutzung, hochwertige Appartements in besten Lagen oder moderne Gastronomie-, Büro- oder Praxisflächen an attraktiven Standorten.
Seit 1999 unterstützen wir unsere Kunden bei Kauf, Verkauf, Vermietung und Anmietung von Immobilien aller Art. In den letzten 25 Jahren haben wir viele hundert große und kleine Objekte erfolgreich vermittelt.
Wann testen Sie unseren Service? Wir freuen uns auf Sie!
///// HAFTUNGSAUSCHLUSS
Alle Angaben des Angebotes basieren auf Informationen des Auftraggebers oder Dritter. Für die Richtigkeit und Vollständigkeit und Aktualität der gemachten Angaben übernehmen wir keine Gewähr. Das Angebot erfolgt freibleibend. Zwischenverkauf vorbehalten. Stichworte Stellplatz vorhanden, Gesamtfläche: 1.550,00 m², Bürofläche: 149,00 m², Anzahl der separaten WCs: 4, 2 Etagen, Lage im Gewerbegebiet Sonstiges: EDV-Verkabelung
Weitere Services
Lust auf eine Besichtigung?
Eine Frage zur Immobilie?
Über den Anbieter
Eden-Ehbrecht Immobilien & Marketing GbRMaklerbüro
Kleine Kirchenstraße 11, 26122 Oldenburg
Diamond Partner

Herr Ingo EdenDein Kontakt
Online-ID: 2kzmc5r
Referenznummer: 115920194#GJUNJ


Eden-Ehbrecht Immobilien & Marketing GbR
4,5/5Bewertung: 4,5 von 5 Sternen
Wie zufrieden bist du mit dieser Seite (nicht mit der Immobilie selbst)?