Version: 8.25.1Navigation überspringen
327.900 €
2 Zimmer  •  57,3 m²  •  2. Geschoss
Immowelt logo

Wohnung zum Kauf - Erstbezug
327900 €
5.662 €/m²
2 Zimmer  •  57,3 m²  •  2. Geschoss

Komplett hofseitig! TOP Neubauprojekt! Ideale Kleinwohnung mit Loggia und Terrasse + Beste Anbindung und Infrastruktur + Garagenplatz optional! Jetzt

Hier wartet ein Neubau-Traumprojekt auf Sie! Perfekt als Anlage als auch für Eigennutzer!

43 ideal geplante Traumwohnungen (Büros im EG) mit Größen von ca. 36m² bis ca. 110m² - alle mit Balkonen/Terrassen oder Gärten - werden Sie verzaubern! Hier finden Sie für jedes Budget und jeden Geschmack die richtige Wohnung! 30 Garagenplätze stehen darüber hinaus für die neuen Eigentümer zur Verfügung.

Im Dachgeschoss befinden sich traumhafte Wohnungen für Familien oder Eigentümer, die den Luxus lieben - es warten Whirlpool und Fernblick auf Sie! In den Regelgschossen gibt es eine bunte Vielfalt von 1-3 Zimmer Wohnungen und attraktiven Freiflächen um die Sonne zu genießen und die Seelen baumeln zu lassen!

 

Highlights: Hauseigene Tiefgarage + Freiflächen bei allen Einheiten + Hochwertige Ausstattung + Fußbodenheizung + Fernwärme + 3-fach isolierte Fenster + Sicherheitstüren + Klimaanlagen (DG) uvm.

SICHERN SIE SICH ZUM PROJEKTSTART UNGLAUBLICHE VORTEILE! Die ersten Käufer bekommen eine Küche im Wert von bis zu € 10.000.- geschenkt sowie € 10.000.- Preisnachlass!

Baustart: Anfang 2024 / Fertigstellung: Ende 2025

 

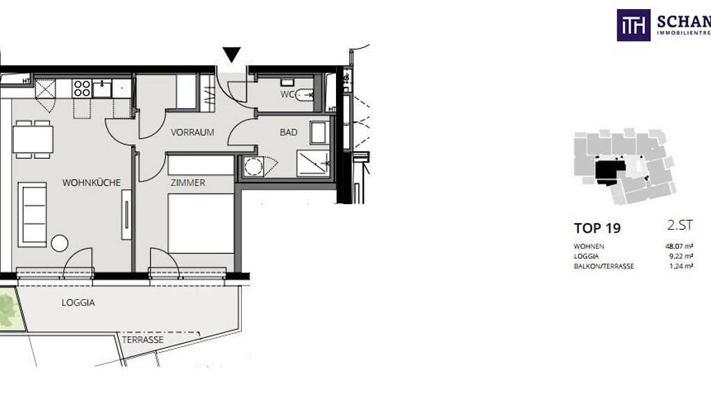
TOP 19 (2.Liftstock / hofseitig)

Ihre neue Wohnung im 2.Liftstock wird Sie begeistern und teilt sich in einen Vorraum mit Platz für eine Garderobe, ein separates WC mit Handwaschbecken, ein schönes Badezimmer mit Walk-In Dusche und Waschmaschinenanschluss, einen praktischen Abstellraum, ein herrliches Wohn-Esszimmer mit Zugang zur Loggia bzw. der Terrasse und ein gemütliches Schlafzimmer, welches ebenfalls Zugang zur Loggia hat.

 

Wohnfläche: ca. 48,07m² + Loggia: ca. 9,22m² + Terrasse: ca. 1,24m² + Kellerabteil + optional Garagenplatz

Kaufpreis für Anleger: € 327.900.- netto + Ust

Kaufpreis für Eigennutzer: € 383.000.-

Optional - Kaufpreis Garage für Anleger: € 29.000.- netto + Ust

Optional - Kaufpreis Garage für Eigennutzer: € 34.000.-

Bezug: Ende 2025

Bei der Angabe der Betriebskosten handelt es sich um eine Schätzung, da noch Angebote verschiedener Hausverwaltungen eingeholt werden.

 

Dieses Projekt wird nach dem BTVG (Bauträgervertragsgesetz) abgewickelt.

Worauf warten Sie noch? Vereinbaren Sie noch heute einen Beratungstermin und informieren Sie sich über den Kauf Ihrer Traumwohnung!

www.schantl-ith.at

Wir weisen darauf hin, dass zwischen dem Vermittler und dem zu vermittelnden Dritten ein familiäres oder wirtschaftliches Naheverhältnis besteht.

Der Vermittler ist als Doppelmakler tätig.

Infrastruktur / Entfernungen

Gesundheit
Arzt <500m
Apotheke <250m
Klinik <1.500m
Krankenhaus <1.500m

Kinder & Schulen
Schule <500m
Kindergarten <250m
Universität <2.500m
Höhere Schule <2.000m

Nahversorgung
Supermarkt <250m
Bäckerei <250m
Einkaufszentrum <1.500m

Sonstige
Geldautomat <500m
Bank <500m
Post <500m
Polizei <1.000m

Verkehr
Bus <250m
U-Bahn <1.000m
Straßenbahn <250m
Bahnhof <500m
Autobahnanschluss <1.000m

Angaben Entfernung Luftlinie / Quelle: OpenStreetMap

Merkmale

  • Bezug: Ende 2025
  • 2. Geschoss
  • Personenaufzug
  • Gäste-WC

Grundrisse

Verschaffe dir einen genauen Überblick über die Raumaufteilung.selection_property_house-icon

Realisiere Dein Projekt

Bausubstanz und Energie

Heizwärmebedarf (HWB)

B

Gesamtenergieeffizienz (fGEE)

A
  • Baujahr2024
  • Zustand der ImmobilieNeubau, Massivhaus, Erstbezug
  • HaustypNiedrigenergiehaus
  • HeizungsartFußbodenheizung
  • EnergieträgerFernwärme
Immowelt logo

Preisdetails

Kaufpreis
327900 €
5.662,23 €/m²
Provision für Käufer
3% des Kaufpreises zzgl. 20% USt.

Lage

address-icon
Hetzendorfer StraßeWien,Meidling (1120)
Mitten in Meidling!
Dieses tolle Projekt bietet durch die zentrale Lage im 12.Bezirk viele Möglichkeiten! Beliebte Ausflugsziele wie das Schloss Schönbrunn und der Tiergarten oder das Erholungsgebiet Wienerberg sind in Kürze zu erreichen.
Die Versorgung mit Geschäften des täglichen Bedarfs ist perfekt! Quasi gegenüber auf der anderen Straßenseite befindet sich ein SPAR, eine Apotheke und ebenso nur wenige Gehmuniten entfernt finden Sie eine schöne STRÖCK-Filiale, einen LIDL, DM, HOFER, FRESSNAPF uvm.
Mit dem Auto gelangen Sie in Kürze auf die großen Ausfallstraßen und auch ohne Auto sind Sie bestens an das öffentliche Verkehrsnetz angebunden!
Perfekte öffentliche Anbindung: Bus vor der Türe 16A, 62A, 64B, N8 / Bahnhof Wien Hetzendorf R3, R, S1, S2, S3, S4 / Straßenbahn 62 / U6 ca. 10 Gehminuten entfernt

Weitere Informationen

Stichworte Garage vorhanden, Süd-Ost-Balkon/Terrasse, Fahrradraum, Rolladen, Nutzfläche: 57,91 m², Anzahl der Badezimmer: 1, Anzahl der separaten WCs: 1, Anzahl Terrassen: 1, Anzahl Loggias: 1, Balkon-Terrassen-Fläche: 10,46 m², Kellerfläche: 1,50 m², Bundesland: Wien, 7 Etagen

Weitere Services

Lust auf eine Besichtigung?
Eine Frage zur Immobilie?
Nachricht hinzufügen
Mit der Nutzung der oben angegebenen Telefonnummer oder durch Klicken auf „Kontaktieren“ akzeptierst Du die Allgemeinen Nutzungsbedingungen, denen Du jederzeit widersprechen kannst. Weitere Informationen zum Datenschutz

Über den Anbieter

Messendorferstraße 71a, 8041 Graz
Herr Samir Agha-SchantlDein Kontakt
Online-ID: 234XXMF5MXT7
Referenznummer: OBGC202310201021140907475eb64aa
Schantl ITH Immobilientreuhand GmbH
Schantl ITH Immobilientreuhand GmbH
Bewertung: 5 von 5 Sternen
Nachricht hinzufügen
Mit der Nutzung der oben angegebenen Telefonnummer oder durch Klicken auf „Kontaktieren“ akzeptierst Du die Allgemeinen Nutzungsbedingungen, denen Du jederzeit widersprechen kannst. Weitere Informationen zum Datenschutz
Wie zufrieden bist du mit dieser Seite (nicht mit der Immobilie selbst)?