Version: 8.24.0Navigation überspringen
White&Black Rosenheim - Nick Almstadt - Handelsvertretung für die Schwabenhaus GmbH
1.340.569 €
4 Zimmer  •  135 m²  •  850 m² Grundstück

Einfamilienhaus zum Kauf • provisionsfrei
1340569 €
9.930 €/m²
4 Zimmer  •  135 m²  •  850 m² Grundstück

Ihr Neubau in Bestlage

Willkommen in Ihrem neuen Zuhause, einem herausragenden Neubau, der speziell für Käufer mit Sinn für Raffinesse, Leidenschaft und Präzision entworfen wurde. Diese Immobilie verkörpert modernen Luxus und bietet ein einzigartiges Wohnerlebnis für anspruchsvolle Käufer.

Merkmale

  • 850 m² Grundstück
  • Gäste-WC
Kurze Bauzeiten, innovative Haustechnik, attraktive Architektur und hochwertige Manufaktur-Qualität bietet Ihnen das angebotene Schwabenhaus im "Blue-Edition" All-Inclusive-Paket:


- Bodenplatte inklusive Effizienzhaus 55 Perimeter-Dämmung unterhalb der Bodenplatte sowie stirnseitig
- Effizienzhaus 55 mit der Option zur Erweiterung auf Effizienzhaus 40 oder 40 Plus
- Klima-Komfort-Bauweise
- Zimmermannmäßiges Pfettendach
- Photovoltaik-Vorbereitung für die Ausführung einer Photovoltaik-Anlage
- Komplette Elektro-, Sanitär- und Heizungs-Installation inkl. Grundinstallation für das Schwabenhaus auf Schwabenhaus-Bodenplatte bzw. -Keller*
- Zukunftsweisende Elektro-Installation*
- Smart-Home-Technologie - Intelligentes Gebäude-Management für die Licht- und Rollladen-Steuerung*¹
- Elektrische Rollläden*¹
- Doppel-Wärmepumpe Eco+* für Heizen, Lüften, Kühlen, Luftreinigung und Warmwasser
- Hochwertige, mehrschichtige Holz-Haustür in vielfältigen Design-Lösungen, mit Sicherheitsschließzylinder, 5-fach- Sicherheits-Verriegelung und 3-Scheiben-Wärmeschutzverglasung
- Kunststoff-Fenster mit 3-Scheiben-Wärmeschutzverglasung
- Dachflächenfenster mit Kipp- und Schwingfunktion sowie elektrischen Rollläden*
- Massiv-Vollholz-Treppe
- Protect Versicherungs-Paket mit Wohngebäudeversicherung inkl. Elementarschutz, Haus- und Wohnungs-Schutzbrief, Bauleistungsversicherung und Bauherren-Haftpflichtversicherung sowie Job-Protect Versicherungs-Paket
- 10 sowie 30 Jahre Gewährleistung

*Ab Ausbaustufe "Fast-Vollendet"

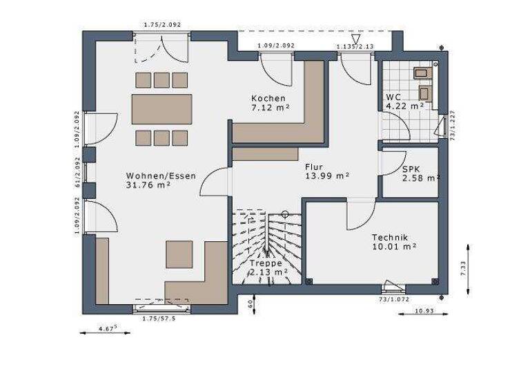
Grundrisse

Grundrisse
1 / 2

Realisiere Dein Projekt

Bausubstanz und Energie

Der Anbieter hat keine Informationen zum Energieverbrauch bereit gestellt.
  • Zustand der ImmobilieNeubau, Projektiert
  • HeizungsartFußbodenheizung

Preisdetails

Kaufpreis
1340569 €
9.930,14 €/m²
Provision für Käufer
provisionsfrei
Geschätzte Gesamtkosten
1.414.301 €1
Kaufpreis
1.340.569 €
Notarkosten (1,5%)
20.109 €
Grunderwerbsteuer (3,5%)
46.920 €
Grundbucheintrag (0,5%)
6.703 €
1Der angezeigte Wert ist eine automatisch berechnete Schätzung von immowelt.
2Bei den Angaben handelt es sich um ortsübliche Werte. Individuelle Kosten können abweichen.

Lage

address-icon
Gröbenzell (82194)
Der Anbieter hat die genaue Adresse nicht freigegeben
Gröbenzell bietet Ihnen eine der besten Lagen im Münchner Westen - direkt an der Stadtgrenze und mit maximaler Anbindung: Über die S-Bahn (Linie S3) erreichen Sie München in ca. 20 Minuten, der Anschluss an A8, A96 und A99 bringt Sie schnell und flexibel überall hin - ideal für Führungskräfte, Entscheider und Selbstständige.

Die wirtschaftsstarke Metropolregion München garantiert nachhaltige Wertsteigerung und sichert Ihre Investition. Gröbenzell verbindet unternehmerische Möglichkeiten mit einer hohen Lebensqualität - genau dort, wo Erfolg beginnt.

Infrastruktur, Einkauf, Bildung und Versorgung sind lückenlos vorhanden - Sie verlieren keine Zeit und behalten die volle Kontrolle über Ihren Alltag. Hier investieren Sie nicht nur in Wohnraum, sondern in strategischen Standortvorteil.

Weitere Informationen

Sonstiges Das Haus ist projektiert inkl. Grundstück. Das Grundstück wird in Kommission angeboten bzw. direkt von Dritten verkauft. Daher kann der o.g. Preis aufgrund aktueller Marktsituationen schwanken.

Die Bauabwicklung kann kurzfristig nach Grundstückserwerb begonnen werden. Bilder zeigen möglicherweise Sonderausstattungen, die auf Wunsch gegen Preiskorrektur zusätzlich angeboten werden können.

Fragen Sie nach unserem kostenlosen Beratungs-Service und erhalten Sie in einem persönlichen Gespräch kostenlos alle wichtigen Informationen zu diesem Projekt, insbesondere: Lage und Bebauungsmöglichkeiten des Baugrundstücks, Baukosten-Kalkulation, Finanzierungs- u. Förderungs-Möglichkeiten, detaillierte Architektur- u. Grundrissplanung, etc.

Wir freuen uns, Sie ausführlich beraten zu dürfen!

Anbauteile, Carport, Garage und Keller können Extras sein, die als Sonderausstattung angeboten werden. Abbildungen, Grundrisse und Flächenangaben sind beispielhaft und können Extras zeigen. Flächenangaben nach DIN 277.

Profitieren Sie jetzt von der Schwabenhaus Online Beratung und verwirklichen Sie Ihr Traumhaus https://www.schwabenhaus.de/anmeldung-hausbau-beratung-online/ Stichworte Anzahl der Schlafzimmer: 3, Anzahl der Badezimmer: 1, Anzahl der separaten WCs: 1

Weitere Services

Lust auf eine Besichtigung?
Eine Frage zur Immobilie?
Nachricht hinzufügen
Mit der Nutzung der oben angegebenen Telefonnummer oder durch Klicken auf „Kontaktieren“ akzeptierst Du die Allgemeinen Nutzungsbedingungen, denen Du jederzeit widersprechen kannst. Weitere Informationen zum Datenschutz

Über den Anbieter

Hauptstraße. 4d, 83339 Chieming
Nick AlmstadtDein Kontakt
Online-ID: 2ndr55m
Referenznummer: NA-371074
White&Black Rosenheim - Nick Almstadt - Handelsvertretung für die Schwabenhaus GmbH
White&Black Rosenheim - Nick Almstadt - Handelsvertretung für die Schwabenhaus GmbH
Nachricht hinzufügen
Mit der Nutzung der oben angegebenen Telefonnummer oder durch Klicken auf „Kontaktieren“ akzeptierst Du die Allgemeinen Nutzungsbedingungen, denen Du jederzeit widersprechen kannst. Weitere Informationen zum Datenschutz
Wie zufrieden bist du mit dieser Seite (nicht mit der Immobilie selbst)?