

CUBION Immobilien AG
Herr Marvin Prochowski
+49 ···
Nr. anzeigenPreise & Kosten
Provision für Mieter
provisionsfrei
Warum sehe ich diese Anzeige? – Du siehst diese Anzeige basierend auf Ihrer Navigation auf unserer Website und den Suchkriterien, die du verwendet hast.
Lage
Dieser Standort befindet sich nur wenige Kilometer von der Bochumer Innenstadt entfernt. Im direkten Umfeld bestehen diverse Anbindungen an den öffentlichen Nahverkehr und über die A448 ist man innerhalb weniger Minuten auf der A40.
Büro-/Praxisfläche
Baujahr
1910
Bezug
nach Vereinbarung
Details
Objektbeschreibung
Direkt an der A448 gelegen bietet die Immobilie im inneren moderne Büroflächen sowie von außen ein industrielles Ambiente. Neben der großen Empfangshalle bieten sorfältig erhaltene Details des Altbaus viele Hingucker.
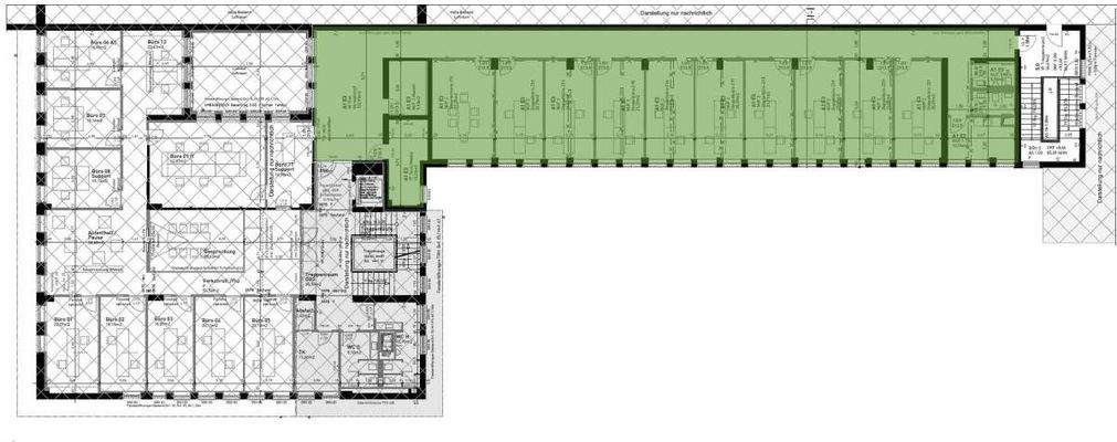
Folgende Fläche steht zur Disposition:
3. Obergeschoss Langbau: ca. 230 m²
Es sind...
Ausstattung
Bodenbelag: Teppich grau in den Büroräumen, Fliesen auf den Fluren
Kabelführung: Unterputz
Sonnenschutz: außenliegende Rollos, elektrisch
Teeküche: vorhanden vom Vormieter
Beleuchtung: Leuchtpanele, bildschirmarbeitsplatzgeeignete Beleuchtung
Weitere Informationen
Sonstiges
GEG 2020: Ein Energieausweis liegt zur Zeit nicht vor.
Dieses Angebot ist provisionsfrei für den Mieter.
Alle Informationen in diesem Exposé beruhen auf Angaben, die wir vom Vermieter erhalten haben. Für Richtigkeit und Vollständigkeit übernehmen wir keine Gewähr. Zwischenvermietung vorbehalten. Die...
Anbieter der Immobilie

CUBION Immobilien AG
Akazienallee 65, 45478 Mülheim

Online-ID: 276hd59
Referenznummer: 2271
Finde Angebote wie dieses
Hier geht es zu unserem Impressum, den Allgemeinen Geschäftsbedingungen, den Hinweisen zum Datenschutz und nutzungsbasierter Online-Werbung.