

Wohnung zum Kauf129000 €2.251 €/m²3 Zimmer • 57,3 m²
129000 €
2.251 €/m²
3 Zimmer • 57,3 m²
TOP KAPITALANLAGE / 3-Zimmer-Wohnung in zentraler Lage von St. Georgen
Merkmale
- vermietet
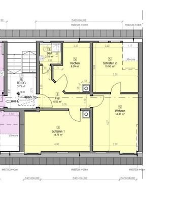
- Dachgeschoss
- EinbaukĂĽche
- DSL-Anschluss
- Fernblick
- Bad mit Dusche
- WG-geeignet
- Bodenbelag: Fliesen, Linoleum
Realisiere Dein Projekt
Bausubstanz und Energie
Der Anbieter hat keine Informationen zum Energieverbrauch bereit gestellt.
- Baujahr1915
- Zustand der ImmobilieGepflegt
- HeizungsartZentralheizung
- EnergieträgerElektro, Gas
Preisdetails
Kaufpreis
129000 €
2.251,31 €/m²
Provision für Käufer
4,76 % inkl. MwSt.
Geschätzte Gesamtkosten
142.635 €1
Kaufpreis
129.000 €
Kaufnebenkosten
13.635 €
2Notarkosten (1,5%)
1.935 €
Grunderwerbsteuer (5%)
6.450 €
Provision für Käufer (3,57%)
4.605 €
Grundbucheintrag (0,5%)
645 €
1Der angezeigte Wert ist eine automatisch berechnete Schätzung von immowelt.
2Bei den Angaben handelt es sich um ortsübliche Werte. Individuelle Kosten können abweichen.
Lage

Stadtgebiet, Sankt Georgen im Schwarzwald (78112)
Der Anbieter hat die genaue Adresse nicht freigegeben
Weitere Informationen
Weitere Services
Lust auf eine Besichtigung?
Eine Frage zur Immobilie?
Ăśber den Anbieter
Arche Group GmbH - ImmobilienagenturMaklerbĂĽro
Dauchinger StraĂźe 16, 78056 Villingen-Schwenningen
Partnerschaft
Herr Ahmad f. 1. Infos und Termine (Mo-Fr. 8-16 Uhr)Dein Kontakt
Online-ID: 27dra5u

Arche Group GmbH - Immobilienagentur
Wie zufrieden bist du mit dieser Seite (nicht mit der Immobilie selbst)?

