
Eck & Oberg Immobilien GmbH
Herr Martin Höpfner
043 ···
Nr. anzeigenPreise & Kosten
Kaution
7668,60€
Provision für Mieter
1 Nettokaltmiete
Warum sehe ich diese Anzeige? – Du siehst diese Anzeige basierend auf Ihrer Navigation auf unserer Website und den Suchkriterien, die du verwendet hast.
Lage
Bad Segeberg, eine malerische Kleinstadt im Herzen Schleswig-Holsteins, bietet eine ideale Kombination aus charmantem Ambiente und moderner Infrastruktur. Das Büro- und Geschäftshaus befindet sich in einer strategisch günstigen Lage, die sowohl für Unternehmen als auch für Kunden und Mitarbeiter attraktiv ist.
Die...
Büro-/Praxisfläche
Kategorie
Bürogebäude
Baujahr
1977
Bezug
sofort
Geschoss
1. Geschoss
Energie & Heizung
Warum sehe ich diese Anzeige? – Du siehst diese Anzeige basierend auf Ihrer Navigation auf unserer Website und den Suchkriterien, die du verwendet hast.
Wärme
Strom
Energieausweistyp
Verbrauchsausweis
Gebäudetyp
Nicht-Wohngebäude
Baujahr laut Energieausweis
1977
Gültigkeit
29.04.2025 bis 29.04.2035
Endenergieverbrauch (Wärme)
142,00 kWh/(m²·a)
Endenergieverbrauch (Strom)
24,00 kWh/(m²·a)
Details
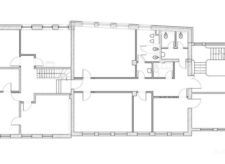
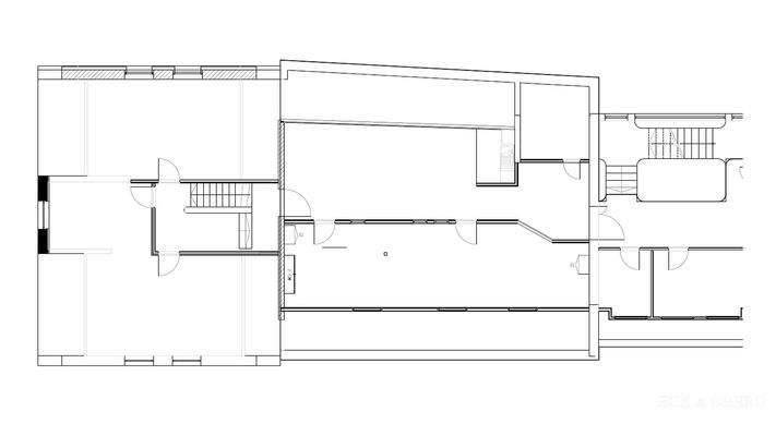
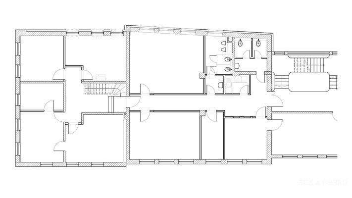
Objektbeschreibung
Willkommen in Bad Segeberg, Ihrer neuen Wirkungsstätte!
Diese attraktive Büroetage im 1. Obergeschoss überzeugt durch ihre klare Raumstruktur, helle Arbeitsbereiche und eine angenehme Arbeitsatmosphäre. Ob Start-up, Agentur oder etabliertes Unternehmen - hier finden Sie den idealen Standort für produktives Arbeiten...
Ausstattung
- Baujahr 1826, Anbau 1977 / 78
- 10 Büroräume
- Türen: Holz- und Metalltüren teilweise mit Glasausschnitt
- Gas-Heizung
- Küchenräume mit Pantry bzw. einfacher Küchenzeile
- WC-Anlagen für Damen und Herren in ausreichender Anzahl
- Schutzraum im 1. Obergeschoss...
Preisinformation
3 Stellplätze
Weitere Informationen
Sonstiges
Bezüglich der Objektangaben ist die ECK & OBERG Immobilien GmbH auf die Auskünfte des Eigentümers angewiesen. Daher kann für die Richtigkeit und Vollständigkeit dieser Angaben, trotz sorgfältiger Prüfung, keine Haftung übernommen werden. Darüber hinaus kann auch für die Qualität der Immobilie keine Gewähr...
Anbieter der Immobilie
Eck & Oberg Immobilien GmbH
Düsternbrooker Weg 75, 24105 Kiel
Online-ID: 2mtce53
Referenznummer: 5480#90Ef6
Finde Angebote wie dieses
Hier geht es zu unserem Impressum, den Allgemeinen Geschäftsbedingungen, den Hinweisen zum Datenschutz und nutzungsbasierter Online-Werbung.