

Lido Home Kft
Frau Monika Horvath
003 ···
Nr. anzeigenPreise & Kosten
Provision für Käufer
Bitte beachte, das Angebot beinhaltet bei Vertragsabschluss die Zahlung einer Provision. Weitere Informationen erhältst Du vom Anbieter.
Das Haus
Kategorie
Einfamilienhaus
Baujahr
2011/2019
Energie & Heizung
Warum sehe ich diese Anzeige? – Du siehst diese Anzeige basierend auf Ihrer Navigation auf unserer Website und den Suchkriterien, die du verwendet hast.
Weitere Energiedaten
Haustyp
Massivhaus
Energieträger
Elektro, Gas
Heizungsart
Zentralheizung
Details
Objektbeschreibung
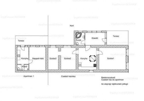
Das Immobilienbüro LIDO HOME SIÓFOK bietet ein 3-ZIMMER-FAMILIENHAUS in BALATONSZABADI zum Verkauf an!
Ein gemütliches, gut gestaltetes Anwesen in einem ruhigen und friedlichen Teil von Balatonszabadi, 7 km vom Balaton entfernt.
- 220 m2 Wohnfläche
- 813 m2 Grundstück
- Das Untergeschoss besteht...
Weitere Informationen
Stichworte
Versorgung: Städtische Wasserversorgung, Städtische Stromversorgung
Sonstiges: frei werdend
Anbieter der Immobilie
Lido Home Kft
Fo utca 162, 8600 SIÓFOK

Online-ID: 27jyk5h
Referenznummer: 155009504
Finde Angebote wie dieses
Hier geht es zu unserem Impressum, den Allgemeinen Geschäftsbedingungen, den Hinweisen zum Datenschutz und nutzungsbasierter Online-Werbung.