
Sylvia Ams Immobilien + Vermietungen
Frau Sylvia Ams
072 ···
Nr. anzeigenPreise & Kosten
Provision für Käufer
3,57 % inkl. 19 % MwSt.
Lage
Die Gemeinde besitzt einen Kindergarten und eine Grundschule. Für den öffentlichen Personennahverkehr sorgen Busse oder das Ast-Taxi. Für Freizeitbeschäftigungen gibt es Vereine, u.a. Fußball- und Turnvereine. Das Hallenbad oder Rheinfahrten können für einen angenehmen Familienausflug sorgen.
Das Renditeobjekt
Kategorie
Mehrfamilienhaus
Baujahr
1973
Bezug
nach Vereinbarung
Frei ab
vermietet
Geschosse
4 Geschosse
Energie & Heizung
Warum sehe ich diese Anzeige? – Du siehst diese Anzeige basierend auf Ihrer Navigation auf unserer Website und den Suchkriterien, die du verwendet hast.
Gebäudetyp
Wohngebäude
Weitere Energiedaten
Energieträger
Öl
Heizungsart
Zentralheizung
Details
Objektbeschreibung
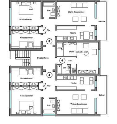
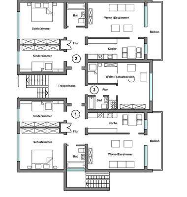
Bei der hier angebotenen Immobilie handelt es sich um ein Mehrfamilienhaus, bestehend aus einer Doppelhaushälfte mit insgesamt 10 Wohneinheiten. Das 3-geschossige, vollunterkellerte Anwesen mit ausgebautem Dach wurde 1973 in massiver Bauweise errichtet.
Es befindet sich auf einem ca. 2.016 m² großen Grundstück in...
Ausstattung
Die Raumaufteilung gliedert sich wie folgt:
3 ZKB
-Wohn- und Esszimmer mit Zugang zum Balkon
-Küche
-Schlafzimmer
-Kinderzimmer
-Bad
-Flur
-Balkon
1-Zimmer-Appartment
-Offener Wohn- und Schlafbereich mit Kochnische
-Bad
-Flur
Dachgeschoss
-Wohn- und...
Weitere Informationen
Sonstiges
Verehrte Interessenten,
bitte beachten Sie, dass nur Anfragen mit vollständiger Angabe Ihres Namens und Ihrer Telefonnummer beantwortet werden können.
Innerhalb der nächsten 1-3 Werktage erhalten Sie von uns automatisch eine Antwort.
+++++++++++++++++++++++++
Alle Angaben in diesem...
Anbieter der Immobilie

Sylvia Ams Immobilien + Vermietungen
Lanzstraße 2a, 68794 Oberhausen-Rheinhausen
Online-ID: 27m8g5c
Referenznummer: 5085-21
Finde Angebote wie dieses
Hier geht es zu unserem Impressum, den Allgemeinen Geschäftsbedingungen, den Hinweisen zum Datenschutz und nutzungsbasierter Online-Werbung.