
Multrus Immobilien
Frau Carmen Multrus
026 ···
Nr. anzeigenPreise & Kosten
Provision für Käufer
provisionsfrei
Lage
Dieses wunderschöne Objekt befindet sich auf der kanarischen Insel Lanzarote, der Feuerinsel im Atlantik. Lanzarote strahlt mit seiner bizarren Vulkanlandschaft eine einzigartige Atmosphäre aus und besitzt ein ganzjährig mildes und niederschlagsarmes Klima. Geprägt ist die Insel auch durch die Impressionen und Einflüsse des...
Das Haus
Kategorie
Villa
Baujahr
1998
Energie & Heizung
Warum sehe ich diese Anzeige? – Du siehst diese Anzeige basierend auf Ihrer Navigation auf unserer Website und den Suchkriterien, die du verwendet hast.
Weitere Energiedaten
Haustyp
Massivhaus
Energieträger
Flüssiggas, Holz
Heizungsart
Zentralheizung
Details
Objektbeschreibung
Lassen Sie sich bezaubern von diesem außergewöhnlichen Anwesen direkt am Meer!
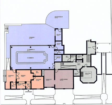
Bei der hier angebotenen Immobilie handelt sich um eine Villa am Atlantik mit Schwimmbad, Turmbauwerk sowie einem separaten Appartement. Das im Landesstil erbaute Gebäude ist mit seiner weißen Putzfassade sowie aus Natursteinen großzügig...
Preisinformation
2 Garagenstellplätze
Weitere Informationen
Sonstiges
Eine Übernahme des angebotenen Objektes kann je nach Absprache erfolgen.
Haben wir Ihr Interesse geweckt? Dann rufen Sie uns an und vereinbaren einen Termin für eine Innenbesichtigung. Bei einer eventuellen Außenbesichtigung bitten wir um Diskretion.
Sämtliche Angebote erfolgen freibleibend und nach bestem...
Anbieter der Immobilie
Multrus Immobilien
Kurfürstenstr. 96, 56068 Koblenz
Online-ID: 27p6y5t
Referenznummer: A2408 (1/111)
Finde Angebote wie dieses
Hier geht es zu unserem Impressum, den Allgemeinen Geschäftsbedingungen, den Hinweisen zum Datenschutz und nutzungsbasierter Online-Werbung.