

Sirius Facilities GmbH
Herr Felix Meier
080 ···
Nr. anzeigenPreise & Kosten
Provision für Mieter
Provisionsfrei
Warum sehe ich diese Anzeige? – Du siehst diese Anzeige basierend auf Ihrer Navigation auf unserer Website und den Suchkriterien, die du verwendet hast.
Lage
Der Sigma Technopark Augsburg profitiert von einer erstklassigen Lage im Gewerbegebiet gegenüber dem Augsburger Zoo und ist bequem über die B300 und B17 erreichbar. Eine Straßenbahnhaltestelle liegt direkt vor dem Park. Zudem sind Parkplätze auf dem Gelände vorhanden, sodass auch Autofahrer eine bequeme Anfahrt haben. An...
Büro-/Praxisfläche
Kategorie
Bürofläche
Energie & Heizung
Warum sehe ich diese Anzeige? – Du siehst diese Anzeige basierend auf Ihrer Navigation auf unserer Website und den Suchkriterien, die du verwendet hast.
Weitere Energiedaten
Heizungsart
Zentralheizung
Details
Objektbeschreibung
Der Sigma Technopark Augsburg ist ein etablierter Gewerbestandort in erstklassiger Lage, nahe der Universität und dem Messegelände. Hier stehen Ihnen Büro-, Lager- und Produktionsflächen in unterschiedlichen Größen zur Verfügung. Der vielfältige Mietermix und das engagierte Team vor Ort schaffen eine angenehme...
Ausstattung
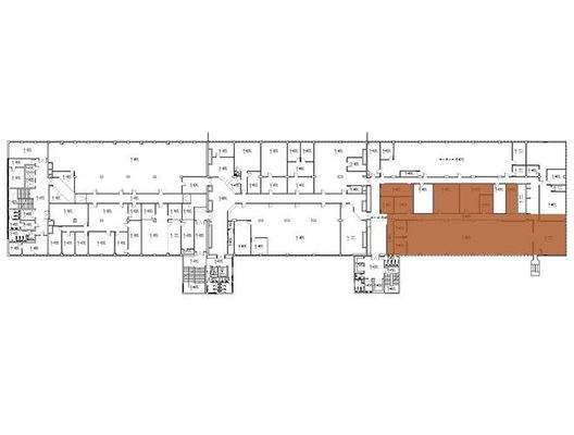
+ Gesamte Bürofläche von ca. 704,60 m²
+ Zusätzliche Nutzfläche von ca. 156,76 m²
+ Lage im barrierefreien 3. Obergeschoss
+ Bequemer Zugang dank Personen- und Lastenaufzug
+ Teilsanierte Räumlichkeiten
+ Teilweise klimatisiert für optimalen Komfort
+Standard-Büroausstattung inklusive Deckenbeleuchtung...
Weitere Informationen
Sonstiges
*Das Angebot gilt für Neukundenverträge über Büros, die bis zum 31.12.25 unterzeichnet werden, und ist nicht kombinierbar mit anderen Rabatten und Aktionen. Der Sonderpreis wird ab 12 Monaten Laufzeit im 12. Monat, ab 24 Monaten im 12. und 24. Monat gewährt. Das Angebot bezieht sich auf die Nettokaltmiete...
Dokumente
Anbieter der Immobilie

Online-ID: 27qdx5u
Referenznummer: A10485
Finde Angebote wie dieses
Hier geht es zu unserem Impressum, den Allgemeinen Geschäftsbedingungen, den Hinweisen zum Datenschutz und nutzungsbasierter Online-Werbung.