

Praxis zur MieteMietkosten auf Anfrage
Mietkosten auf Anfrage
Ordination in Eggenburg
Merkmale
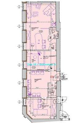
Grundrisse
Verschaffe dir einen genauen Überblick über die Raumaufteilung.

Realisiere Dein Projekt
Bausubstanz und Energie
Heizwärmebedarf (HWB)
B
Gesamtenergieeffizienz (fGEE)
- Baujahr2007
Mietkosten
Gesamtmiete
983 €
Nettokaltmiete
nicht angegeben
Provision für Mieter
Bitte beachte, das Angebot kann bei Vertragsabschluss die Zahlung einer Provision beinhalten. Weitere Informationen erhältst Du vom Anbieter.
Kaution
3973 €
Weitere Preisinformationen
Miete inkl. Betriebskosten u. USt, exkl. Strom/Heizung
Lage

Grätzl 5/5, Eggenburg (3730)
Weitere Informationen
Weitere Services
Lust auf eine Besichtigung?
Eine Frage zur Immobilie?
Über den Anbieter
Wohnbauplatz 1, 3820 RAABS AN DER THAYA
Partnerschaft
WAV Gemeinnützige Bau- u. SiedlungsgenossenschaftDein Kontakt
Online-ID: 23NC2P1YKYGL
Referenznummer: WAV | Eggenburg | WH 1 | Top 18 (Ordination 5)

WAV Gemeinnützige Bau- und Siedlungsgenossenschaft "Waldviertel"
Bewertung: 5 von 5 Sternen
Wie zufrieden bist du mit dieser Seite (nicht mit der Immobilie selbst)?

