
Peters Properties e.K.
Herrn Christoph Peters
040 ···
Nr. anzeigenPreise & Kosten
Kaution
3-Brutto-Warm-Monatsmieten
Provision für Mieter
provisionsfrei
Warum sehe ich diese Anzeige? – Du siehst diese Anzeige basierend auf Ihrer Navigation auf unserer Website und den Suchkriterien, die du verwendet hast.
Lage
Das 1998 errichtete Büro- und Geschäftshaus Holstenplatz 20, 20a-b befindet sich im Stadtteil Altona. Das Musical-Theater "Neue Flora" sowie Einkaufsmög- lichkeiten für den täglichen Bedarf und gastronomische Angebote befinden sich in unmittelbarer Umgebung und sind fußläufig in wenigen Minuten erreichbar.
Durch die vis á...
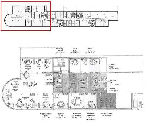
Büro-/Praxisfläche
Kategorie
Bürofläche
Baujahr
1998
Bezug
nach Vereinbarung
Geschoss
3. Geschoss
Energie & Heizung
Warum sehe ich diese Anzeige? – Du siehst diese Anzeige basierend auf Ihrer Navigation auf unserer Website und den Suchkriterien, die du verwendet hast.
Weitere Energiedaten
Energieträger
Fernwärme
Details
Objektbeschreibung
Das moderne Büro- und Geschäftshaus befindet sich in attraktiver Lage von Altona, gegenüber des bekannten Musical-Theaters "Neue Flora" und mit einem großen Angebot an Gastronomie und Einkaufsmöglichkeiten für den täglichen Bedarf in der unmittelbaren Nachbarschaft. Die S-Bahn-Station "Holstenstraße" liegt direkt vis à vis...
Preisinformation
Nettokaltmiete: 7.631,10 EUR
Anbieter der Immobilie
Peters Properties e.K.
Blaukissenstieg 2, 22297 Hamburg
Online-ID: 27uuc54
Referenznummer: PP-226-2022-09_1
Finde Angebote wie dieses
Hier geht es zu unserem Impressum, den Allgemeinen Geschäftsbedingungen, den Hinweisen zum Datenschutz und nutzungsbasierter Online-Werbung.