
Immobilien Lounge Regensburg GmbH
094 ···
Nr. anzeigenPreise & Kosten
zzgl. Nebenkosten
Kaution
3 Nettomonatsmieten
Provision für Mieter
3 Nettomonatsmieten zzgl. MwSt.
Warum sehe ich diese Anzeige? – Du siehst diese Anzeige basierend auf Ihrer Navigation auf unserer Website und den Suchkriterien, die du verwendet hast.
Lage
Der Markt Regenstauf liegt 13 km nördlich von Regensburg, im Regierungsbezirk Oberpfalz, Landkreis Regensburg, und ist mit seinen 15.000 Einwohnern und einer Fläche von 100 Quadratkilometern größte Gemeinde des Landkreises Regensburg.
Regenstauf ist durch die A 93 bestens an den Fernverkehr angebunden.
Vor allem...
Büro-/Praxisfläche
Kategorie
Bürofläche
Baujahr
1980
Bezug
ab 01.03.2024
Details
Objektbeschreibung
Es werden klimatisierte Büroräume in äußerst verkehrsgünstiger Lage zur Vermietung angeboten.
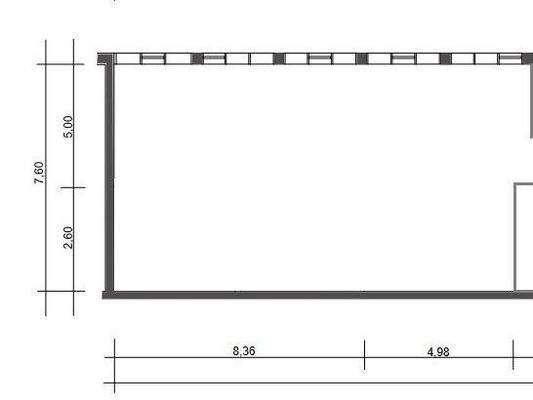
Die gepflegte, besonders helle Bürofläche hat eine Größe von ca. 100 m². Eine Teeküche steht zur Verfügung. Die Einheit kann noch nach Mieterwunsch variabel mit Trockenbauwänden aufgeteilt werden.
Das Büro hat...
Ausstattung
* ca. 100 m² Nutzfläche
* helle Fläche durch viel Tageslicht
* variable Aufteilung nach Kundenwunsch
* Klimaanlage
* zahlreiche Stellplätze
* Nebenkosten-VZ wird je nach Nutzung neu festgelegt
* es können noch Lager-/ und Hallenflächen mit angemietet werden
Preisinformation
Nettokaltmiete: 880,00 EUR
Weitere Informationen
Sonstiges
Energieausweis ist in Erstellung.
Bitte beachten Sie, dass für die im Exposé aufgeführten Angaben keine Haftung übernommen wird.
Wir bieten Ihnen gerne an, sich bei einem persönlichen Termin in unserer Immobilien Lounge
unverbindlich über dieses und weitere interessante Objekte zu informieren...
Anbieter der Immobilie
Online-ID: 27vep56
Referenznummer: 0618
Finde Angebote wie dieses
Hier geht es zu unserem Impressum, den Allgemeinen Geschäftsbedingungen, den Hinweisen zum Datenschutz und nutzungsbasierter Online-Werbung.