

Immoraum GmbH
Herr Raphael Jung
+49 ···
Nr. anzeigenPreise & Kosten
Kaution
2-Bruttomonatsmieten
Provision für Mieter
provisionsfrei
Warum sehe ich diese Anzeige? – Du siehst diese Anzeige basierend auf Ihrer Navigation auf unserer Website und den Suchkriterien, die du verwendet hast.
Lage
Die Stadt Möhringen befindet sich südlich von Stuttgart. Angrenzend sind die Stadtbezirke Vaihingen, Stuttgart-Süd, Degerloch, Plieningen und Leinfelden-Echterdingen. In wenigen Fahrminuten entfernt befinden sich Bahnhof, Autobahn, öffentliche Verkehrsanbindungen und der Flughafen. Das Bürogebäude liegt in guter Lage von...
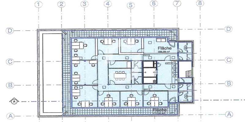
Büro-/Praxisfläche
Baujahr
-
Bezug
ab sofort
Geschoss
3. Geschoss
Details
Objektbeschreibung
In dem gepflegten Objekt befinden sich rund 2600 m² Bürofläche, auf insgesamt 4 Etagen verteilt.
Ausstattung
Personenaufzug, Standardausstattung, Ausgebaut, Doppelboden, Sonnenschutz innen, Sonnenschutz außen, EDV-Verkabelung, Teeküche, Außenstellplätze, TG-Stellplätze, Cat-5 , Glasfaser
Weitere Informationen
Sonstiges
"Noch nicht das Richtige? Wir führen weitere Objekte im Großraum Stuttgart. Sprechen Sie mit unseren Beratern. Gemeinsam finden wir Ihr Wunschobjekt! Wir freuen uns auf Ihre Kontaktaufnahme!
Nach den §§ 16, 16 a EnEV ist der Eigentümer, Verkäufer, Vermieter, Verpächter und Leasinggeber bei der...
Anbieter der Immobilie
Immoraum GmbH
Uhlandstraße 14, 70182 Stuttgart

Online-ID: 28jxs59
Referenznummer: IRx1363/G1/E5/Eh2
Finde Angebote wie dieses
Hier geht es zu unserem Impressum, den Allgemeinen Geschäftsbedingungen, den Hinweisen zum Datenschutz und nutzungsbasierter Online-Werbung.