
partner4immo gmbh
Claudia und David Schmied
+43 ···
Nr. anzeigenPreise & Kosten
Provision für Käufer
3% des Kaufpreises zzgl. 20% USt.
Lage
Das Appartementhaus liegt auf einem sehr sonnigen Hochplateau im Ortsteil St. Veit/Lehen direkt am Fusse der Hohen Munde.
Die umliegenden Berge bieten eine Vielzahl an Wander- und Mountainbikewegen.
Die Olympiaregion Seefeld ist in wenigen Autominuten erreichbar und bietet von der Skipiste, über ausgedehnte...
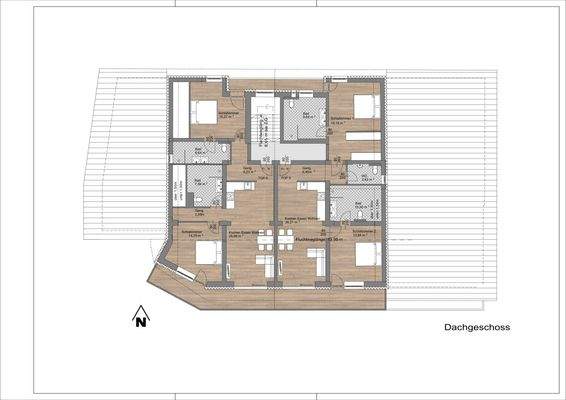
Die Wohnung
Wohnungslage
1. Geschoss
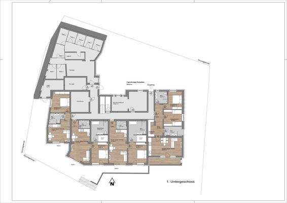
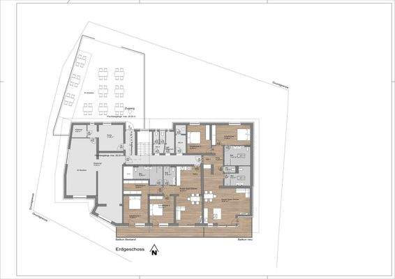
Wohnanlage
Energie & Heizung
Warum sehe ich diese Anzeige? – Du siehst diese Anzeige basierend auf Ihrer Navigation auf unserer Website und den Suchkriterien, die du verwendet hast.
Weitere Energiedaten
Heizungsart
Fußbodenheizung, Luft-/Wasser-Wärmepumpe
Details
Objektbeschreibung
Hier gelangen Sie zur Homepage: www.sunshinelodge-ferienwohnungen.at [http://www.sunshinelodge-ferienwohnungen.at]
Hier gelangen Sie zur Outside-Tour: http://tour.partner4immo.at/aOWW [http://tour.partner4immo.at/aOWW]
Hier gelangen Sie zur Aussichts-Tour: http://tour.partner4immo.at/dh3F...
Weitere Informationen
Sonstiges
Homepage - https://sunshinelodge-ferienwohnungen.at/
360° Outside Tour - http://tour.partner4immo.at/aOWW
360° View Tour - http://tour.partner4immo.at/dh3F
Stichworte
Carport vorhanden, Stellplatz vorhanden, Süd-Balkon/Terrasse, Fahrradraum, Anzahl der Badezimmer: 1, Anzahl der...
Dokumente
Anbieter der Immobilie
partner4immo gmbh
Fachental 30, 6233 Kramsach
Online-ID: 28lqc5f
Referenznummer: OBGC20230103141827524719d37b946
Finde Angebote wie dieses
Günstige Immobilienfinanzierung einfach online berechnen
Persönliches Angebot berechnenWarum sehe ich diese Werbung? – Du siehst diese Werbung basierend auf Deiner Navigation auf unserer Website und der von Dir verwendeten Suchkriterien.
Diese Werbung wird bezahlt von durchblicker
Werbung melden
Hier geht es zu unserem Impressum, den Allgemeinen Geschäftsbedingungen, den Hinweisen zum Datenschutz und nutzungsbasierter Online-Werbung.