
RUHR REAL GmbH
Herr Frederic Jeschke
+49 ···
Nr. anzeigenPreise & Kosten
Provision für Mieter
provisionsfrei
Warum sehe ich diese Anzeige? – Du siehst diese Anzeige basierend auf Ihrer Navigation auf unserer Website und den Suchkriterien, die du verwendet hast.
Lage
Das Objekt befindet sich sehr verkehrsgünstig gelegen im Technologiegebiet "Im weißen Feld" in Dortmund. In nur wenigen Fahrminuten erreicht man die Autobahnen A40, A45 sowie die A1. Das Objekt ist ferner hervorragend an den ÖPNV angeschlossen.
Bedeutende Unternehmen in der Umgebung: Vanderlande, Omron, Verizon...
Büro-/Praxisfläche
Kategorie
Bürofläche
Baujahr
2003
Bezug
sofort
Energie & Heizung
Warum sehe ich diese Anzeige? – Du siehst diese Anzeige basierend auf Ihrer Navigation auf unserer Website und den Suchkriterien, die du verwendet hast.
Weitere Energiedaten
Energieträger
Gas
Details
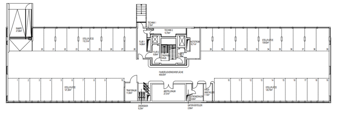
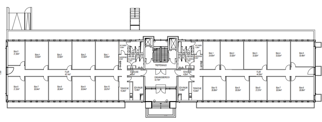
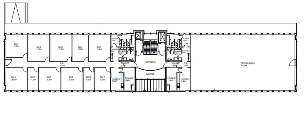
Objektbeschreibung
Das Innovationshaus Dortmund ist ein attraktives und energetisch hoch standardisiertes Bürogebäude aus dem Jahre 2003. Seiner Zeit damals schon voraus, legte man Wert auf Nachhaltigkeit, welche man unter anderem über ein WDVS, Regenrückgewinnung und weiteren Maßnahmen realisierte.
Die Konzeption des Gebäudes, welche...
Ausstattung
. Verkabelungsort: doppelter Boden
. Kühlung: teilweise klimatisiert
. Sonnenschutz: außenliegend, elektrisch
. Küche: voll ausgestattet
. Beleuchtung: Standleuchten
. Glasfaseranschluss
. Behindertengerechtes WC
. Personenaufzug
. Barrierearm
Preisinformation
Nettokaltmiete: 8,90 EUR
Weitere Informationen
Sonstiges
Es gelten ausschließlich unsere AGB (www.ruhr-real.de/agb). Wir möchten Sie darauf hinweisen, dass die Angaben ausschließlich auf den uns vom Eigentümer übermittelten Unterlagen und Informationen basieren. Für Richtigkeit und Vollständigkeit übernehmen wir keine Gewähr. Zwischenvermietung...
Anbieter der Immobilie

RUHR REAL GmbH
Holsterhauser Platz 2, 45147 Essen
Online-ID: 28nwc5g
Referenznummer: 2020/E9
Finde Angebote wie dieses
Hier geht es zu unserem Impressum, den Allgemeinen Geschäftsbedingungen, den Hinweisen zum Datenschutz und nutzungsbasierter Online-Werbung.