

Immoraum GmbH
Herr Maximilian Unterreiner
+49 ···
Nr. anzeigenPreise & Kosten
Kaution
3 Brutto-Monatsmieten
Provision für Mieter
provisionsfrei
Warum sehe ich diese Anzeige? – Du siehst diese Anzeige basierend auf Ihrer Navigation auf unserer Website und den Suchkriterien, die du verwendet hast.
Lage
Die Villa befindet sich in einer sehr guten Lage nahe der Innenstadt. Einkaufsmöglichkeiten des täglichen Bedarfs sowie Banken und Restaurants sind in näherer Umgebung vorhanden. Zu Fuß erreichen Sie in ca. 10 Minuten den Bahnhof Ludwigsburg. Dort verkehren die S-Bahnlinien S4, und S5, damit erreichen Sie den Hauptbahnhof...
Büro-/Praxisfläche
Kategorie
Bürogebäude
Baujahr
1875-1985
Bezug
sofort
Geschoss
4. Geschoss
Details
Objektbeschreibung
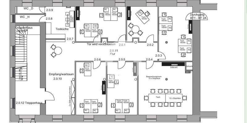
Die Büroflächen befinden sich in einer optisch sehr ansprechenden Villa welche unter Kulturdenkmal steht. Das Objekt eignet sich ideal für einen Mieter, der eine repräsentative Adresse und ruhig gelegene Flächen sucht. Die hellen und großzügig geschnittenen Büroflächen erstrecken sich auf insgesamt 2 Gebäudeteile.
Die...
Ausstattung
Stellplätze, Küche, Boden, Fenster / Sonnenschutz, Ausbau nach Mieterwunsch
Weitere Informationen
Sonstiges
Noch nicht das Richtige? Wir führen weitere Objekte im Großraum Stuttgart. Sprechen Sie mit unseren Beratern. Gemeinsam finden wir Ihr Wunschobjekt! Wir freuen uns auf Ihre Kontaktaufnahme!
Nach den §§ 16, 16 a EnEV ist der Eigentümer, Verkäufer, Vermieter, Verpächter und Leasinggeber bei der...
Anbieter der Immobilie
Immoraum GmbH
Uhlandstraße 14, 70182 Stuttgart

Online-ID: 28y5s5b
Referenznummer: IRx1369/G1/E1/Eh1
Finde Angebote wie dieses
Hier geht es zu unserem Impressum, den Allgemeinen Geschäftsbedingungen, den Hinweisen zum Datenschutz und nutzungsbasierter Online-Werbung.