

Bürofläche zur Miete • provisionsfrei8,30 €/m²160 m² Bürofläche
8,30 €
/m²
160 m² Bürofläche
Ihr Büro im Wirtschaftspark Fehring
Merkmale
- Erdgeschoss
- Barrierefrei
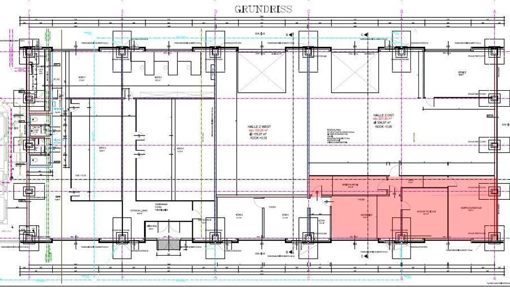
Grundrisse
Verschaffe dir einen genauen Überblick über die Raumaufteilung.

Realisiere Dein Projekt
Bausubstanz und Energie
Möchtest du Details zum Energieverbrauch?

- Zustand der ImmobilieNeubau
- HaustypKfW 40
Mietkosten
Gesamtmiete
1.594 €
Nettokaltmiete
8,30 €/m²
851,20 €
Betriebskosten
476,80 €
Provision für Mieter
provisionsfrei
Kaution
keine Angabe
Lage

Fehring (8350)
Der Anbieter hat die genaue Adresse nicht freigegeben
Weitere Services
Lust auf eine Besichtigung?
Eine Frage zur Immobilie?
Über den Anbieter
Reininghausstr. 13, 8020 GRAZ
Frau Elisabeth PirstingerDein Kontakt
Online-ID: 24UZG6CDFSFP

Steirische Wirtschaftsförderungs- gesellschaft m.b.H.
Wie zufrieden bist du mit dieser Seite (nicht mit der Immobilie selbst)?

