Großzügigkeit auf zwei Etagen in bester Lage von Radebeul
Ein Doppelhaus mit dem Mehr an Eleganz: Durch ein gemeinsames Walmdach werden die Doppelhaushälften optisch miteinander verbunden, gewinnen dadurch in der Außenwirkung an Größe und vermitteln den Charme einer eleganten Stadtvilla. Dabei ist Linus durch seine Außenmaße bestens für schmal geschnittene Grundstücke geeignet.
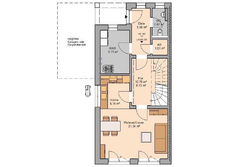
Nicht nur optisch hat das Doppelhaus von außen einiges zu bieten, sondern Linus zeigt sich auch praktisch: Durch einen überdachten Eingangsbereich gelangen Sie trockenen Fußes in Ihr Traumhaus. Einkäufe können Sie direkt neben dem Eingang im Hauswirtschaftsraum oder im Abstellraum unterbringen. Highlight des Erdgeschosses ist die offene Raumgestaltung von der Küche hin in den Wohn- und Essbereich. In der rechten Doppelhaushälfte haben Sie zudem einen Erker in der Küche. Das Erdgeschoss wird komplettiert durch ein Gäste-WC.
Im Obergeschoss hat ein Kinderzimmer, ein Eltern-Schlafzimmer, ein Home-Office und ein Familien-Badezimmer Platz. Durch bodentiefe Fenster werden die Räume zur Gartenseite sowohl im Erd- als auch im Obergeschoss lichtdurchflutet.
Dieses Haus wird nach Ihren individuellen Wünschen geplant und ausgestattet!
+ Schlüsselfertiges Massivhaus im Sinne der Ausstattungsbeschreibung "Easy" + Inklusive Bodenplatte
Beste Markenausstattung in jedem Kern-Haus:
+ Zimmermannsmäßiger Dachstuhl aus Konstruktionsvollholz + Dacheindeckung mit Betondachsteinen von Braas + Hochwertiger Kunstharz-Außenputz für eine langlebige Fassade + Vollständige Badausstattung von Villeroy & Boch mit Badewanne und flacher Duschwanne + Fliesen von Villeroy & Boch in Bad und WC + Haustür mit 3-fach-Sicherheitsverriegelung + Erstklassige Innentüren der Marke Herholz + Fenster mit 3-Scheiben-Wärmeschutzverglasung und Rollläden + Stahl-Holz-Treppe mit individueller Farbgestaltungsmöglichkeit + Elektroausstattung inklusive Klingelanlage + Rauchmelder für Ihre Sicherheit + Alle Leistungen aus einer Hand + Alle Planungs- und Architektenleistungen + Einsatz regionaler Handwerksbetriebe + Individuelle Anpassung auf Ihre Bedürfnisse + Auf Wunsch mit Keller erhältlich + Auf Wunsch mit weiteren Energietechniken erhältlich
Grundrisse
Grundrisse
1 / 2
Realisiere Dein Projekt
Bausubstanz und Energie
Energieausweis
Der Anbieter hat keine Daten zum Energieausweis hinterlegt.
Baujahr2025
Zustand der ImmobilieNeubau, Projektiert
HeizungsartZentralheizung: Fußbodenheizung
Preisdetails
Kaufpreis
608700 €608.700 €
5.533,64 €/m²
Provision für Käufer
provisionsfrei
Geschätzte Gesamtkosten
654.354 €1
Kaufpreis
608.700 €
Kaufnebenkosten
45.654 €
2
Notarkosten (1,5%)
9.131 €
Grunderwerbsteuer (5,5%)
33.479 €
Grundbucheintrag (0,5%)
3.044 €
1Der angezeigte Wert ist eine automatisch berechnete Schätzung von immowelt.
2Bei den Angaben handelt es sich um ortsübliche Werte. Individuelle Kosten können abweichen.
Lage
Radebeul (01445)
Der Anbieter hat die genaue Adresse nicht freigegeben
Dieses 395 m² große Baugrundstück bietet die ideale Möglichkeit, den Traum vom Eigenheim in einer der schönsten Wohnlagen Radebeuls zu verwirklichen. Das Grundstück befindet sich in einer ruhigen und gewachsenen Wohnsiedlung, umgeben von stilvollen Einfamilienhäusern und großzügigen Gärten. Die Lage verbindet eine hohe Lebensqualität mit bester Infrastruktur und einer sehr guten Verkehrsanbindung nach Dresden.
Radebeul zählt zu den begehrtesten Wohngegenden der Region und besticht durch seine idyllische Umgebung, die Nähe zu den Weinbergen sowie zahlreiche Spazier- und Radwege entlang der Elbe. Gleichzeitig sind Einkaufsmöglichkeiten, Schulen, Kindertagesstätten und ärztliche Versorgung schnell zu erreichen. Auch die Verkehrsanbindung ist optimal - sowohl der öffentliche Nahverkehr als auch die Autobahn sorgen für eine schnelle Erreichbarkeit der Dresdner Innenstadt und des Umlandes.
Die familienfreundliche Atmosphäre und das gehobene Wohnumfeld machen dieses Grundstück zur perfekten Wahl für alle, die Wert auf Ruhe, Natur und eine hochwertige Wohnlage legen. Nutzen Sie diese seltene Gelegenheit und lassen Sie sich von den Vorzügen dieses attraktiven Baugrundstücks überzeugen!
Weitere Informationen
Sonstiges
Kern-Haus
Kern-Haus baut individuelle und massive Architektenhäuser zu einem attraktiven Preis-Leistungs-Verhältnis - und das bereits mit einer Erfahrung seit 1980.
Maximale Sicherheit bei Kern-Haus: + 10 Jahre Gewährleistung auf die wesentlichen Bauleistungen + Bis zu 24 Monate Festpreisbindung + 50 Jahre Gewährleistung auf das DuoTherm-Mauerwerk + Verbindliche Bauzeit + Zahlung nach Baufortschritt
Preise und Auszeichnungen von Kern-Haus: - German Brand Award in den Jahren 2018 und 2021 - Hausbau Design Award: Sieger in den Jahren 2017, 2018, 2019, 2020, 2021, 2022 und 2023 - Deutscher Traumhauspreis: Sieger in den Jahren 2014, 2015, 2016 und 2018 und Silber 2017, 2020 und 2021 - Mittelstandspreis "Top 100" in den Jahren 2014, 2016, 2018, 2020 und 2022 - German Design Award im Jahr 2018
Weitere Informationen
Der gezeigte Preis versteht sich inklusive Grundstück und exklusive der Baunebenkosten.
Ihre Ansprechpartnerin Nicole Ulbricht vom Kern-Haus-Team in Dresden freut sich darauf Ihre Fragen zu beantworten. Jetzt anrufen: 0351 / 8391319
Kern-Haus in Dresden - https://www.kern-haus.de/dresden/
Weitere Architektenhäuser - https://www.kern-haus.de/haeuser
Stichworte
Stellplatz vorhanden, Anzahl der Schlafzimmer: 3, Anzahl der separaten WCs: 1